Permits Issued for a Five-Unit Multifamily Building at 835 Aramingo Avenue in Fishtown
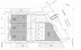
Construction permits have been issued for a multi-family development at 835 Aramingo Avenue in Fishtown. The project will rise on a uniquely shaped parcel where Moyer Street meets Aramingo Avenue, taking the place of a vacant one-story garage that previously occupied the site. The property is part of a broader subdivision that reorganized the former 850 through 856 Moyer Street tract. Permits list a total construction area of 5,601 square feet. Gnome Architects is responsible for design and Conodoguinet Construction Management LLC is listed as the contractor.

