Construction permits have been issued for a multi-family development at 835 Aramingo Avenue in Fishtown. The project will rise on a uniquely shaped parcel where Moyer Street meets Aramingo Avenue, taking the place of a vacant one-story garage that previously occupied the site. The property is part of a broader subdivision that reorganized the former 850 through 856 Moyer Street tract. Permits list a total construction area of 5,601 square feet. Gnome Architects is responsible for design and Conodoguinet Construction Management LLC is listed as the contractor.
Permits list a total construction cost of $1.2 million. 850–856 Moyer Street LLC is specified as the owner.
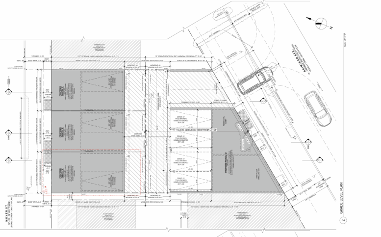
The building will feature a cellarwill be fully sprinklered. Site plans show the building positioned along the angled Aramingo Avenue frontage with vehicular access provided from a shared drive aisle at the rear. Four parking spaces will be located at grade behind the building. The design incorporates pilot houses leading to two roof decks and reflects a Type VB construction classification on all floors. Floor level designations on the zoning elevation identify a cellar below grade with residential levels stacked above.
Zoning documents indicate that the property lies within the RSA-5 district near a CMX-2 commercial edge, reflecting the mixed character of this section of Aramingo Avenue. The use is permitted as of right, and the rear access configuration allows the project to meet parking requirements without interrupting the streetscape along the primary frontage.
A brief note in the subdivision filings indicates that three single-family dwellings are also planned on nearby Parcels A, B, and C along Moyer Street as separate projects.
The estimated construction timeline has not been revealed yet.
Subscribe to YIMBY’s daily e-mail
![]()
Follow YIMBYgram for real-time photo updates
Like YIMBY on Facebook
Follow YIMBY’s Twitter for the latest in YIMBYnews






Five units, four parking spots. It’s time to play “musical chairs”.
That was my first thought, also, Craig.
Where is the logic in that decision?
Maybe someone will only have a bike…