Permits have been issued for the construction of a three-story, single-family residence at 2240 Oakford Street in Point Breeze, South Philadelphia. The structure will span 1,907 square feet. Permits list Menna Engineers and Associates as the design professional and Platinum Construction and Development as the contractor.
Construction costs are listed at $404,000, which includes $325,000 for general construction, $33,000 for excavation, $22,500 for plumbing, $12,000 for mechanical work, and $11,500 for electrical work. 2240 Oakford St LLC is listed as the owner.

2240 Oakford Street Plan via Menna Engineers and Associates
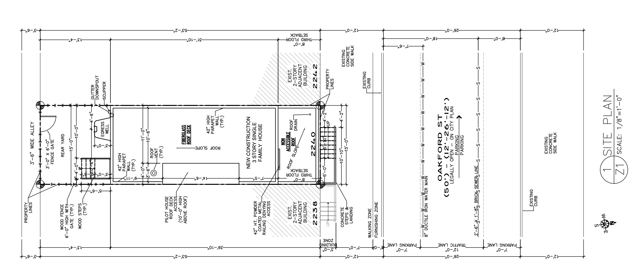
Building permits issued authorize the construction of an attached structure with a cellar, a roof deck, and a pilot house providing roof access. The home will be fully sprinklered under NFPA 13D. The project requires sheeting and shoring per the approved excavation plan and includes a monitoring plan for the adjoining property at 2242 Oakford Street, where the chimney will be extended above the highest abutting elevation.

2240 Oakford Rear Elevation via Menna Engineers and Associates
Drawings show a rowhouse with a brick façade at the first story and vinyl siding above. The front façade faces south toward Oakford Street, consistent with the site plan orientation. The design features paired front windows at the upper levels, a recessed main entry, and a basement egress window positioned below grade. A 42-inch parapet borders the roof deck, which sits behind the pilot house centered toward the rear portion of the roof plate.
Zoning documents indicate that the 15-foot-wide, 797-square-foot lot sits within an RSA-5 district and that the proposal conforms to dimensional requirements. The project will occupy approximately 597 square feet, yielding 74.92 percent lot coverage, while providing a 13-foot, 4-inch rear yard that meets the required minimum.
The development continues the wave of small scale infill across Point Breeze, replacing long underutilized parcels with new modern housing.
Subscribe to YIMBY’s daily e-mail
![]()
Follow YIMBYgram for real-time photo updates
Like YIMBY on Facebook
Follow YIMBY’s Twitter for the latest in YIMBYnews






It’s unusual for an elevation to show a utility meter but there it is.
At least they are being honest…but they forgot the ugly gas meter!