Permits have been issued for the construction of a three-story, four-unit residential building 4263 Mantua Avenue in East Parkside, West Philadelphia. The structure will rise on the north side of the block between North 42nd Street and Belmont Avenue, replacing a vacant lot. Designed by the 24-7 Design Group, the attached rowhouse will span 4,265 square feet and will include a full cellar and a roof deck. Permits specify Gazi Ataseven as the contractor.
Permits indicate a total construction cost of $550,000, which translates to an average of around $129 per interior square foot. The total allocates $25,000 for general construction work and $525,000 for excavation work (which is almost certainly a clerical error in the filing of the permit and the numbers should likely be reversed, both logically and in relation to a similarly-priced sister building concurrently proposed next door at 4265 Mantua Avenue by the same development team).

4263 Mantua Avenue. Site conditions prior to redevelopment. Credit: 24-7 Design Studio via the City of Philadelphia

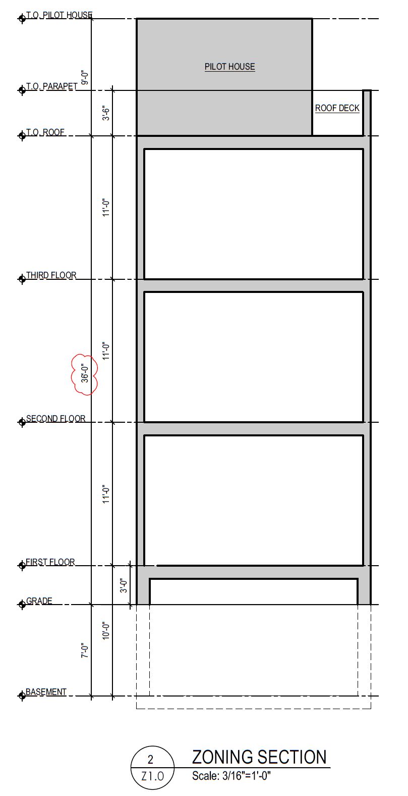
4263 Mantua Avenue. Building section. Credit: 24-7 Design Studio via the City of Philadelphia
The property measures 16 feet wide and 97 feet deep. The wood-framed, 70-foot-long, 36-foot-tall (if measured to the main roof, or 45-foot-tall to the top of the roof access pilot house) building will be backed by a nearly 21-foot-deep rear yard, which will span 330 square feet. The ground floor will sit three feet above the sidewalk level, and floor-to-floor slab heights will measure 11 feet at the above-ground floors and ten feet floor-to-floor in the basement. An approximately 4-by-13-foot light well will be notched into the building mass at its western side.
Route 43 and 64 buses stop at the western end of the block at Belmont Avenue. The G1 trolley stops a short block to the north of the aforementioned location at the intersection of Belmont and Girard avenues. Fairmount Park, with nearby destinations such as the Pleaase Touch Museum and the Shofuso Japanese Cultural Center, sit within a ten-plus-minute walk to the north, and the Philadelphia Zoo is situated within a 25-minute walk to the east.
The proposal at 4263 Mantua Avenue will positively contribute to the ongoing revival of a long-neglected block near the northern edge of West Philly, and we look forward to the impending construction.

4263 Mantua Avenue. Zoning table. Credit: 24-7 Design Studio via the City of Philadelphia
Subscribe to YIMBY’s daily e-mail
![]()
Follow YIMBYgram for real-time photo updates
Like YIMBY on Facebook
Follow YIMBY’s Twitter for the latest in YIMBYnews






The five vacant parcels from 4263 to 4271 Mantua Ave. have been maintained since at least 2009 as trash-free, green lawn. There is also a medium sized tree. Greened and well maintained (as opposed to littered, debris strewn) empty land has many benefits, including improved air quality, lower neighbor stress, less crime, and most importantly in this context, a greater chance of being redeveloped.