Permits have been issued for the construction of a three-story, five-unit multi-family building at 828 North 40th Street in Belmont, West Philadelphia. The new development will replace a vacant lot situated on the west side of the block between Reno Street and Parrish Street. Designed by Plato Studio, the attached structure will span 7,597 square feet and will offer a basement and a roof deck. Permits list Yona Construction as the contractor.
Total construction costs are listed at $500,000, which works out to an average of around $66 per interior square foot. The sum allocates $400,000 for general construction work and $100,000 for excavation work.

828 North 40th Street. Site map. Credit: Plato Studio via the City of Philadelphia

828 North 40th Street. Site conditions prior to redevelopment. Credit: Plato Studio via the City of Philadelphia

828 North 40th Street. Site conditions prior to redevelopment. Credit: Plato Studio via the City of Philadelphia

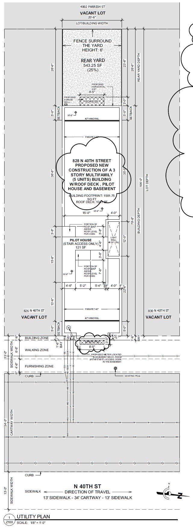
828 North 40th Street. Site plan. Credit: Plato Studio via the City of Philadelphia

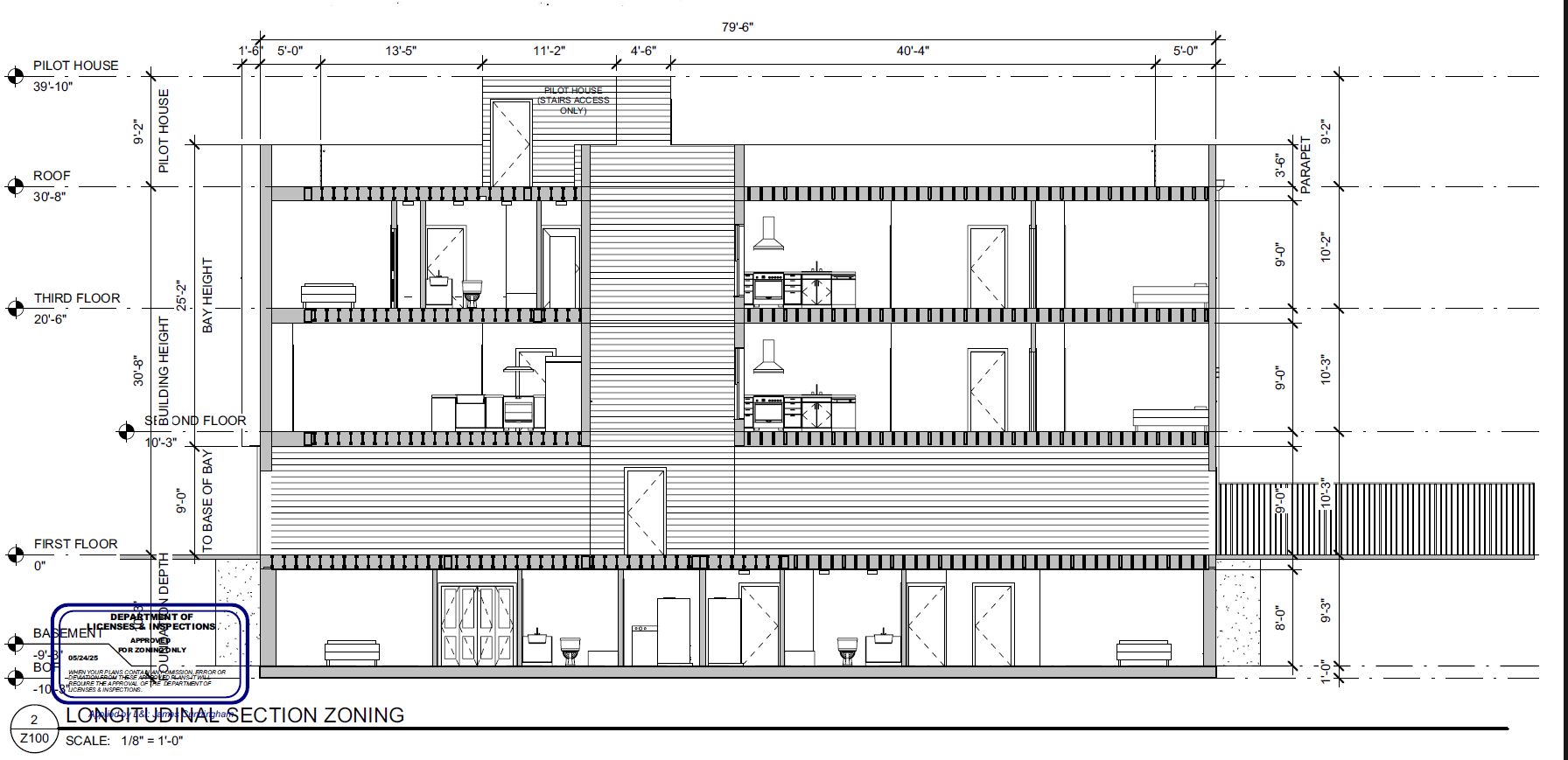
828 North 40th Street. Building section. Credit: Plato Studio via the City of Philadelphia
The development lot extends 20-and-a-half feet wide and 106 feet long. The property will feature a sizable, 26-and-a-half-foot-deep rear yard, which will be situated behind the 79-and-a-half-foot-long attached structure. The building will stand 31 feet tall when measured to the main roof, 34 feet to the top of the parapet, and nearly 40 feet to the top of the roof access pilot house. The roof deck will be set back five feet away from the parapet, in accordance with local regulations. The ground level will sit flush with the sidewalk level, and the basement will be fully submerged underground. Floor-to-ceiling heights will measure nine feet at the above-ground floors and eight feet in the basement. A 4-by-12-foot light well will pierce the structure at its northern side.
Route 38 bus stops at the nearly-adjacent intersection of Parrish and North 40th streets. Route 31, 40, and 43 buses also run in the vicinity, as does the T1 trolley, which runs along Lancaster Avenue, a major local commercial thoroughfare. Fairmount Park is situated within a ten-minute walk to the north. University City may be reached via a 15-minute walk to the southeast, and the 40th Street station on the Market-Frankford subway line may be accessed via an 18-minute walk to the south.
The development proposed at 828 North 40th Street will be the latest addition to a rapidly reviving and densifying neighborhood that is reaping the benefits of the ongoing construction boom in nearby University City. We hope to see more similar development throughout the area in the near future.



828 North 40th Street. Project description. Credit: Plato Studio via the City of Philadelphia

828 North 40th Street. Zoning table. Credit: Plato Studio via the City of Philadelphia
Subscribe to YIMBY’s daily e-mail
![]()
Follow YIMBYgram for real-time photo updates
Like YIMBY on Facebook
Follow YIMBY’s Twitter for the latest in YIMBYnews






1951 was a different era. As per the deed, property owners at that time were “Israel Kravitz and Rebecca Kravitz, his wife”. As if Rebecca were an appendage.
This is the second Plato Studio designed, Yona Construction built, three story, five unit residence with roof deck and basement permitted for the 800 block of N. 40th St. The other is 824 N. 40th St., as described on YIMBY’s December 28, 2025 post.