Permits have been issued for the construction of a residential redevelopment at 5650 Bloyd Street in the East Germantown area of Northwest Philadelphia, where an existing attached structure is approved for a rear and vertical addition that will expand the property into a three-story, four-unit building with a basement. RAM Phila Community 15 LLC is listed as the property owner, with Parallel Architecture Studio LLC responsible for the designs and Loan Construction LLC serving as the contractor.
Total construction costs are listed at $300,000, all of which is attributed to general construction work.

5650 Bloyd Street Plan via Parallel Architecture Studio LLC
The project proceeds as new construction and alteration work under a Level III classification, with a complete change of occupancy. The approved scope of work includes a single-story vertical addition constructed atop an existing two-story attached building, along with a three-story rear addition extending through the lot. Plans indicate that the existing two-story front portion of the building, including the basement, will remain in place, while demolition is limited to less than two-thirds of existing joists.
Zoning documents place the property within an RM-1 zoning district on a 1,443-square-foot lot. The proposed building footprint measures 1,083 square feet, equating to 75 percent lot coverage, which aligns with the maximum permitted occupied area for an intermediate lot in the RM-1 district. Based on lot area calculations shown in the zoning set, the site permits four dwelling units by right, consistent with the approved residential use shown on the permit drawings.

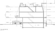
5650 Bloyd Street Elevation via Parallel Architecture Studio LLC
Architectural drawings show the vertical addition stepping above the existing roofline. The rear extension stretches the building mass toward the rear yard, which retains a 17-foot rear yard depth and a 253-square-foot yard area. The front elevation depicts the existing two-story façade remaining intact, with the new third-floor volume set back from the primary façade plane. The drawings also show an existing front porch roof and steps remaining in place, which are noted as not contributing to occupied area under the zoning code.
The building area will total 3,125 square feet, which includes a 529-square-foot basement, 1,083 square feet each on the first and second floors, and 959 square feet on the third floor, as illustrated in the zoning plans. Permits separately list 3,400 square feet of total construction area and 2,000 square feet of new construction area. The project’s earth disturbance is specified at 694 square feet.
The building permit was issued on January 26, 2026, following zoning approval issued on January 13, 2026.
Subscribe to YIMBY’s daily e-mail
Follow YIMBYgram for real-time photo updates
Like YIMBY on Facebook
Follow YIMBY’s Twitter for the latest in YIMBYnews






An addition is environmentally, contextually, aesthetically, and financially so much better than “demo and rebuild”.
Both the isometric view and elevation appear somewhat distorted, ironic graphics given a design team named Parallel Architecture Studio.
The plan and the front elevation are both parallel projections. The drawing labeled as an “isometric” view appears to be a parallel projection also, although it is not a standard isometric. Traditionally, designers used 30-60-90 triangles along with parallel bars or T-squares to manually draft isometric views. If the “isometric” view of 5650 Bloyd Street had been depicted as a true isometric, there would have been more emphasis on the roof surface and the long side elevation. I think Parallel Architecture Studio’s “isometric” is actually another type of axonometric projection or perhaps a very distant perspective. But whatever type of drawing it happens to be, it’s a good inclusion for the zoning permit documents.
To me, the front elevation drawing doesn’t appear distorted, but a one-point perspective drawn from a vantage point in Bloyd Street could demonstrate how the new addition is respecting the historic and beautiful façade. A simple one-point perspective can be used very effectively on a two-dimensional surface, like Jared Bader’s composition for “A People’s Progression Toward Equality” large-scale mural.