A new residential project is moving forward at 2507 Manton Street in Grays Ferry, South Philadelphia. City records show that permits have been issued for the construction of a three-story, three-unit residential building with a mezzanine level. The development will rise on a lot located mid-block between South 25th Street and South 26th Street. The project will span approximately 2,940 square feet and will include a roof deck with a roof deck access structure. Permits list Supreme Architects as the architect and REB Shayeles Builders LLC as the general contractor.
According to permit filings, the development carries a total construction cost of $4 million. 2507 Manton Street LLC is the listed owner.

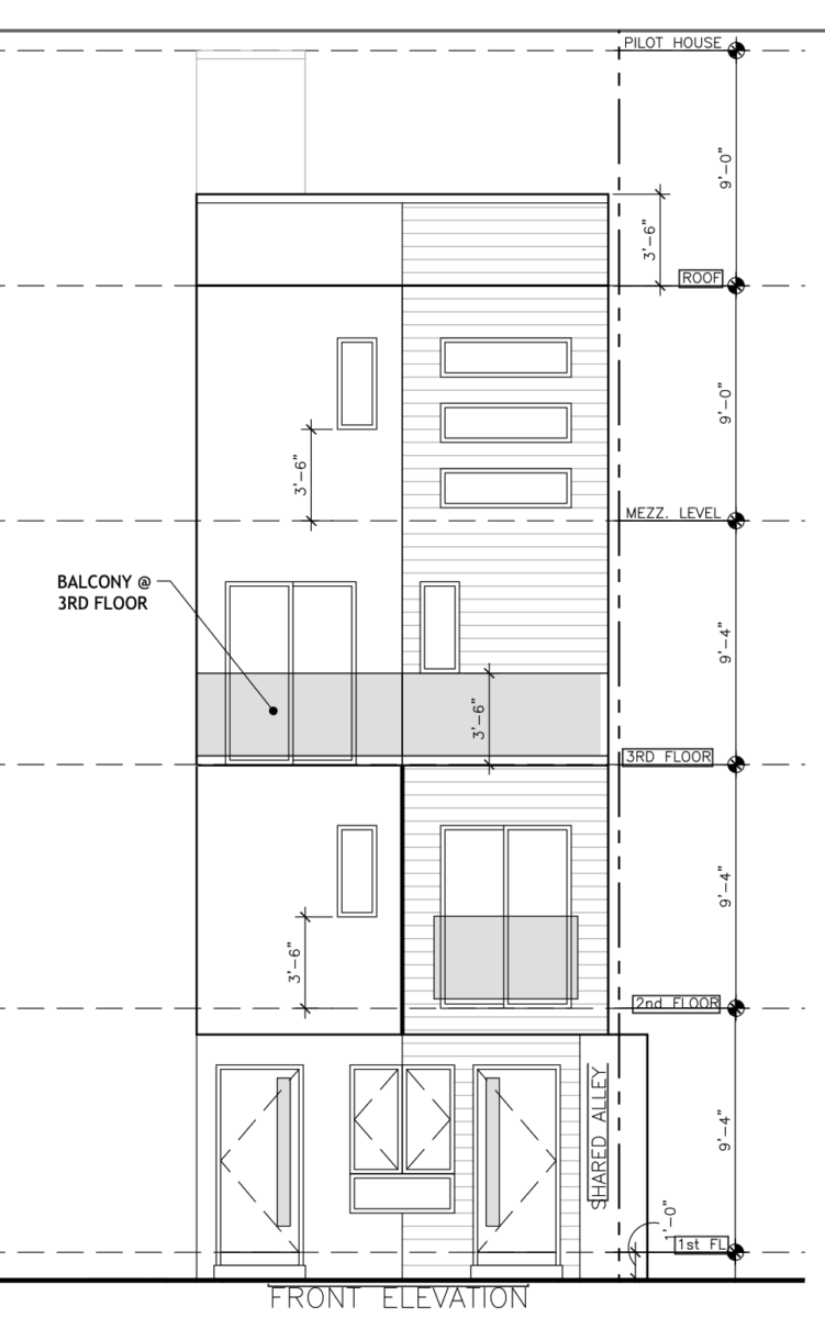
2507 Manton Street Plan via Supreme Architects
Permits describe the proposed building as an attached structure classified as Group R-2 residential occupancy. The area of earth disturbance is listed at 1,200 square feet, and underpinning work is indicated on the approved plans.

2507 Manton Street Rear Elevation via Supreme Architects
Architectural plans depict a contemporary rowhouse-style building with a flat roof and a pilot house used for roof access. The front elevation shows a rectilinear façade with recessed balconies and a mix of window sizes arranged across multiple levels. The rear elevation depicts additional balconies overlooking a sunken rear yard. The building will rise approximately 38 feet high, consistent with zoning limits.

2507 Manton Street Side Elevation via Supreme Architects
No excavation greater than five feet is proposed. No estimated construction timeline has been revealed yet.
Subscribe to YIMBY’s daily e-mail
![]()
Follow YIMBYgram for real-time photo updates
Like YIMBY on Facebook
Follow YIMBY’s Twitter for the latest in YIMBYnews






“According to permit filings, the development carries a total construction cost of $4 million.” That’s gotta be off by at least an order of magnitude.
Another stupid, dull-dumb infill!