Construction permits have been issued for a three-story, two-family residential building proposed at 2554 North 12th Street in the Hartranft neighborhood of North Philadelphia. The new development will rise upon a presently vacant site situated at the west side of the block between West Hazzard and West Huntingdon streets. The structure will span 3,000 square feet and will feature a basement and a roof deck. The project team consists of The Door LLC as the owner (alternately listed as Thedoor LLC), KCA Design Associates as the architect, and City Lights Electric as the contractor.
Construction costs for the development are noted at $278,500, which equates to around $93 per proposed buildable interior square foot. This total includes $175,000 for general construction work, $22,000 for electrical work, $14,500 for mechanical work, $32,000 for plumbing work, and $35,000 for excavation work.

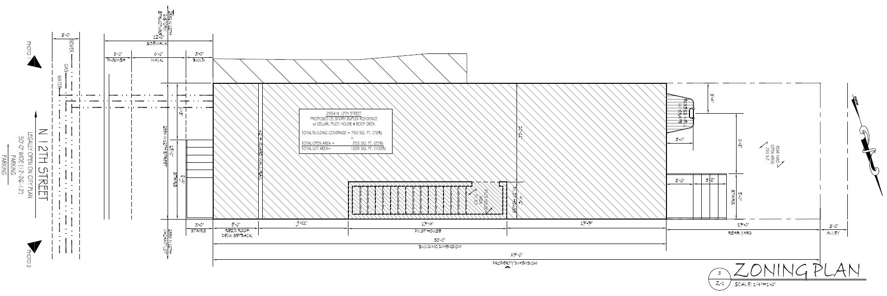
2554 North 12th Street. Site plan, or zoning map. Credit: KCA Design Associates via the Planning Department of the City of Philadelphia

2554 North 12th Street. Site conditions prior to redevelopment. Credit: KCA Design Associates via the Planning Department of the City of Philadelphia

2554 North 12th Street. Site plan. Credit: KCA Design Associates via the Planning Department of the City of Philadelphia
The proposed building will measure 21 feet wide and 50 feet long, with a 17-foot-deep yard at the rear of the property. The structure will rise 34 feet to the main roof (where a roof deck will be situated) and 44 feet to the top of the pilot house. The ground level will sit four feet above the sidewalk. Ceiling heights will span around nine feet on the above-ground floors and approximately eight feet in the basement.

2554 North 12th Street. Site conditions prior to redevelopment. Credit: KCA Design Associates via the Planning Department of the City of Philadelphia
The street-facing exterior will be clad in context-friendly running bond brick, appropriate for a neighborhood where prewar rowhouses predominate. Horizontal siding will add a touch of variation on the street facade and will cover the entirety of the rear elevation.
Route 4, 16, 23, and 54 buses run within a short walk of the property. The North Philadelphia station on the Broad Street subway line, as well as the North Broad regional rail station, are situated within an under-ten-minute walk to the south. Temple University, a major local destination, sits within a 20-minute walk to the south.

2554 North 12th Street. Zoning table. Credit: KCA Design Associates via the Planning Department of the City of Philadelphia
Subscribe to YIMBY’s daily e-mail
![]()
Follow YIMBYgram for real-time photo updates
Like YIMBY on Facebook
Follow YIMBY’s Twitter for the latest in YIMBYnews






Be the first to comment on "Construction Permits Issued for Two-Family Building at 2554 North 12th Street in Hartranft, North Philadelphia"