City permits have been issued for the construction of a three-story single-family building at 3039 Martha Street in Port Richmond. The structure will replace a section of an existing parking lot sited on the southeast side of the block between Ann Street and East Clearfield Street. The townhouse will span 1,421 square feet and will include a basement. The project team consists of BMK Properties as the owner, Marshall Sabatini Architecture as the designer, and Urban Renewal Builders as the contractor.
Construction permits indicate a construction cost of $180,000, or around $127 per planned interior square foot. Of this sum, $148,000 is allocated for general construction work, $7,000 for electrical work, $8,000 for mechanical work, $9,000 for plumbing work, and $8,000 for excavation work.

3039 Martha Street. Rear building elevation. Credit: Marshall Sabatini Architecture via the City of Philadelphia

3039 Martha Street. Zoning table and site diagram. Credit: Marshall Sabatini Architecture via the City of Philadelphia

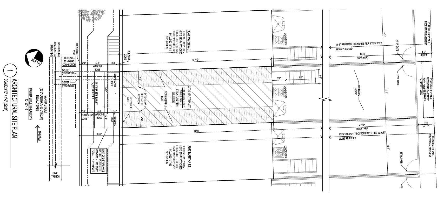
3039 Martha Street. Site plan. Credit: Marshall Sabatini Architecture via the City of Philadelphia

3039 Martha Street. Site conditions prior to redevelopment. Credit: Marshall Sabatini Architecture via the City of Philadelphia
The building’s plain brick exterior will be enhanced with classic touches such as a tall front stoop and brick ornament at the parapet, which will make for pleasant contextual nods to the neighborhood’s prevailing prewar rowhouse vernacular.
Route 5 and 54 buses run within the vicinity, with the former traversing Frankford Avenue, the neighborhood’s primary commercial thoroughfare, situated within a three-minute walk to the northwest.
An 11-nunite walk to the northwest will take future residents to Kensington Avenue, another major retail corridor, which runs adjacent to McPherson Square, a green space which holds the eponymous, Neoclassically-styled library. The avenue is serviced by the route 3 bus and the elevated Market-Frankford subway line (the Somerset station is situated within a 16-minute walk to the northwest of the planned development).
The Frances E. Willard Elementary School and Jules E. Mastbaum High School also sit within a short walk of the proposed building.

3039 Martha Street. Site conditions prior to redevelopment. Credit: Marshall Sabatini Architecture via the City of Philadelphia

3039 Martha Street. Site conditions prior to redevelopment. Credit: Marshall Sabatini Architecture via the City of Philadelphia
Subscribe to YIMBY’s daily e-mail
![]()
Follow YIMBYgram for real-time photo updates
Like YIMBY on Facebook
Follow YIMBY’s Twitter for the latest in YIMBYnews






Be the first to comment on "Construction Permits Issued for Single-Family Dwelling at 3039 Martha Street in Kensington"