Construction permits has been issued for a three-story single-family rowhouse at 275 Delmar Street in Manayunk, Northwest Philadelphia. The new building will replace an existing driveway situated on the southeastern side of the block between Mansion Street and Silverwood Street, and will span 3,840 square feet. The development will feature a roof deck, balconies, a basement, and parking space for one vehicle. The project team consists of Tower Hill Development as the owner, KCA Design Associates as the architect, and Mallard Builders as the contractor.
Permits list construction costs at $400,000, which equates to approximately $104 per proposed interior square foot. The figure includes $280,000 allocated for general construction work, $20,000 for electrical work, $25,000 for mechanical work, $40,000 for plumbing work, and $35,000 for excavation work.

275 Delmar Street, Philadelphia. Front building elevation. Credit: Harman Deutsch Ohler Architecture via the Planning Department of the City of Philadelphia

275 Delmar Street, Philadelphia. Site conditions prior to redevelopment. Credit: Harman Deutsch Ohler Architecture via the Planning Department of the City of Philadelphia

275 Delmar Street, Philadelphia. Site conditions prior to redevelopment. Credit: Harman Deutsch Ohler Architecture via the Planning Department of the City of Philadelphia

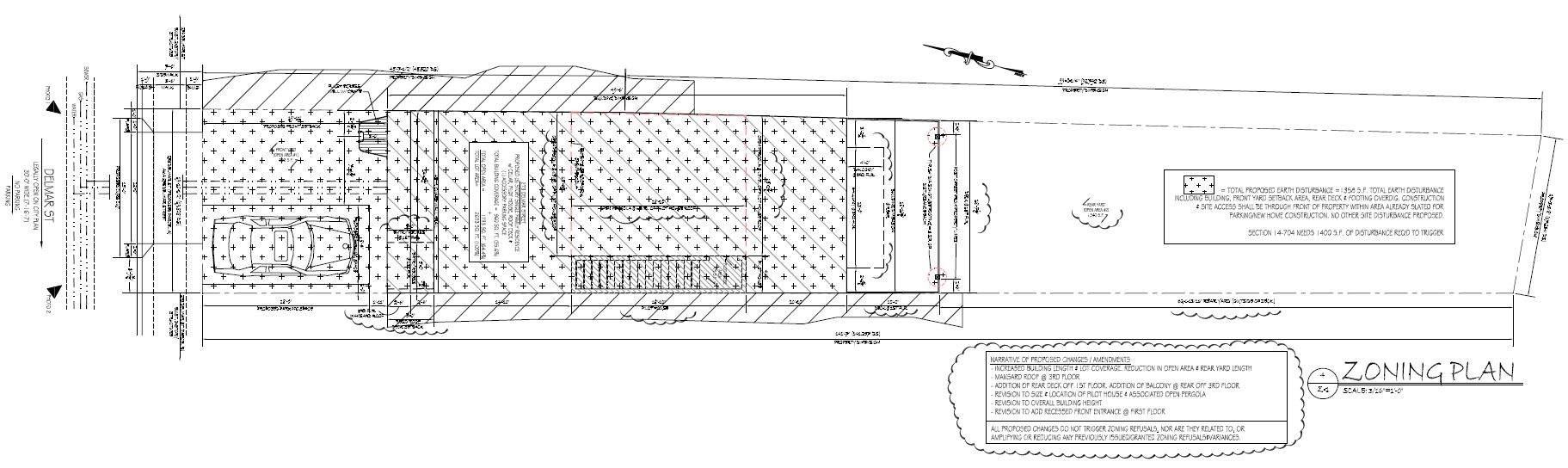
275 Delmar Street, Philadelphia. Proposed zoning site plan. Credit: Harman Deutsch Ohler Architecture

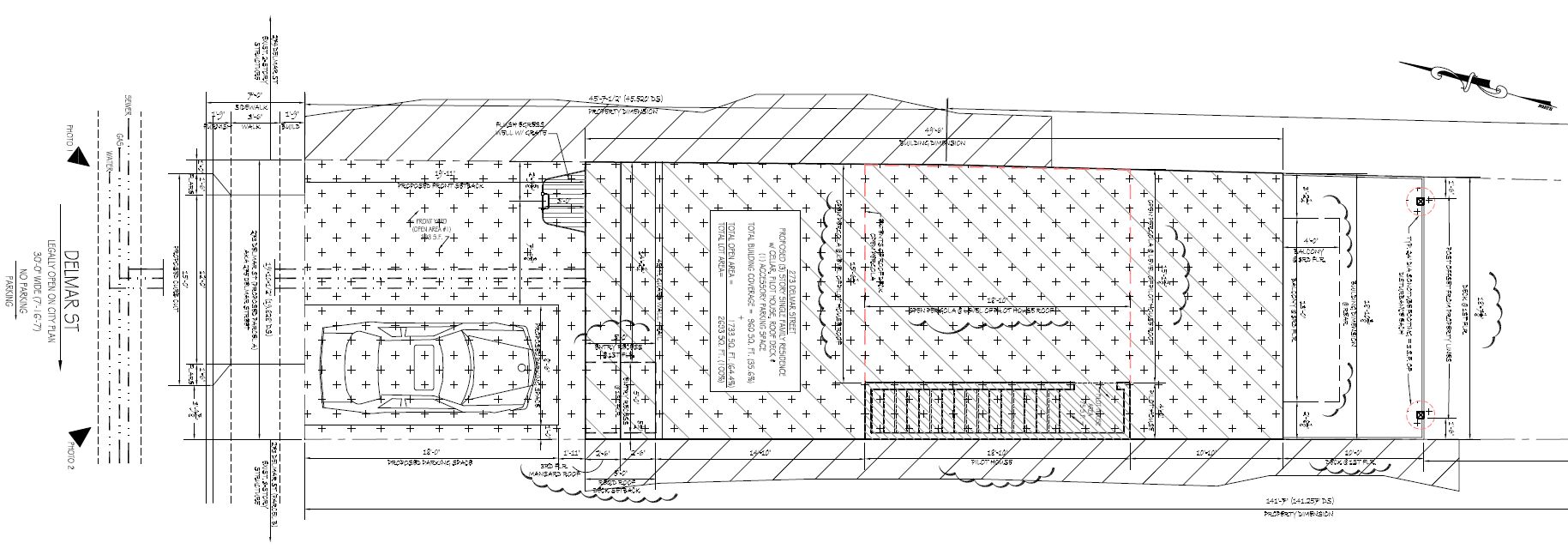
275 Delmar Street, Philadelphia. Proposed site plan. Credit: Harman Deutsch Ohler Architecture via the Planning Department of the City of Philadelphia

275 Delmar Street, Philadelphia. Proposed site plan. Credit: Harman Deutsch Ohler Architecture via the Planning Department of the City of Philadelphia

275 Delmar Street, Philadelphia. Proposed site plan. Credit: Harman Deutsch Ohler Architecture via the Planning Department of the City of Philadelphia

275 Delmar Street, Philadelphia. Side building elevation. Credit: Harman Deutsch Ohler Architecture via the Planning Department of the City of Philadelphia

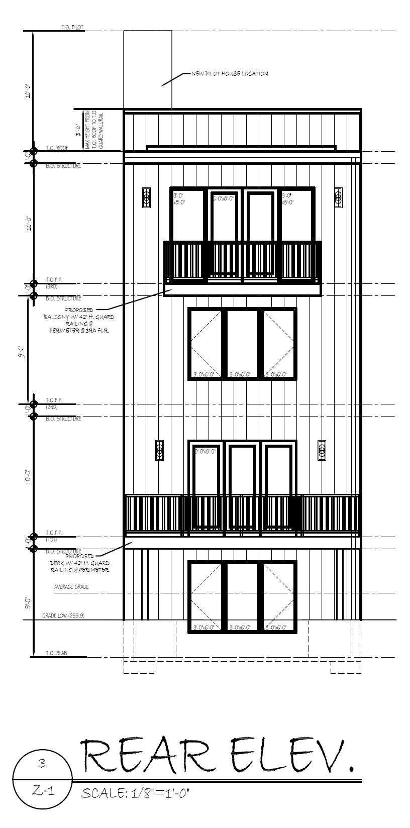
275 Delmar Street, Philadelphia. Rear building elevation. Credit: Harman Deutsch Ohler Architecture via the Planning Department of the City of Philadelphia
The street-facing facade will be adorned in an attractive manner with context-friendly brick laid in running and herringbone courses. Dormer windows will project from mansard-styled third floor. The attractive, historicist design will be more deferential to the predominantly prewar rowhouse than most of the recently constructed buildings in the immediate vicinity prewar rowhouse neighborhood.
Ceilings will rise ten feet at the first and third floors, and nine feet at the second story and in the basement. A ten-foot-deep deck will cantilever from the ground floor at the rear, with another rear-facing balcony situated at the third floor.
Route 9, 441, 442, and 448 buses run along Ridge Avenue within an eight-minute walk to the northeast of the proposal site. The Ivy Ridge Station on the SEPTA Regional Rail, as well as the route 62 bus, may be reached via an approximately 15-minute walk to the southwest.

275 Delmar Street, Philadelphia. Proposed building elevation. Credit: Harman Deutsch Ohler Architecture via the Planning Department of the City of Philadelphia

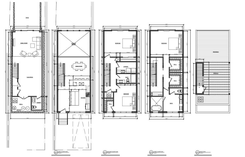
275 Delmar Street, Philadelphia. Proposed floor plans. Credit: Harman Deutsch Ohler Architecture

275 Delmar Street, Philadelphia. Zoning table. Credit: Harman Deutsch Ohler Architecture via the Planning Department of the City of Philadelphia

275 Delmar Street, Philadelphia. Proposed window sill section detail. Credit: Harman Deutsch Ohler Architecture via the Planning Department of the City of Philadelphia

275 Delmar Street, Philadelphia. Proposed window sill section detail. Credit: Harman Deutsch Ohler Architecture via the Planning Department of the City of Philadelphia

275 Delmar Street, Philadelphia. Proposed window sill section detail. Credit: Harman Deutsch Ohler Architecture via the Planning Department of the City of Philadelphia
Subscribe to YIMBY’s daily e-mail
![]()
Follow YIMBYgram for real-time photo updates
Like YIMBY on Facebook
Follow YIMBY’s Twitter for the latest in YIMBYnews






Be the first to comment on "Permits Issued for Construction of Single-Family Rowhouse at 275 Delmar Street in Manayunk, Northwest Philadelphia"