Permits have been issued for the construction of a four-story single-family residence at 2624 Tilton Street in the Olde Richmond neighborhood in Philadelphia’s River Wards district. The attached building, designed in a rowhouse manner, will replace an existing three-story prewar rowhome that stands on the northwest side of the block between East Albert Street and East Lehigh Avenue. The new structure will span 1,159 square feet. The development team includes Supreme Architects as the designer and Home Rangers LLC as the contractor.
The project construction cost is listed at $200,000, which translates to approximately $173 per buildable interior square foot. This total includes $110,000 allocated for general construction, $30,000 for electrical work, $30,000 for mechanical work, and $30,000 for plumbing work.

2624 Tilton Street. Site conditions prior to redevelopment. Credit: Supreme Architects via the City of Philadelphia

2624 Tilton Street. Site plan. Credit: Supreme Architects via the City of Philadelphia

2624 Tilton Street. Site plan. Credit: Supreme Architects via the City of Philadelphia
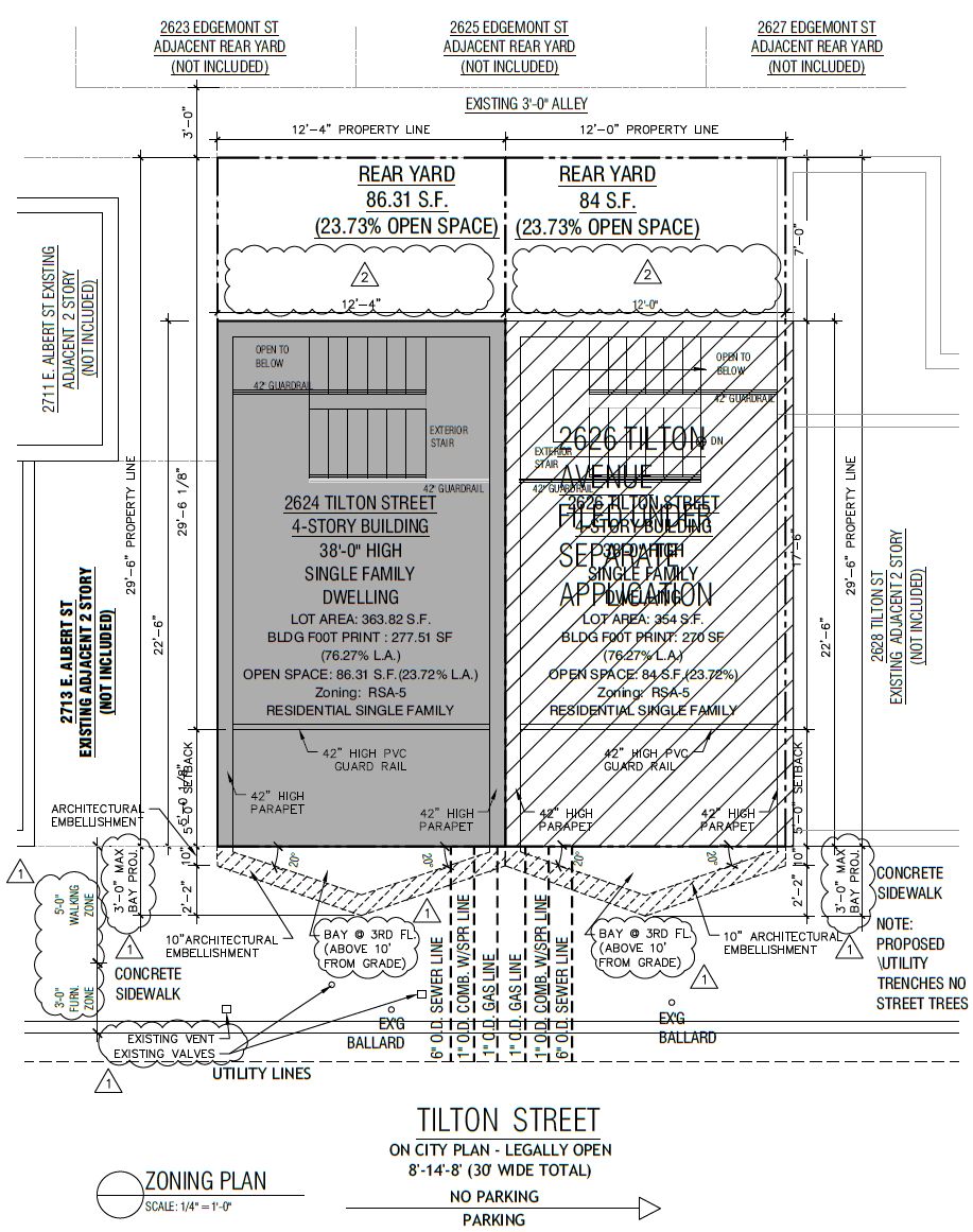
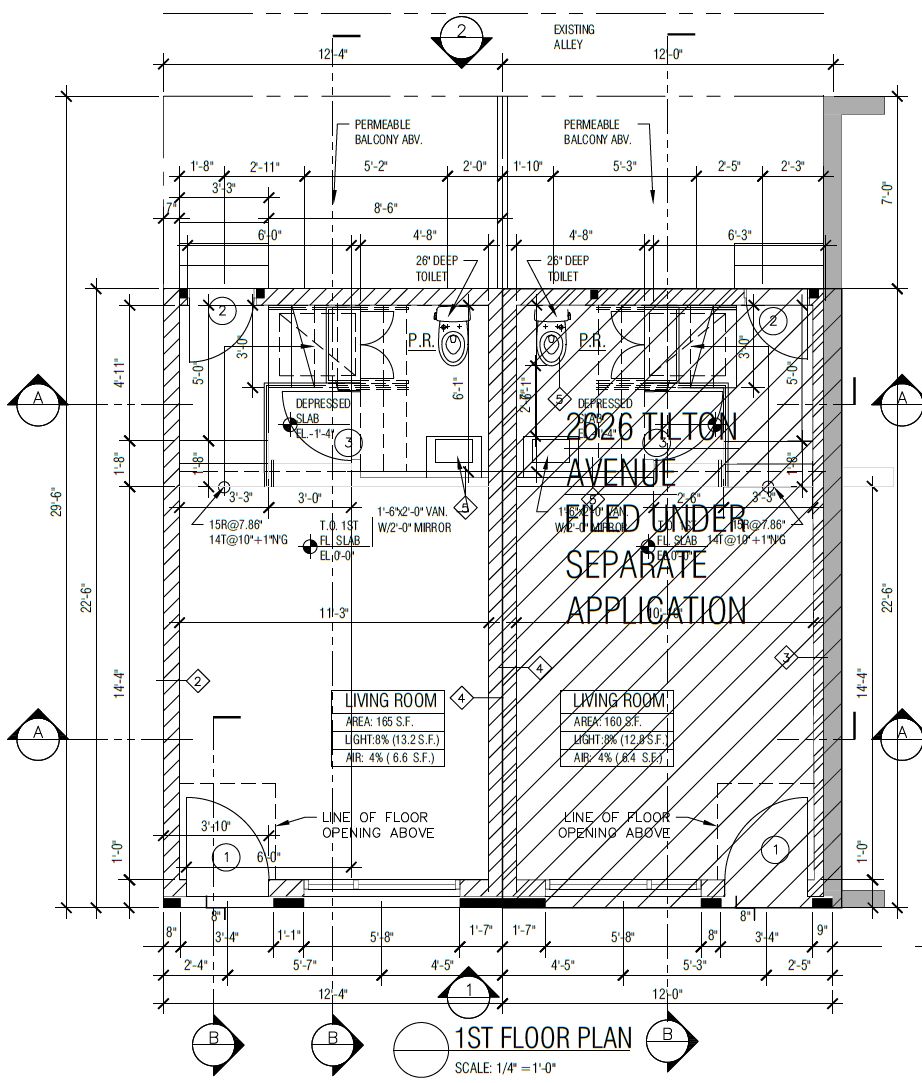
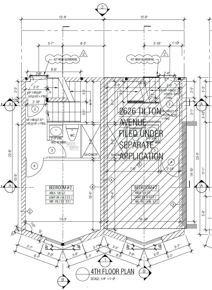
The structure is planned as one-half of a matched two-building set with a counterpart set to rise upon a vacant lot next door at 2626 Tilton Street. The new building will be rather compact in form, measuring just 12-and-a-half feet wide and 22-and-a-half feet long, leaving space for just one or so room per typical floor, as evidenced by the floor plans provided within the zoning documentation. The structure will make up for its small footprint size via its considerable height, as it will rise 38 feet to the main roof and nearly 42 feet to the top of the parapet.
No roof deck is explicitly mentioned, although a roof-access stair and a set-back guardrail indicate a possibility of such an amenity, which, given the proposed building’s prominent height above its predominantly three-story neighbors, would offer dramatic views of the city skyline. No basement is included in the proposal.

2624 Tilton Street. Floor plan. Credit: Supreme Architects via the City of Philadelphia

2624 Tilton Street. Floor plan. Credit: Supreme Architects via the City of Philadelphia

2624 Tilton Street. Floor plan. Credit: Supreme Architects via the City of Philadelphia

2624 Tilton Street. Floor plan. Credit: Supreme Architects via the City of Philadelphia

2624 Tilton Street. Roof plan. Credit: Supreme Architects via the City of Philadelphia
The new building, which will be clad in running bond brick on the lower two floors and in vertical siding on the floors above, will somewhat approximate a taller version of a similarly narrow prewar rowhouse that currently stands at the lot.
While redevelopment of the adjacent vacant lot at 2626 Tilton is a laudable proposition, replacement of the city’s ample yet gradually diminishing prewar rowhome stock is always unfortunate. Even though the existing structure at the site is rather plain, with its plain red brick facade, unadorned window lintels, and a long-since altered cornice with only corbelled brick corners remaining of its original visage, it is nevertheless exemplary of classic Philadelphia residential vernacular.

2624 Tilton Street. Site conditions prior to redevelopment. Looking northwest. July 2025. Credit: Google Street View via Google Maps
The route 39 bus runs around a block and a half to the west along East Huntingdon Street, and the G1 trolley runs slightly further to the south along Richmond Street, which passes alongside the elevated Delaware Expressway. Landscaping and bike lanes are situated alongside and beneath the expressway, though access to the nearby Delaware River waterfront is somewhat more challenging.

2624 Tilton Street. Zoning table. Credit: Supreme Architects via the City of Philadelphia
Subscribe to YIMBY’s daily e-mail
![]()
Follow YIMBYgram for real-time photo updates
Like YIMBY on Facebook
Follow YIMBY’s Twitter for the latest in YIMBYnews






To construct four floors within the 38 foot maximum height limit, the floor-to-ceiling heights are necessarily short, ranging from eight to nine feet.