Permits have been issued for new mixed-use construction at 222-224 South 45th Street in Spruce Hill, West Philadelphia, where a four-story attached building with a cellar is approved as Parcel A of a larger, coordinated development spanning South 45th Street and Locust Street. The project replaces an existing one-story structure and will introduce ground-floor commercial space with residential units above. The project is designed by Gnome Architects, with Sharrow Construction LLC listed as the contractor.
Permit records show total construction costs of $2.2 million, covering general construction work for the new building shell.

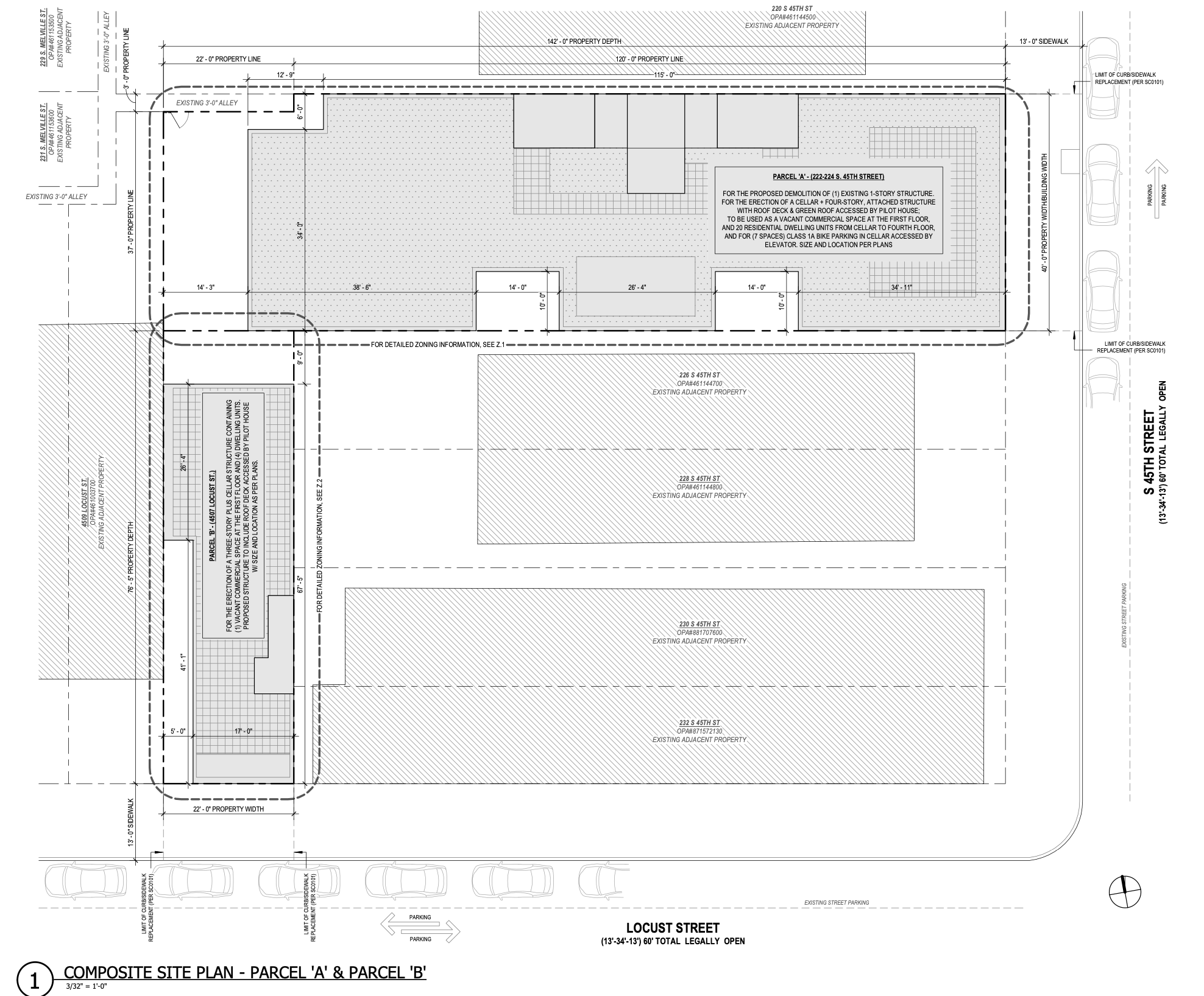
222-224 South 45th Street Composite Site Plan Parcels A & B via Gnome Architects LLC
According to zoning approvals, Parcel A will contain 20 residential dwelling units, arranged from the cellar through the fourth floor, with a vacant commercial space at the first floor. The building will rise four stories above grade and include both a roof deck and a green roof, accessed by three pilot houses. Bicycle storage is provided within the cellar, with nine Class 1A bicycle parking spaces served by elevator access, as shown on the approved plans.

222-224 South 45th Street Site Location via Gnome Architects LLC
The property is zoned CMX-2, and the project utilizes a green roof density bonus, allowing the residential count to reach 20 units. Zoning data indicates a total lot area of approximately 5,614 square feet, with proposed lot coverage of roughly 84.6 percent. Open area totals approximately 15.4 percent, meeting zoning requirements. The maximum building height is listed at 45 feet above grade, consistent with CMX-2 limits, and the roof deck is set back in compliance with required setbacks.

222-224 South 45th Street Plan Parcel A via Gnome Architects LLC
Architectural drawings depict a long, rectilinear building mass extending along South 45th Street, with side courts integrated into the plan to bring light and air into the residential floors. The roof level is organized with a combination of green roof areas and occupiable roof deck space, while pilot houses are limited in size and height in accordance with zoning controls. The ground floor commercial space fronts the street and is clearly delineated from residential access points.
Parcel A is part of a larger site plan that also includes Parcel B at 4507 Locust Street, where a separate mixed-use building is approved along the Locust Street frontage. A construction start date has not yet been announced.
Subscribe to YIMBY’s daily e-mail
![]()
Follow YIMBYgram for real-time photo updates
Like YIMBY on Facebook
Follow YIMBY’s Twitter for the latest in YIMBYnews






Be the first to comment on "Four-Story, 20-Unit Mixed-Use Building Approved at 222-224 South 45th Street in Spruce Hill, West Philadelphia"