Permits have been issued for new residential construction at 1940 Wharton Street in Point Breeze, South Philadelphia, where an attached three-story single-family residential building is approved to replace a vacant parcel. The project will include a cellar and a roof deck with a roof-deck access structure. Zoning and building permit records list 1940 Wharton Street LLC as the property owner, with Toner Architecture responsible for the design and Backcourt Builders LLC serving as the contractor.
Construction costs are listed as $625,000. The breakdown includes $550,000 for general construction, $25,000 for excavation, $18,000 for mechanical work, $17,000 for electrical work, and $15,000 for plumbing.

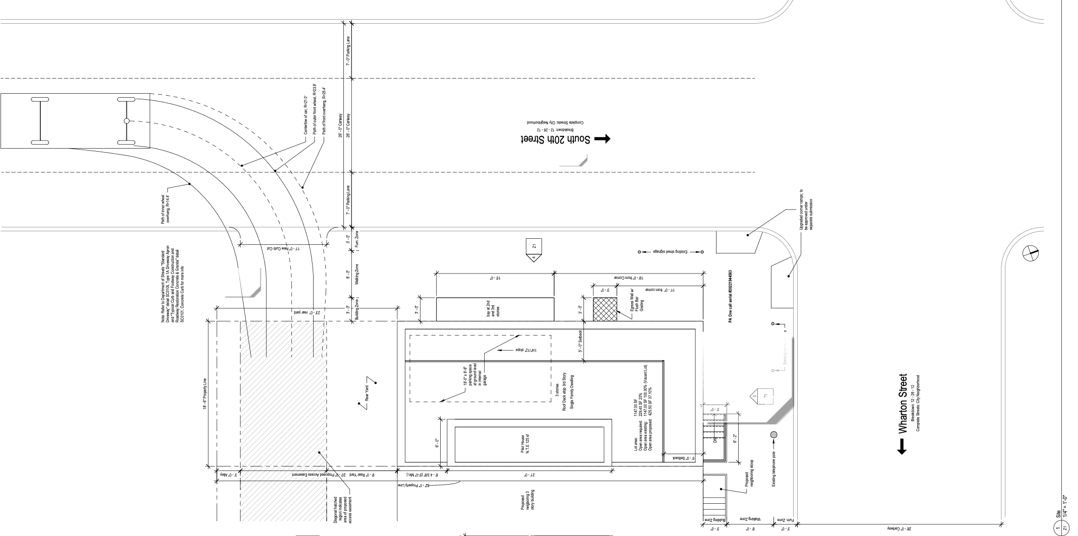
1940 Wharton Street Site via Toner Architects
The building is classified as R-3 residential occupancy. Zoning documents place the property within an RSA-5 zoning district on a parcel measuring approximately 1,147 square feet. Proposed building coverage totals approximately 720 square feet, equating to 62.9 percent lot coverage, which remains below the maximum permitted for a corner lot in the district. A rear yard measuring nine feet in depth is provided, and the maximum building height is listed at 38 feet.

1940 Wharton Street Area Plan via Toner Architects
Architectural drawings depict a rectilinear three-story form with vertically aligned window openings across the front and side elevations. The front façade includes an elevated entry reached by exterior steps, while the roof deck is set back from the building edge and accessed via a pilot house that remains within zoning height limits. A single accessory parking space is provided at grade and is accessed through a shared driveway arrangement approved under a separate zoning permit.

1940 Wharton Street West Elevation via Toner Architects
No construction timeline has not been disclosed.
Subscribe to YIMBY’s daily e-mail
![]()
Follow YIMBYgram for real-time photo updates
Like YIMBY on Facebook
Follow YIMBY’s Twitter for the latest in YIMBYnews






A construction cost of $625,000 for an approximately 2,900 square foot home seems excessive.
Craig: There’s a residential permit for a similar but smaller house at 1938 Wharton Street. The $625,000 might be a combined total for 1938 and 1940 Wharton Street. If so, the subtotal for 1940 Wharton would be about $342,000 (based on 55% of the combined floor area in a proportional split). The subtotal for 1938 Wharton would be approximately $283,000 (45%).
$342,000 makes more sense, Paul. Thank you for the info.