A new mixed-use development is planned at 309-321 West Mount Pleasant Avenue in Northwest Philadelphia, where permits and zoning approvals outline the construction of a five-story residential building replacing existing structures on the site. The project site spans multiple consolidated parcels totaling approximately 18,545 square feet and is zoned CMX-2, allowing neighborhood-scale mixed-use development. The development is designed by CosciaMoos Architecture, with engineering work by Alfa Engineering and Hutec Engineering, and is being developed by HP Mount Pleasant Realty LLC.
Plans call for a five-story structure with a cellar, yielding 66 residential units above ground-floor commercial space. The first floor is designed to include four separate commercial tenant spaces positioned along the street frontage, along with a residential lobby and back-of-house areas. Residential uses occupy the upper floors, with additional amenities including a gym, storage, and common areas integrated throughout the building program.

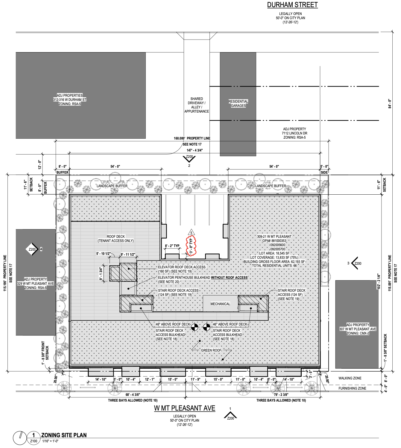
309 West Mount Plesant Avenue Plan via CosciaMoos Architecture
The project incorporates accessory parking with 23 vehicle spaces, including one accessible and one electric vehicle space, as well as 24 Class 1A bicycle parking spaces. A surface parking area is located at the rear of the site and accessed via a curb cut along West Mount Pleasant Avenue, with landscape buffers and screening elements required where the lot abuts neighboring residential zoning districts.
Zoning calculations indicate that the development reaches the maximum permitted 66 units through the use of both a green roof bonus and a mixed-income housing bonus. At least seven units are designated as affordable housing, allowing an increase in residential density beyond the base allowance. The building rises to a maximum height of 45 feet, consistent with CMX-2 bonus provisions, and includes a roof deck for residents along with stair and elevator access structures.

309-21 West Mount Pleasant Avenue. Credit: CosciaMoos Architecture.
Architectural plans depict a rectilinear massing that fills much of the lot, with a flat roof and multiple rooftop structures set back from the edges. The elevations show a consistent façade rhythm defined by vertically aligned window groupings and projecting boxed bay elements, while the ground level is partially opened for parking and commercial frontage. A green roof spans a significant portion of the building’s top surface, contributing to stormwater management and enabling the density bonus.
A separate demolition permit has already been issued to clear existing structures from the site in preparation for construction. This project will rise immediately adjacent to 307 West Mount Pleasant Avenue, continuing the pattern of mixed-use development along the corridor.
Subscribe to YIMBY’s daily e-mail
![]()
Follow YIMBYgram for real-time photo updates
Like YIMBY on Facebook
Follow YIMBY’s Twitter for the latest in YIMBYnews






66 residential units.
23 parking spaces.
24 bicycle spaces.
That’s only 47 spaces.
How many spaces will the surface lot hold?
No one will be allowed to have visitors parking.
There is a development in my neighborhood that Philly Yimby does not want to write about that’s very similar in size in a very nice neighborhood outside the city limits that’s served by SEPTA Bus route 22.
I wrote to Philly Yimby about that project.
I never heard back.
Fantastic news!
@ Smiliñ Brian
As I read it, those are the numbers for the surface lot – there is no additional parking beyond the 47 spots. Street parking is available for guests. Also, please remember that not everyone drives and bikes. Many of us use SEPTA, Uber, etc.
I think it is way too bulky for the area, although a more modest building would be a vast improvement to the neighborhood!
Too bulky?
There are several developments in my neighborhood that are on the same massive scale.
Correct
Those balconies either project far out or the perspective makes it seem so. If the former, that would be far out.
The shared driveway off Durham St. means there will be no new curb cut or drive aisle.
The West Mount Pleasant ground floor is people friendly, with large windows looking into four commercial spaces and lobby. From the front, there is no evidence of the internal combustion engine. Add seven affordable units, gym, common areas, roof deck, extensive landscaping, green roof, and street trees and you get a stunning project. CosciaMoos Architecture is one of Philly’s best design firms.
The site plan shows the balconies projecting 4 feet 8.375 inches from the façade. But the perspective makes them seem to project 4 feet 8.5 inches.
Ha ha
It’s stunning! I’m excited to see this building when it is completed.
The renderings were first published on this website back in September 23, 2024. 😉