Permits have been issued for the construction of a new four-unit residential building at 3230 North 15th Street in Nicetown-Tioga, North Philadelphia Property records list 3230 N 15th Street LLC as the owner. J Design and Consultants LLC is responsible for the design.
The total construction area is listed at 3,979 square feet. Cost estimates in the permit record place construction at $270,000, including $150,000 in general construction costs and $30,000 each allocated for electrical, mechanical or fuel gas, plumbing, and excavation work.

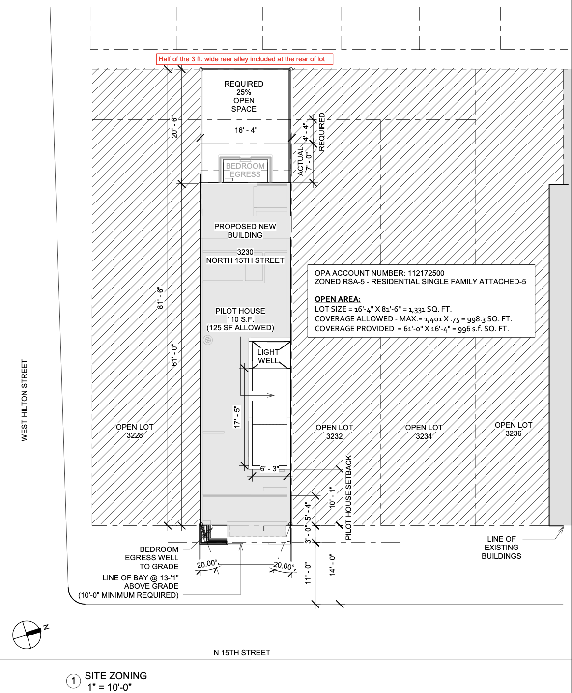
3230 North 15th Street Plan via J Design and Consultants LLC
The project is approved for new construction of an attached structure. The building will contain four dwelling units and will be fully sprinklered in accordance with NFPA 13 standards. The approved scope of work includes a roof deck and a pilot house, with separate permits required for plumbing, mechanical, electrical, and fire suppression systems.

3230 North 15th Street West Elevation via J Design and Consultants LLC
Permit records list four stories of work, and zoning drawings illustrate a multi-level structure with residential floors arranged vertically and a roof deck with an access structure above.

3230 North 15th Street South Elevation via J Design and Consultants LLC
The zoning permit for the project was originally issued in March 2022 and later extended in accordance with Philadelphia zoning code provisions, with no changes to the approved scope. A building permit was subsequently issued on April 3, 2026. The estimated construction timeline has not been revealed yet.
Subscribe to YIMBY’s daily e-mail
![]()
Follow YIMBYgram for real-time photo updates
Like YIMBY on Facebook
Follow YIMBY’s Twitter for the latest in YIMBYnews






The street elevations display three units, unit 3 occupying the top two floors (“Level 2 and Level 3”), unit 2 on the ground floor (“Level 1”), and unit 1 not marked but presumably in the cellar. With balconies front and back, a roof deck, and a backyard, there will be plentiful outdoor space.
Although most of the 3200 block of N. 15th St. is currently open space, if extant 3238-44 and 3252 are any indication, this must have been a splendiferously wonderful area architecturally.
Craig:
Both the original zoning permit application (dated September 2021) and the commercial building permit (April 2026) describe four dwelling units, although the locations of Unit 1 and Unit 4 are not shown on the zoning permit drawings.
Regarding projecting balconies and bay windows:
I’ve seen hundreds if not thousands of designs for attached houses and other types of urban buildings with no setbacks from the street. I almost never see drawings of new bay windows or balconies projecting above a public sidewalk to the extent shown in this proposal for 3230 N 15th. I almost always see smaller projections or splayed bay windows which are designed to remain within the 20 angle from the street line required by Chapter 11-600 of the Philadelphia Code. I’m not an authority on Philly’s municipal code, but that’s how I interpret the long-standing regulations for balconies and bay windows projecting above streets.
…the 20° angle…
I didn’t know about the 20 degree angle code requirement. Thanks.
Numerous YIMBY articles include plans which show the 20 degree angle (from the street line). This is the first time I’ve noticed a plan with the angle shown 20 degrees from the party line instead of the street line. To me, the wording of Code Section 11-603.4.d is unambiguous.
But that’s my own interpretation of Philly’s code, which is not the same as everyone else’s interpretation, obviously. Although the angle isn’t identified on the plan for 883 N 45th St (in YIMBY’s April 14, 2026 article), I’m guessing the designer might have interpreted the required angle as 20° from the party line, not from the street line. I don’t know. Sometimes things on drawings stick out enough to capture my attention.
The “far out” balconies proposed for 309-321 Mount Pleasant Ave (April 10, 2026 and September 23, 2024) caught your eye and mine, too. My facetious reply to your comment was for a laugh, but a serious reply would have been something like this:
“Yes, Craig, those balconies project far out…at least 8.375 inches too far out, per my interpretation of Code Section 11-603.4.e.”
On matters of the public realm (street walls, sidewalks, curb cuts, poles, signs, parking, etc.), I hold to generally conservative and “safe” interpretations of rules and regulations. But for the design of 1441 Germantown Avenue (March 28, 2026), I think Ambit Architecture’s interpretation of Code Section 11-603 is even more conservative than mine. In my opinion, the 20° angle applies to intersections of a street line with a party line, not to the intersections of two street lines. As far as I know, turrets, balconies, and bay windows are allowed to project 3 feet beyond street corners.