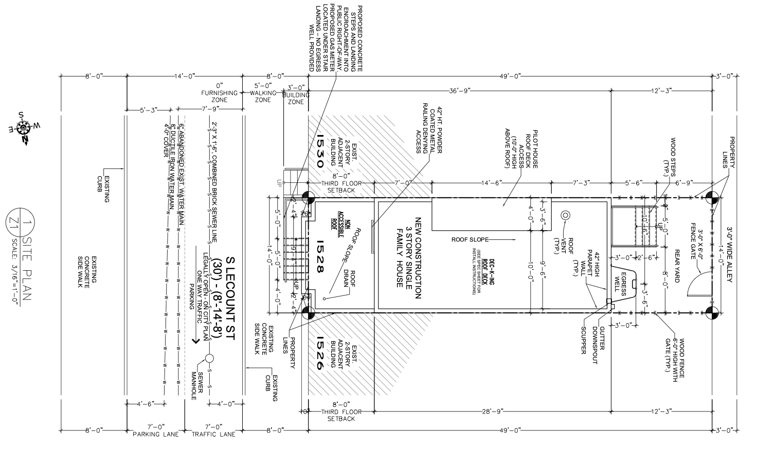
A zoning permit has been issued for the construction of a three-story single-family residence at 1528 South LeCount Street in the Grays Ferry neighborhood in South Philadelphia. The project site is currently vacant and spans a 686-square-foot parcel on a block of attached rowhouses. Philly Plans LLC is responsible for the designs. The property is owned by Ismaleah LLC, with Med DCD Group LLC listed as the contractor.
The approved scope calls for the erection of an attached structure for single-family household living, rising to a height of 35 feet and yielding approximately 1,622 square feet of construction space. The building will include a roof deck and a pilot house providing access above the main roof level. The structure is classified under R-3 residential occupancy and will be fully sprinklered.

1528 South LeCount Street Plan via Philly Plans LLC
The property is zoned RSA-5 and does not conform to current minimum lot standards, measuring 14 feet in width where 16 feet is required and containing 686 square feet of area where 1,440 square feet is typically mandated. The proposed structure meets applicable bulk and dimensional controls. The building footprint is set at 514.5 square feet, occupying 75 percent of the lot, which is the maximum permitted. Open space totals 171.5 square feet, meeting the required 25 percent minimum. A rear yard depth of 12 feet 3 inches exceeds the 9-foot minimum requirement, and the overall height remains below the 38-foot limit.

1528 South LeCount Street Rear Elevation via Philly Plans LLC
Plans show the structure extending across the majority of the lot width between two existing two-story attached buildings. The front elevation incorporates a combination of brick veneer at the lower levels and siding above, with vertically aligned window openings. A raised entry accessed by exterior steps leads to the main floor, with the stair and landing partially extending into the public right-of-way as indicated in the approved plans. The rear elevation includes vinyl siding, paired window groupings, and a roof deck enclosed by a parapet wall, with a pilot house structure providing access to the roof level.
The project introduces new construction on an undersized lot, utilizing the maximum permitted lot coverage while meeting required open space and setback provisions.
Subscribe to YIMBY’s daily e-mail
![]()
Follow YIMBYgram for real-time photo updates
Like YIMBY on Facebook
Follow YIMBY’s Twitter for the latest in YIMBYnews






Two angles, each 20° with the street line, are drawn on the site plan. Two Philly YIMBY readers, if no one else, might observe those two 20° angles.
An explanation of the honorific renaming of Taney Street is something I’ll leave for another Philly YIMBY reader…
Taney street was widely believed to be named after Roger B. Taney, the Chief Supreme Court Justice in the Dred Scott v. Sanford case. The Supreme Court ruled that current and former enslaved people were not American citizens and had no right to sue in federal courts. The verdict was announced in 1857. One year later, the city of Philadelphia changed the name Minor Street to Taney Street.
Caroline LeCount was born in 1846 and worked at the Ohio Street School for over 50 years as a teacher and principal. LeCount is considered “Philadelphia’s Rosa Parks” for her work desegregating Pennsylvania’s streetcar system.
The community worked for years to convince City Council to change from a street named after a racist to one honoring a civil rights activist.