A zoning permit has been issued for the construction of a three-story, nine-unit multi-family building at 8-10 Osborn Street in Manayunk, Northwest Philadelphia. The project consolidates two parcels into a single development site, with the primary permit filed under 10 Osborn Street. Permits list Designblendz Architecture as the architect for the project, JA Builders LLC as the contractor, and G5 Realty Holdings LLC as the owner.
Construction costs are listed at $1,200,000, according to permit filings.

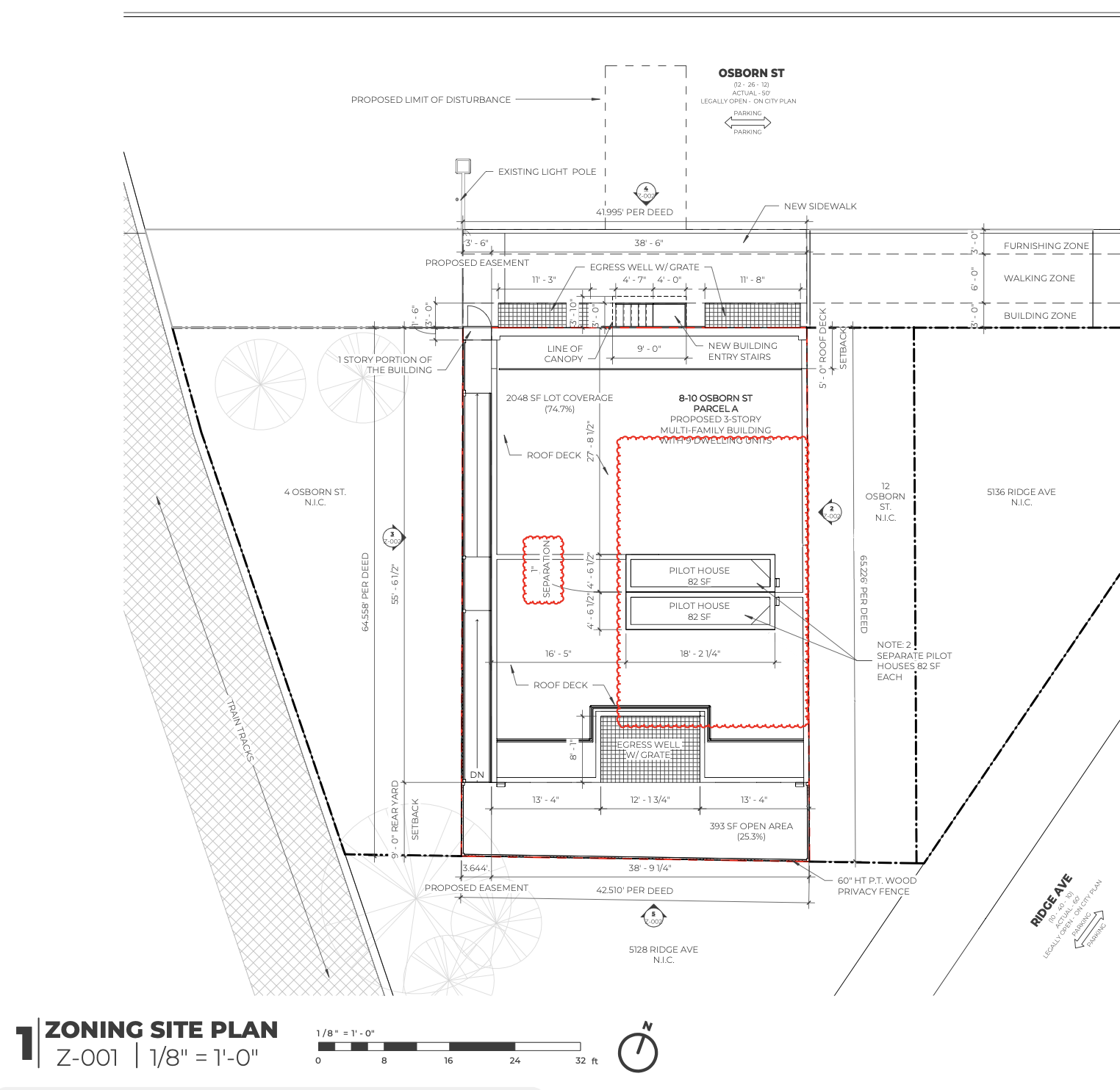
10 Osborn Street Plan via Designblendz Architecture
The approved scope calls for the erection of an attached three-story residential building with a basement, yielding nine dwelling units along with two separate occupiable roof decks accessed via individual pilot houses. The structure will be fully sprinklered in accordance with NFPA 13 and classified as Type V-B construction. Permit documentation lists the primary parcel as 10 Osborn Street, reflecting the lot consolidation shown in the project drawings.

10 Osborn Street Northwest Elevation via Designblendz Architecture
The development will span approximately 8,122 square feet of construction area on a 2,741-square-foot lot. Residential occupancy is classified as R-2, with units distributed across the basement and three above-grade levels. The proposal utilizes a mixed-income housing density bonus tied to one income-restricted unit, allowing the project to reach a total of nine residential units.

10 Osborn Street Plan Location Map via Designblendz Architecture
The site is zoned RM-1, a multifamily residential district. Zoning data indicates a lot width of approximately 41.9 feet and a total lot area of 2,741 square feet. The building footprint covers 2,048 square feet, representing 74.7 percent lot coverage, just below the district maximum of 75 percent. A rear yard depth of nine feet is provided, meeting minimum requirements, while no front or side yard setbacks are required for attached multifamily construction. The structure rises to a height of 37 feet 3 inches, below the 38-foot limit, with pilot houses extending to 47 feet. A five-foot setback is provided for the front portion of the roof deck.

10 Osborn Street Southwest Elevation via Designblendz Architecture
Plans show a building form adapted to the irregular, triangular parcel, with the structure occupying most of the site and leaving 393 square feet of open area at the rear. Elevations depict a three-story façade with regularly spaced window openings and a centered entrance along Osborn Street, marked by a modest canopy. The roof level includes two separate pilot houses and occupiable deck space. Section drawings indicate stacked residential units organized around a central circulation core, with additional space extending into the basement level.

10 Osborn Street Section via Designblendz Architecture
The project introduces new multifamily housing on a constrained infill parcel in Manayunk, located near the border with Wissahickon in Northwest Philadelphia, while utilizing the full extent of permitted zoning allowances for the site.
Subscribe to YIMBY’s daily e-mail
![]()
Follow YIMBYgram for real-time photo updates
Like YIMBY on Facebook
Follow YIMBY’s Twitter for the latest in YIMBYnews






A nice looking building.
Agree! And a good location for it.
Right down Ridge Ave. is the Regal UA Main Street movie theatre and the Pencoyd foot bridge, which crosses the Schuylkill River and connects directly to the Pencoyd Trail in Lower Merion. Once across the river, The Landing Kitchen serves casual fare and has abundant outdoor seating overlooking the Schuylkill.
Not far beyond the movie-plex is a new, state-of-the-art transit hub at the rebuilt Wissahickon Transportation Center, serving 11 bus routes (1, 9, 27, 35, 38, 61, 62, 65, 82, 124 and 125). If that’s not enough, Septa’s regional rail Wissahickon Train Station is also nearby.
The Schuylkill River Trail is being extended to that area. Moreover, Wissahickon Park, with its many miles of hiking and bike trails, is within easy walking distance. Main Street in Manayunk is also accessible.
Where do I sign the lease?