Permit Issued for Six-Unit Residential Building at 2643 Emily Street in Grays Ferry, South Philadelphia

2643 Emily Street Section-Elevation2643 Emily Street Section-Elevation via DMG Property 63 LLC

A zoning permit has been issued for the demolition of an existing structure and the construction of a new multi-family residential building at 2643 Emily Street in Grays Ferry, South Philadelphia. The project site is currently occupied by a two-story house slated for removal, making way for a four-story development on a 2,921-square-foot parcel. The property is owned by DMG Property 63 LLC. PASP LLC is the contractor.

Construction costs are reported at $360,000, including $330,000 in general construction and $30,000 allocated for excavation work.

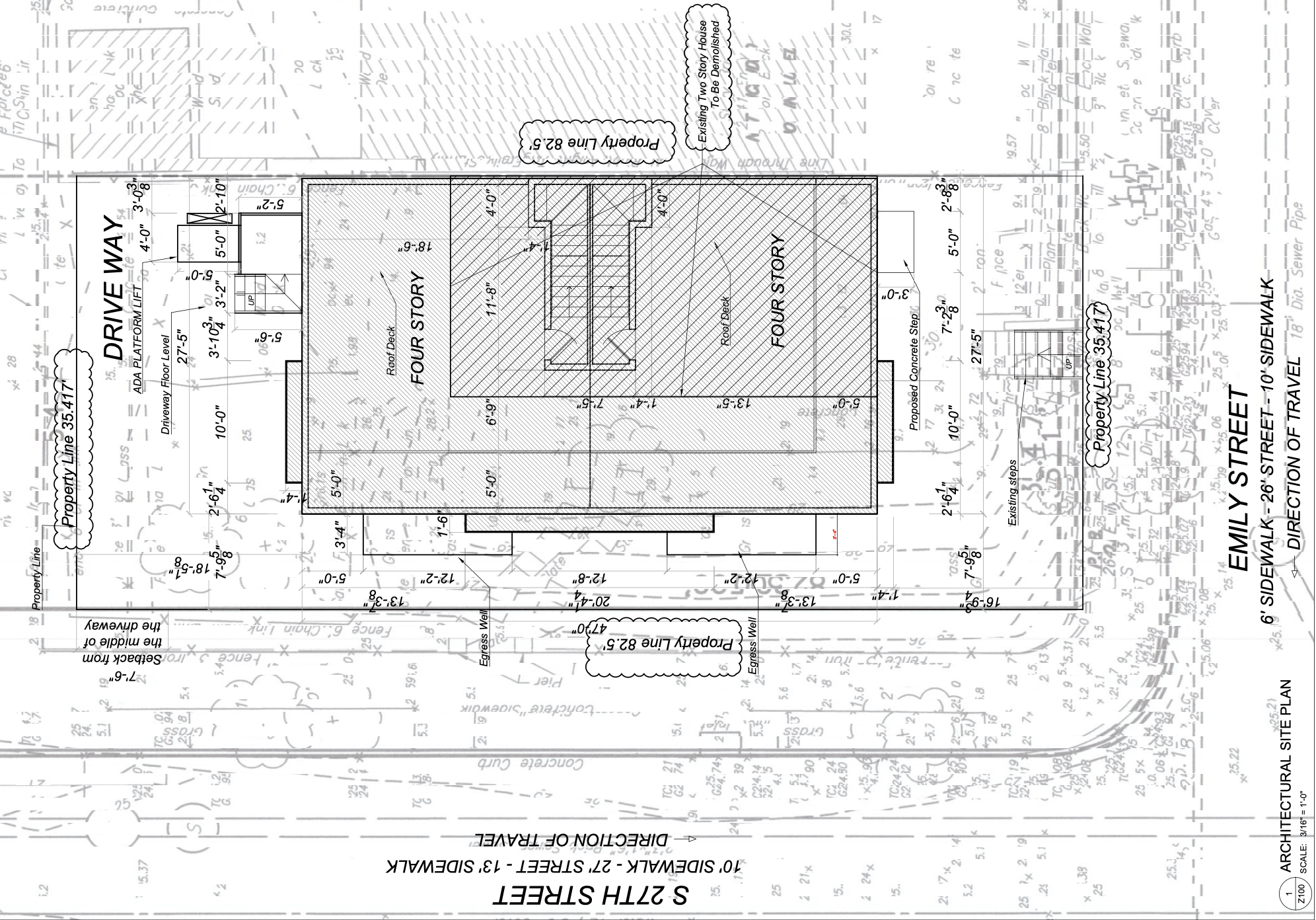
2643 Emily Street Plan

2643 Emily Street Plan via DMG Property 63 LLC

The approved scope calls for the erection of a four-story semi-detached structure with a basement, designed to accommodate six residential units. The building will include roof decks and pilot house enclosures providing stair access to the roof level. The structure is classified under R-2 residential occupancy.

The project yields approximately 6,300 square feet of construction area and is planned to rise to a height of 36 feet 10 inches, remaining below the 38-foot maximum permitted under current zoning regulations.

Zoning analysis indicates the property falls within an RM-1 district and complies with applicable bulk and dimensional standards. The building footprint spans 1,345 square feet, accounting for 46 percent of the lot, well below the maximum permitted lot coverage. The project also provides 584.37 square feet of rear yard open space and maintains a minimum rear yard depth of nine feet, consistent with code requirements.

2643 Emily Street Location Map

2643 Emily Street Location Map via DMG Property 63 LLC

Plans show a vertically organized structure with stacked residential units accessed via an internal stair. The building includes a basement level, four floors of residential space, and rooftop amenities consisting of open deck areas flanking a central pilot house. The semi-detached configuration distinguishes the project from the surrounding rowhouse fabric, with spacing provided along one side of the structure.

The development replaces an existing low-rise dwelling with a higher-density residential use, introducing additional housing capacity on the block while maintaining compliance with zoning controls.

Subscribe to YIMBY’s daily e-mail

Make YIMBY preferred on Google

Follow YIMBYgram for real-time photo updates
Like YIMBY on Facebook
Follow YIMBY’s Twitter for the latest in YIMBYnews

.

2 Comments on "Permit Issued for Six-Unit Residential Building at 2643 Emily Street in Grays Ferry, South Philadelphia"

  1. Great article, very informative content.

  2. Craig M Oliner | April 23, 2026 at 10:47 am | Reply

    This section of Grays Ferry is composed of block after intact block of attractive two story all brick single family rowhomes, nearly all with Mansard (many with their original slate) roofs. Most townhome rows are capped with open space on either end.

    The neighborhood was built in the 50’s and 60’s when Philadelphia’s population was near its peak of 2.07 million. Although now closer to 1.6 million, this community has retained both its housing stock and appeal. There are no vacant homes or lots.

    2643 Emily Street construction involves demo of the current (well kept) end-of-row house and use of adjacent open area to create a wider than typical (35 feet) multifamily residence with a whopping 6,300 square feet of livable space.

    The district’s pleasing look is in large part because of the repetitive rhythm of almost identical homes. Reconstruction of 2643 Emily Street disrupts that.

Leave a comment

Your email address will not be published.


*