A zoning permit has been issued for the construction of a new multi-family residential building at 883 North 45th Street in West Philadelphia. The project site is a vacant lot located mid-block along North 45th Street and is zoned RM-1, which permits multi-family residential development. The property is owned by 883 45th Street Holdings LLC. Olympia Construction LLC is listed as the contractor, and James Clancy is identified as the design professional in responsible charge.
Construction costs are listed at approximately $150,000, with the full amount attributed to general construction work.

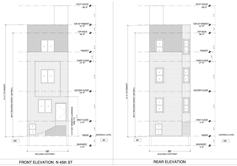
883 North 45th Street Plan via Olympia Construction
The approved plans call for the erection of a three-story attached structure containing three residential units. The building will be fully sprinklered in accordance with NFPA 13 standards. According to permit records, the structure will rise to a height not exceeding 38 feet and will contain a total construction area of approximately 2,870 square feet. Zoning plans indicate a lot area of 1,368 square feet, with 1,026 square feet designated as occupied area and 342 square feet as open space. A rear yard depth of 20 feet is provided. The development complies with the dimensional standards of the RM-1 zoning district, including height limits and required open area.

883 North 45th Street Lateral Elevation via Olympia Construction
Architectural drawings show a vertically organized structure with three residential levels above a basement. The front elevation features a bay projection and a mix of façade materials, while the upper portion transitions to a brick finish near the roofline. The building includes a roof deck positioned above the third floor, accessed via a pilot house that rises above the main roofline. The rear elevation incorporates aligned window openings and a consistent vertical rhythm, while the lateral elevation reflects the full height and massing of the structure within the narrow lot conditions.

883 North 45th Street Location
The project will introduce new residential density on a currently vacant parcel, contributing to the existing rowhouse fabric along North 45th Street. No construction timeline has been announced.
Subscribe to YIMBY’s daily e-mail
![]()
Follow YIMBYgram for real-time photo updates
Like YIMBY on Facebook
Follow YIMBY’s Twitter for the latest in YIMBYnews






A new building is sure to enhance the dreadful block.
I wonder if this development would add Central Air Conditioning (the surrounding homes have window fans).
It’s not my neighborhood.
Would you want to live there?
Forget about off-street parking.
Everyone’s parking on the street.
You will find SEPTA Route 10 Trolley along Lancaster Avenue around the corner.
Less than a mile south along 46th street takes you to the 46th Street station of the Market-Frankford Line.
Good luck living there. 😁
Olympia Construction LLC should provide insights to Philadelphia Housing Authority (PHA). The three units at 883 North 45th Street are being built for a total of $150,000, or $50,000 per unit. Although size is usually larger, PHA typically spends $300,000 per unit.
The $150,000 on the building permit is for general construction. No costs are listed for fire suppression, HVAC, electrical, plumbing, or excavation.
On the site plan, ‘W’ should be at the top of the compass rose. ‘N’ should be on the right. 881 and 885 are flip-flopped.
I’ve seen thousands of rowhome and attached house designs, but this is the first time I’ve seen winder stairs shown on a plan for an entry stoop on new construction. Also, I usually see smaller projecting bay windows or bays with splayed sides, not extending beyond the 20 degree angle from the party lines (required by Philly’s zoning regulations).
Great insights Paul.
“Also, I usually see smaller projecting bay windows or bays with splayed sides, not extending beyond the 20 degree angle from the party lines (required by Philly’s zoning regulations).”
Two *CORRECTIONS*…
Also, I usually see smaller projecting bay windows or bays with splayed sides, not extending beyond the 20 degree angle from the *STREET LINE AT ITS INTERSECTION WITH THE* party lines (required by Philly’s *CODE*).