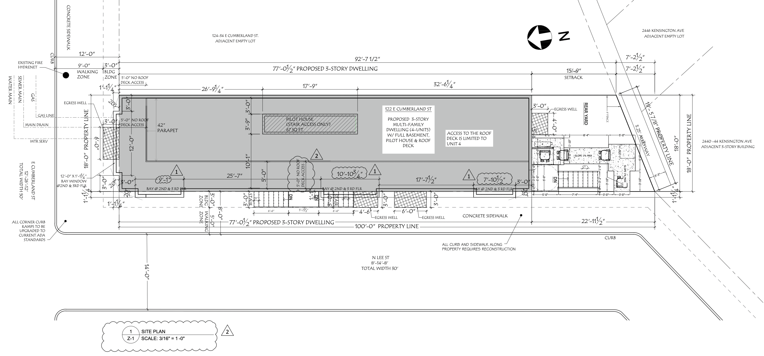
Permits have been issued supporting the development of a three-story, four-unit residential project at 122 East Cumberland Street in West Kensington, Philadelphia. The project site spans an area of 1,749 square feet and is situated on a block bound by North Lee Street, North Front Street, and East Cumberland Street. Cumberland Estates LLC is listed as the owner. CUS Construction Inc is serving as the contractor. Glenwood Engineering is responsible for designs.
The total construction cost is listed at $180,000, with an additional $10,000 allocated for excavation, with the general projected cost at $190,000.

122 East Cumberland Street Site Plan via Glenwood Engineering
The approved scope of work allows for the new construction of a structure with a full basement, a roof deck, and a pilot house. Each unit will feature four bedrooms and three bathrooms. Units on the basement and first floors will span 1,386 square feet each, while the second and third-floor units will measure 1,477 square feet each. Access to the roof deck will be exclusive to Unit 4, located on the top floor. A 67-square-foot pilot house will provide stair access to the roof.

122 East Cumberland Street Elevations via Glenwood Engineering
The building’s total construction area is 5,726 square feet. Architectural drawings express the facade in horizontal siding, stone veneer, and metal veneer on the exterior. The front and right elevations employ bay windows on the second and third floors. A rear egress stair and multiple egress wells are included for basement-level access and safety compliance. The residence will rise to a height of 35 feet.

122 East Cumberland Street Section via Glenwood Engineering
The building will be fully sprinklered. A zoning permit was issued in February 2025 and later amended in May 2025 to revise the roof deck setback and pilot house location.
Subscribe to YIMBY’s daily e-mail
![]()
Follow YIMBYgram for real-time photo updates
Like YIMBY on Facebook
Follow YIMBY’s Twitter for the latest in YIMBYnews






Sixteen bedrooms for $190,000 on an 18 foot wide property is impressive indeed.
Wonderful location in proximity to the Market-Frankford Line is highly desirable.
This location is ripe for development.
What about parking?