Permits have been issued for the construction of a three-story single-family rowhouse with a roof deck at 2405 East Dauphin Street in Fishtown, North Philadelphia. Architectural design is led by David P. McArthur Architects, with A&V Construction, LLC as the contractor. The building will span 2,351 square feet and will include a basement.
Construction costs are listed at $200,000. This figure includes $169,000 for general construction, $16,000 for plumbing, $7,000 for mechanical, and $8,000 for electrical work. The project owner is listed as Michael Hughes Real Estate.

2405 East Dauphin Site Plan via David P. McArthur Architects
The structure is classified as R-3 residential, Type V-B combustible unprotected construction. The parcel spans 825 square feet and lies within an RSA-5 zoning district. The building footprint will measure 618 square feet, covering 75 percent of the lot.

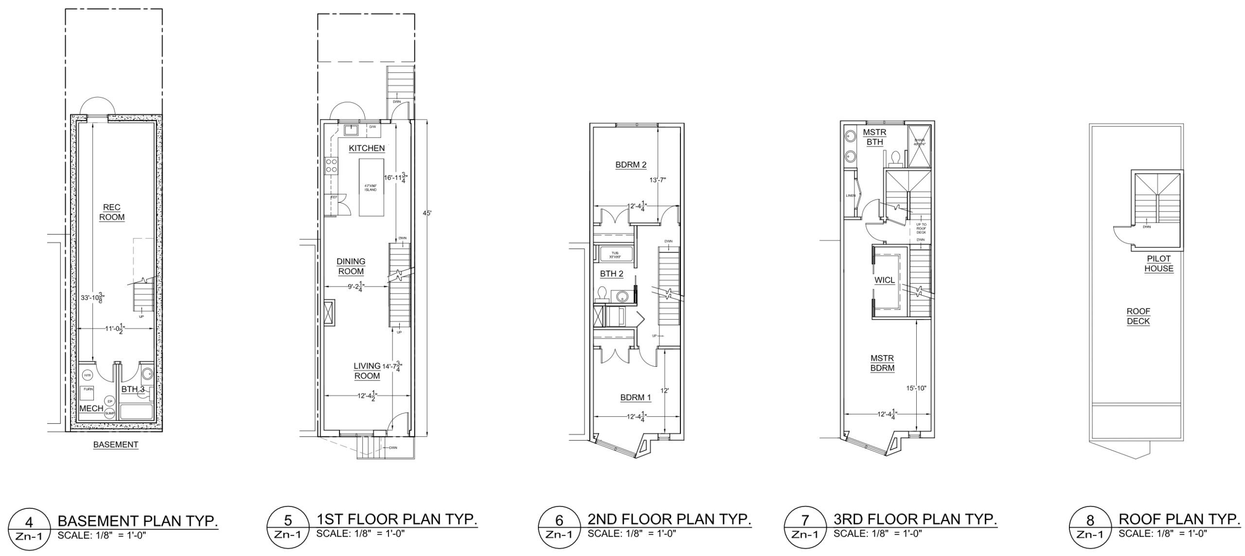
2405 East Dauphin Street Plans via David P. McArthur Architects
A rear yard depth of 9 feet complies with the zoning requirement. The proposed height of 34 feet 6 inches plus a 9-foot pilot house falls under the 38-foot maximum. Interior layouts include a recreation room in the basement, living/dining/kitchen on the first floor, bedrooms and bathrooms above, and a master suite on the third floor. A 412-square-foot roof deck will be accessible via a pilot house set back from the street. The exterior will combine brick at the base with fiber cement siding above, along with bay projections and double-hung windows.

2405 East Dauphin Rear Elevation via David P. McArthur Architects
The property sits near East Dauphin Street, between Cedar Street and Memphis Street, in Fishtown. The surrounding block features two- and three-story rowhouses, with the new project set to fill a long-vacant lot.
Subscribe to YIMBY’s daily e-mail
![]()
Follow YIMBYgram for real-time photo updates
Like YIMBY on Facebook
Follow YIMBY’s Twitter for the latest in YIMBYnews






Although this post describes 2405 E. Dauphin St., Google Maps shows this parcel under construction in March 2023. The new permit likely refers to 2405’s twin at 2407 E. Dauphin.