A two-story single-family residence is planned at 370 East Eleanor Street in North Philadelphia, according to newly issued construction permits. The project, which will replace an existing building, consists of an attached structure with a basement, and will span a total of 1,770 square feet. The development is designed by MC Architectural and will be built by A&V Construction LLC.
Permits list a total construction cost of $104,000, including $58,000 for general construction, $16,000 for electrical work, $12,000 for mechanical work, $8,000 for plumbing work, and $10,000 for excavation.

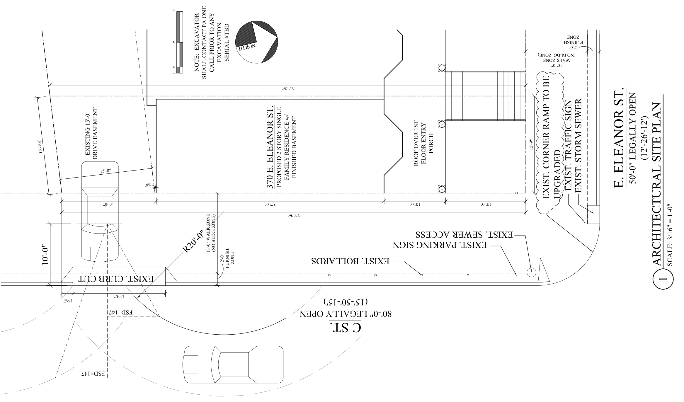
370 East Eleanor Street Plan via MC Architectural
The new building will span 583 square feet in the basement, 583 square feet on the first floor, and 604 square feet on the second floor. The structure’s zoning is classified as R-3 Residential, matching its single-family use. Elevation drawings show an attached two-story home with a traditional façade facing Eleanor Street. The front elevation features a brick exterior with a covered porch and paired front windows at the first floor, topped by a projecting bay window at the second floor. At the rear, the elevation includes vertically stacked windows and a rear entry door opening toward the interior of the block, while the side elevation illustrates the attached condition on one side and the relationship to the adjacent drive easement on the other.

370 East Eleanor Street Side Elevation via MC Architectural
Zoning documents confirm that the property is located in an RSA-5 district. The lot measures 1,201 square feet with an unchanged width of 15 feet, 9 inches. The proposal includes an occupied area of 61.6 percent and a front yard setback of 13 feet, consistent with zoning requirements. The rear yard spans 2.5 feet, and both side yards measure zero feet, which is permitted for attached dwellings. The proposed building height of 27 feet, 8 inches falls well below the district maximum of 38 feet.

370 East Eleanor Street Rear Elevation via MC Architectural
The redevelopment of 370 East Eleanor Street will add new housing to a residential corridor where many similar rowhouses and two-story homes line the block. With approvals in place and plans finalized, construction is positioned to move forward as part of the continuing reinvestment in the surrounding neighborhood.
Subscribe to YIMBY’s daily e-mail
![]()
Follow YIMBYgram for real-time photo updates
Like YIMBY on Facebook
Follow YIMBY’s Twitter for the latest in YIMBYnews






This new home is wonderfully contextual, replete with matching height, footprint, front porch and columns, roof line, second story bay window, cornice, brick facade, and front yard. The large front, side, and back windows will provide plentiful natural light.
Although there was an opportunity to install a back garage along the drive aisle, the developer chose living space over auto storage.
$59 per square foot construction cost seems incredibly low but if true, this will be an affordable home.
The town should not let a home built without a garage
Why not?