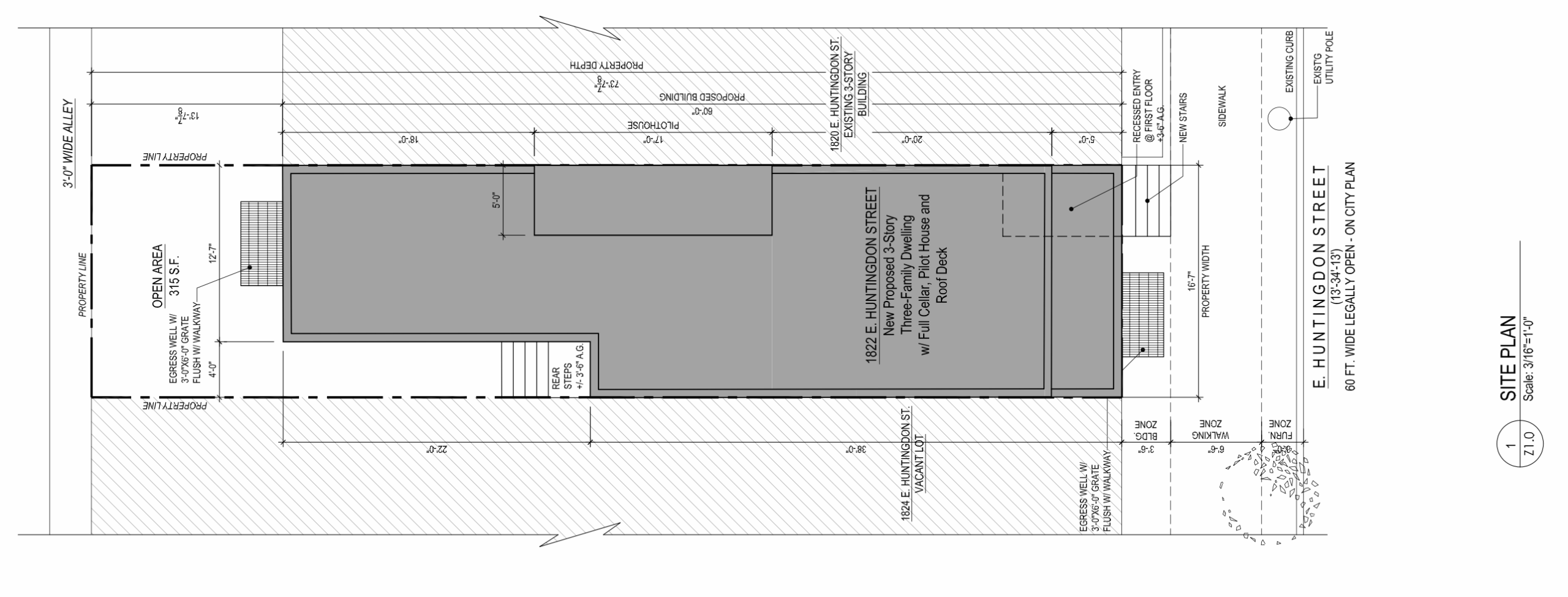
Permits have been issued for the construction of a three-story, three-unit residential development at 1822 East Huntingdon Street in East Kensington. Designed by 24/Seven Design Group the new building will span 3,628 square feet and will feature a cellar, roof deck, and a roof deck access structure. City Life Construction LLC is the project contractor.
Permits list a total construction cost of $500,000, which includes $470,000 for general construction and $30,000 for excavation. Kensington Joint Action C.is listed as the owner.

1822 East Huntingdon Street Plan via 24/Seven Design Group
The attached structure will be constructed under the R-2 occupancy classification and will be fully sprinklered under NFPA 13R standards. A section drawing within the zoning permit shows floor-to-floor heights of ten feet at the first, second, and third floors, with a roof elevation at 33 feet 6 inches, complying with the RM-1 district limit of 38 feet. A pilot house will rise an additional three feet above the parapet.
The front elevation will face toward East Huntingdon Street. A recessed entry is planned at the sidewalk, with stairs leading to the first floor. The rear of the property faces north toward a three-foot alley, where the plans show an open rear yard of approximately 316 square feet, including an egress well and rear steps placed one-and-a-half feet above grade.
The lot measures 1,221 square feet, with an existing width of 16-and-a-half feet that remains unchanged. The proposed occupied area measures 907 square feet, or 74.3 percent of the whole site, consistent with RM-1 maximum coverage. The rear yard depth is listed as 13 feet 7 inches, exceeding the nine-foot minimum required. Side yards remain at zero feet, which is permitted for an attached structure.
Overall, the new development at 1822 East Huntingdon Street will be a positive addition to a steadily growing section of East Kensington as it will contribute new residential stock to the neighborhood.
Subscribe to YIMBY’s daily e-mail
![]()
Follow YIMBYgram for real-time photo updates
Like YIMBY on Facebook
Follow YIMBY’s Twitter for the latest in YIMBYnews






“Side yards remain at zero feet, which is permitted for an attached structure.” Not only permitted but required. Otherwise it would not be an attached structure.