A three-story single-family residence is planned at 2613 North 12th Street in North Philadelphia. Permits describe the development as an attached structure with a raised cellar, roof deck, and roof deck access structure. The project is designed by KCA Design Associates and Elegance Group LLC as contractor.
The total construction cost is reported at $233,000, with allocations of $150,000 for general construction, $30,000 for excavation, $25,000 for plumbing work, $15,500 for electrical work, and $12,500 for mechanical work.

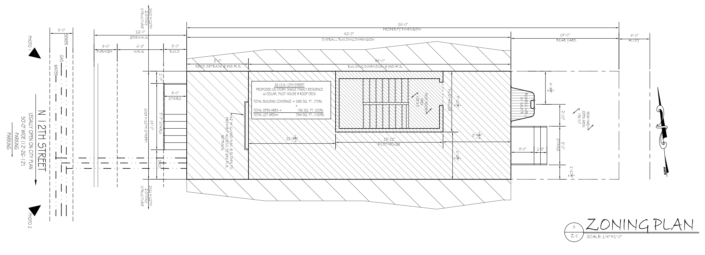
2613 North 12th Street Plan via KCA Design Associates
Building permits list 2,240 square feet of new construction, including 588 square feet each in the cellar, ground, and second floors, and 476 square feet on the third floor, classified under R-3 Residential for one or two dwellings. The structure will be of Type V-B combustible construction.
Zoning drawings show a narrow rowhouse-style building with a brick-clad front exterior with a high stoop with an entry door set to one side. Full-height window groupings align vertically through the first and second floors, giving the facade a tall, contemporary appearance. At the roof, a rectangular pilot house sits toward the front of the building and provides access to a roof deck. The rear elevation will be clad in horizontal siding, with paired windows at the upper floors, a door and steps leading to the yard, and a basement egress window at grade.
The site is zoned RM-1 and measures 14 feet in width and 56 feet in depth, for a total lot area of 784 square feet. Zoning sheets indicate that the proposed building will cover 588 square feet of the lot, or 75 percent, with 196 square feet, or 25 percent, reserved as open area at the rear. The rear yard setback is listed at 14 feet, exceeding the nine-foot minimum or 10 percent depth requirement. The building height is noted at approximately 34 feet, within the district maximum of 38 feet.
By converting a vacant gap in an existing row of attached houses into a new single-family residence, the project will add fresh housing stock to the neighborhood.
Subscribe to YIMBY’s daily e-mail
![]()
Follow YIMBYgram for real-time photo updates
Like YIMBY on Facebook
Follow YIMBY’s Twitter for the latest in YIMBYnews






“The structure will be of Type V-B combustible construction.”
From UpCodes:
Type I (Non-Combustible Fire-Resistive Construction) – Examples include concrete columns, beams and floors; this type of construction has high assembly fire resistivity.
Type II (Non-combustible) – Examples included steel columns, beams and deck/floors.
Type III (“Hybrid” Non-Combustible / Combustible) – Examples include concrete tilt-up construction with wood glulam (subdiaphragm) roof.
Type IV (“Heavy Timber”) – Examples include 6×10 wood beams / 8×8 wood columns / cross-laminated timbers.
Type V (Wood Frame Construction) – Examples include wood or metal stud construction; this type of construction has low assembly fire resistivity.
Type V-B combustible construction is the least restrictive type, characterized by unprotected wood framing and a lack of required fire-resistance ratings for structural elements like walls, floors, and roofs. It is common for single-family homes and small garages, is budget-friendly, but comes with limitations due to its low fire resistance and may require larger setbacks from other properties to protect them from potential fires.
Type V-B:
+ Unprotected framing: Unlike Type V-A, which requires a 1-hour fire-resistance rating, Type V-B (unprotected) does not require fire-rated assemblies.
+ Combustible materials: Buildings are primarily constructed with combustible materials, typically wood.
+ No fire-resistance rating: Major structural elements, including the primary frame, bearing walls, non-bearing walls, and floor and roof construction, have no required fire-resistance rating.
+ Common examples: Single-family homes and garages are the most common examples of this construction type.
+ Budget-friendly: This construction type is often the most budget-friendly option.