Permits have been issued for a new multi-family development planned at 950 Marlborough Street in Fishtown. Project proposal calls for a five-story residential building with a partial cellar that will contain 26 dwelling units and interior parking. The project team consists of Gnome Architects as the designer, Hybar Construction LLC is the contractor, and 1212 North Delaware Avenue QOZ LLC is the owner.
The total construction cost is listed at $3.64 million.

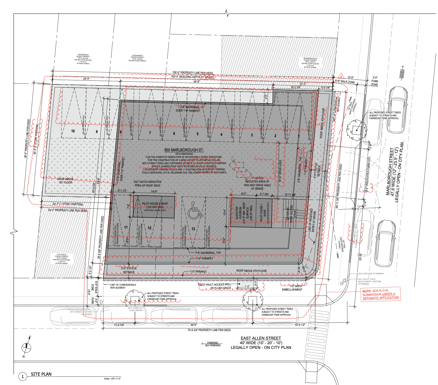
950 Marlborough Street Plan via Gnome Architects LLC
According to the scope of work, the project includes the complete demolition of the existing one-story structure and the construction of a new five-story building with a shared roof deck and two roof access bulkheads. Permit materials state that the project uses a horizontal separation at the first floor, with the cellar and first level classified as one building section and the residential floors above classified as another.
The development will provide 13 interior parking spaces, including two accessory spaces for residents and 11 non-accessory spaces that continue to serve 1212 North Delaware Avenue. Fourteen Class 1A bicycle parking spaces are also included.

950 Marlborough Street Section via Gnome Architects LLC
Zoning records note that the parcel measures 6,089 square feet. The approved plans allow full lot coverage at the ground level with no required yards, resulting in 100 percent occupied area. The building height reaches 52-and-a-half feet to the main roof, with pilot houses and an elevator extending above that level, as specified on the zoning sheets.

950 Marlborough Street Facade via gnomearch (Instagram)
Site plan shows a rectilinear building footprint built out to the property lines along Marlborough Street and East Allen Street. The first floor contains the parking area and building entry, while the residential levels begin above the separation line at the second story. Floor plates step back at the fifth level, where the approved plans show a shared residential roof deck. Two pilot houses are positioned near the edges of the roof, and an exterior stair provides an additional access point. Zoning Section illustrates the partial cellar below the full footprint and a flat main roof capped with parapets.
The site is located near the Delaware River and Penn Treaty Park.
Subscribe to YIMBY’s daily e-mail
![]()
Follow YIMBYgram for real-time photo updates
Like YIMBY on Facebook
Follow YIMBY’s Twitter for the latest in YIMBYnews






LOVE IT!
Gotta love those curves. Gnome Architects strikes again!
I like it. I’m always drawn to a curved brick corner.
How come we suffer with crowding and sky high prices that people that nave lived here all their lives would never be able to afford?new York has priced out so the people coming here to live enough is enough
Philadelphia has 40,000 (often trash strewn, weed covered) vacant lots and a half million fewer people than in 1950. The city has infrastructure for 2.1 million people that is serving only 1.6 million.
Housing costs are elevated for many reasons, including the high cost of materiel and labor. Equally, if not more important, is the shortage of housing. When demand exceeds supply, prices rise. Supply is often constrained by restrictive zoning and neighborhood opposition to density.
Mayor Cherelle Parker’s plan to build or remediate 30,000 housing units is a big step in the right direction. An often underappreciated fact is that all new housing puts downward pressure on costs, even expensive housing, by better balancing supply and demand.
Everyone talks about green spaces but keeps on building to prevent it
This project replaces a stucco-clad, one story parking garage with three curb cuts and metal grated opaque windows, no landscaping and no street trees. There’s no greenery at all. The current building serves to house the internal combustion engine, nothing more. In many ways, it detracts from the neighborhood.
The new apartment house has street trees and landscaping, and most importantly, serves people, not vehicles. All but two of the parking spots are required parking for a different development catty-corner. In many ways, this project adds to the neighborhood.
I design & build myself, I’ve done a lot work in Philly in the 90’s, nyc & CT the last 2+ decades, and these simple, yet surprisingly nice looking, buildings definitely get the 👍, the thumbs up from me👍