A new residential development is planned at 5728 Thomas Avenue in Kingsessing, Southwest Philadelphia. The proposal calls for a four-story semi-detached building with six dwelling units on a long-vacant parcel. The project team includes the 24/Seven Design Group as the designer, Golfand Developers LLC as the owner, and Ken Group LLC as the contractor.
The total construction cost is listed at $550,000, which includes $50,000 allocated for excavation work.

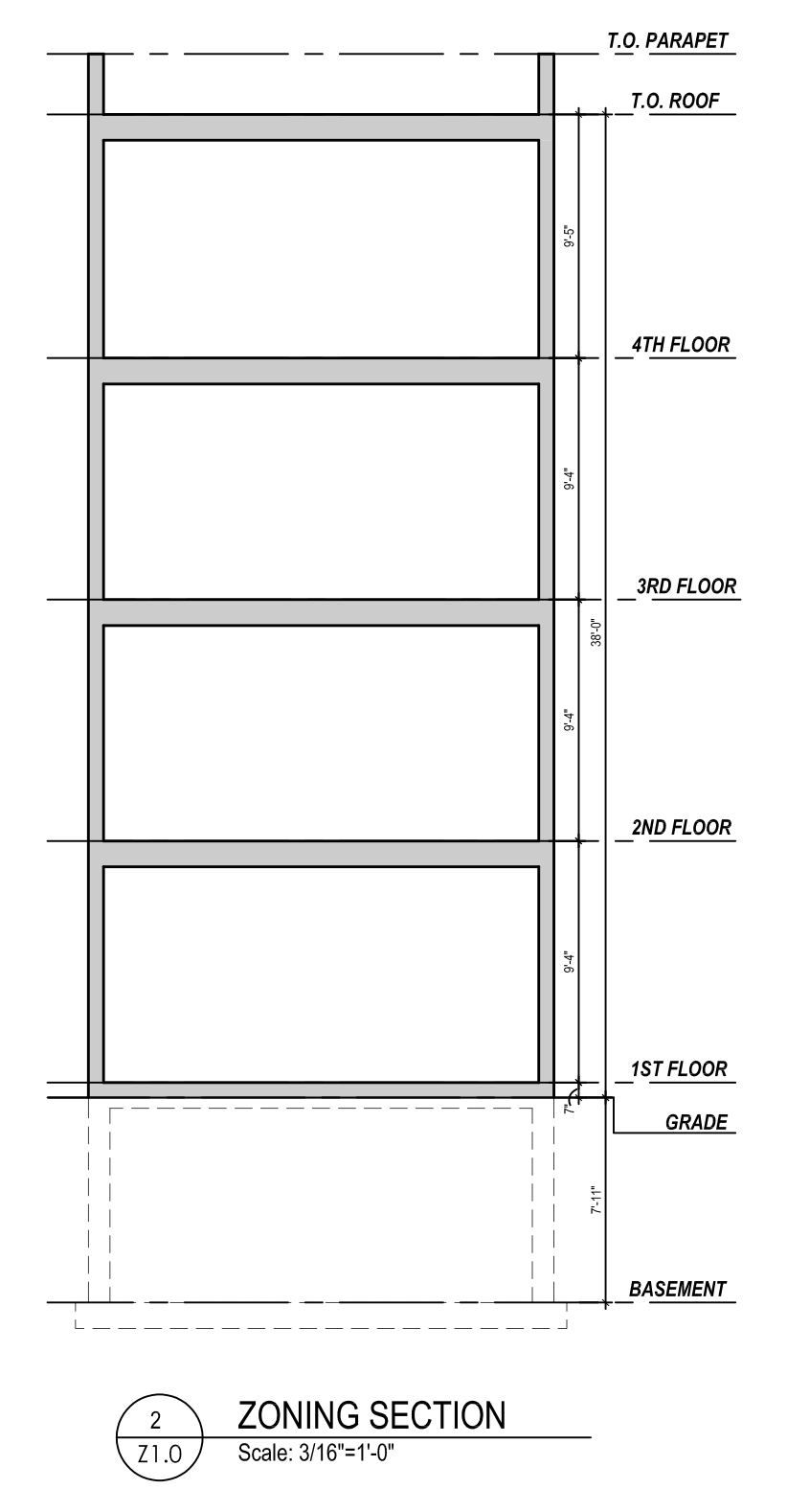
5728 Thomas Avenue Section via 24 Seven Design Group
Recent permits describe a four-story structure with a basement, approved under Type V-A construction standards. The building will contain six residential units and three rear parking spaces, including one van-accessible space. The structure will be fully sprinklered per NFPA 13, with standpipes provided per NFPA 14.
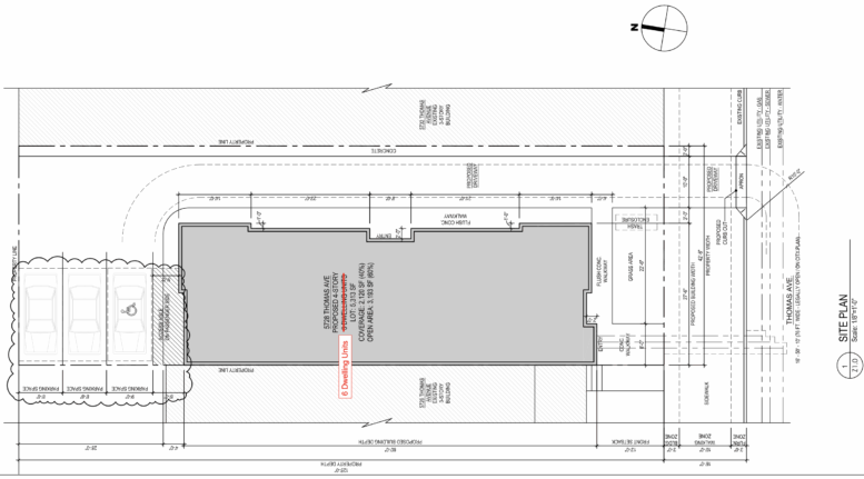
Site drawings depict a rectangular building footprint set behind a landscaped front yard and walkway along Thomas Avenue. Floor plates measure approximately 2,120 square feet on each level, stacked above a full basement. A driveway along the side of the structure leads to a paved rear parking area arranged for three vehicles. The zoning section shows a flat roof with a low parapet and uniform floor-to-floor heights carried across all four stories.
Zoning materials identify the property within an RSA-3 district with an approximate lot size of 5,313 square feet. The proposed footprint of around 2,120 square feet results in 60 percent open area, while required yard dimensions are met with a 13-foot front setback, 15-foot side yard, and 28-foot rear yard. The building height fits within the district’s 38-foot limit, and a prior refusal for a higher unit count was resolved through the Zoning Board of Adjustment, affirming a six-unit configuration.
No estimated construction timeline has been revealed yet.
Subscribe to YIMBY’s daily e-mail
![]()
Follow YIMBYgram for real-time photo updates
Like YIMBY on Facebook
Follow YIMBY’s Twitter for the latest in YIMBYnews






5728 Thomas Ave. was half of a twin with 5730 Thomas until it was demolished sometime between June 2015 and November 2017. The pair was gorgeous — columned front porches, arched windows, gabled roofs, tripartite bay windows, prominent cornices, all brick facades, not a flat roof in sight.
The new proposal is especially hideous compared to the prior home. Most of the site not occupied by the structure itself is impervious, concrete front and side walkways and asphalt driveway and parking area, leading to significant water runoff. As it flows along the street to sewer, the water becomes polluted by all sorts of vehicle toxins. When a large rainfall causes sewer overflow, that water is dumped directly into local streams and rivers.
There is a small front yard “grass area” but even that is partially occupied by a “trash enclosure”. The trash cans should be located in back or side so they do not eliminate curb appeal. There is no landscaping and no street tree. The curb cut impairs the pedestrian experience.
Just awful.
“The structure will be fully sprinklered per NFPA 13, with standpipes provided per NFPA 14.”
NFPA is the National Fire Protection Association. NFPA 13 outlines the “Standard for the Installation of Sprinkler Systems”. It’s a 595 page document. NFPA 14 documents the “Standard for the Installation of Standpipe and Hose Systems”. It’s only 111 pages.
I think a lot of the writing here is AI now, hence “YIMBY Team”