Permits have been issued outlining plans for new residential construction at 4925 Wakefield Street in the Wister section of Northwest Philadelphia. The project proposes a two-story attached structure on a vacant parcel fronting Wakefield Street. Permit records identify Spruce Builders LLC as the contractor. Moto Designshop Inc is responsible for the designs.
Zoning and permit records list total construction costs at approximately $125,300, including general construction, plumbing, mechanical, electrical, and related work.

4925 Wakefield Street Existing Plan via Moto Designshop Inc
The scope of work calls for new construction for use as single-family household living, with the building classified as R-3 residential occupancy. Approved documentation shows approximately 650 square feet of residential area per floor, resulting in a total of 1,300 square feet across two stories.
Zoning plans indicate the development will rise two stories above grade with no parking provided. The project is located within the RSA-5 residential zoning district and is configured as an attached structure along the street frontage. Streets Department review has been completed and issued, reflecting work within the public right-of-way associated with proposed entry steps and required sidewalk protections.

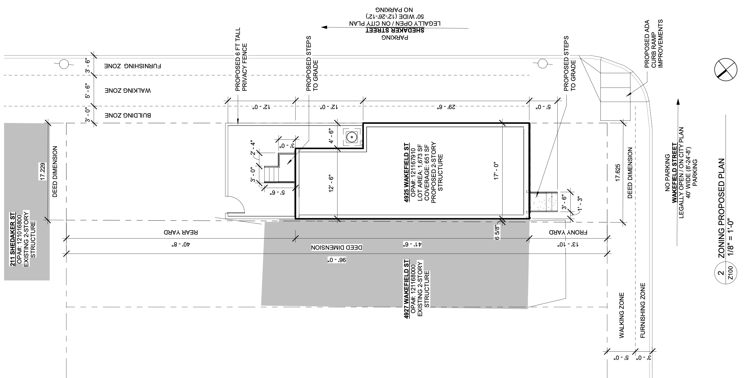
4925 Wakefield Street Proposed Plan via Moto Designshop Inc
Architectural drawings depict a brick-clad front facade set directly at the property line, consistent with rowhouse forms. The elevation shows vertically aligned window openings across both floors, with paired windows on the main wall plane. A recessed ground-floor entry is positioned along one side of the facade and is accessed by exterior steps and railings from the sidewalk. Subtle architectural detailing is introduced through shallow pilaster-style embellishments with minimal projection, while a modest parapet caps the facade and screens the roofline behind it.
A construction timeline has not yet been announced.
Subscribe to YIMBY’s daily e-mail
Follow YIMBYgram for real-time photo updates
Like YIMBY on Facebook
Follow YIMBY’s Twitter for the latest in YIMBYnews


Although the house is small at 1,300 square feet, large windows on the Shedaker St. side would make the home feel larger than it is.