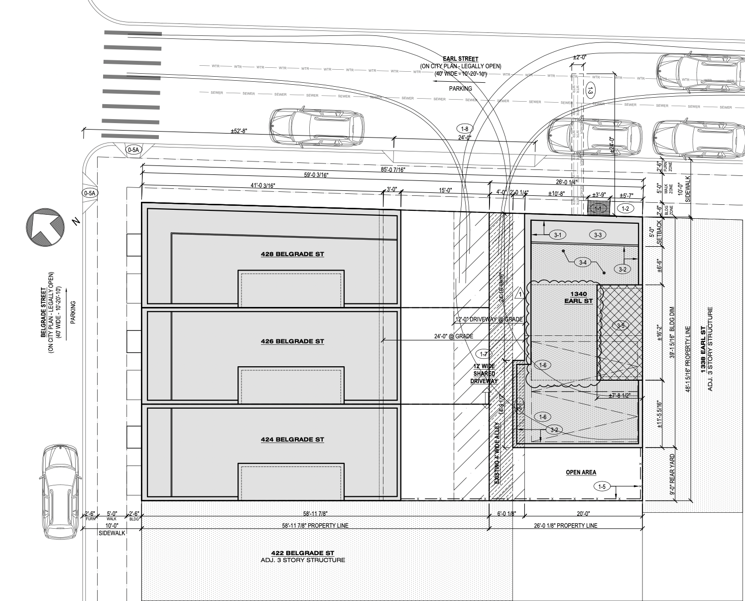
Permits have been issued for the construction of a four-story single-family residence at 1340 Earl Street in Fishtown. The semi-detached structure will include a roof deck accessible via a pilot house, along with two off-street accessory parking spaces accessed from a shared driveway, according to zoning and building permit records. The total floor area is listed at 3,636 square feet. The property owner is identified as Fishtown Realty LLC, with Harman Deutsch Ohler Architecture listed as the architect and 6 Star Construction Inc. as the contractor.
Construction costs are specified at $190,000, according to the residential building permit. The cost breakdown comprises $132,000 for general construction, $20,000 for plumbing work, $15,000 for mechanical work, $13,000 for electrical work, and $10,000 for excavation.

1340 Earl Street Plan via Harman Deutsch Ohler Architecture
Zoning documents place the property, which measures approximately 1,261 square feet, within an RSA-5 zoning district. The proposed building footprint totals 818 square feet, equating to 64.8 percent lot coverage, which remains within district limits. The proposed open area is listed at 443.5 square feet, or 35.2 percent of the lot, exceeding the minimum requirement. The project will provides a rear yard measuring nine feet in depth, along with a side yard measuring approximately six feet.
Architectural drawings depict rectilinear four-story massing, with the roof deck set back from the street. The zoning permit reflects an amendment removing a previously proposed pergola structure from the roof deck. The overall building height is shown at approximately 38 feet, consistent with the maximum height permitted in the zoning district.
Subscribe to YIMBY’s daily e-mail
![]()
Follow YIMBYgram for real-time photo updates
Like YIMBY on Facebook
Follow YIMBY’s Twitter for the latest in YIMBYnews






Hope this project is as funky as 439 Belgrade St. up the block, with its fish theme — wall and stainless steel stair carvings and wall sculpture — along with unusual brick and stone work, multicolor paneling, and offset bays.