Permits have been issued for the construction of a new multi-family residential building at 1808-12 Wylie Street in the Francisville section of North Philadelphia. The project calls for the erection of an attached four-story structure with a cellar and multiple private roof decks. The project is designed by Common Practice Design Studio, with civil engineering by Ambric Technologies. The owner is listed as 1808 Wylie LLC, and Waybar Construction LLC is identified as the contractor of record.
The general construction costs are listed at $2,050,000.

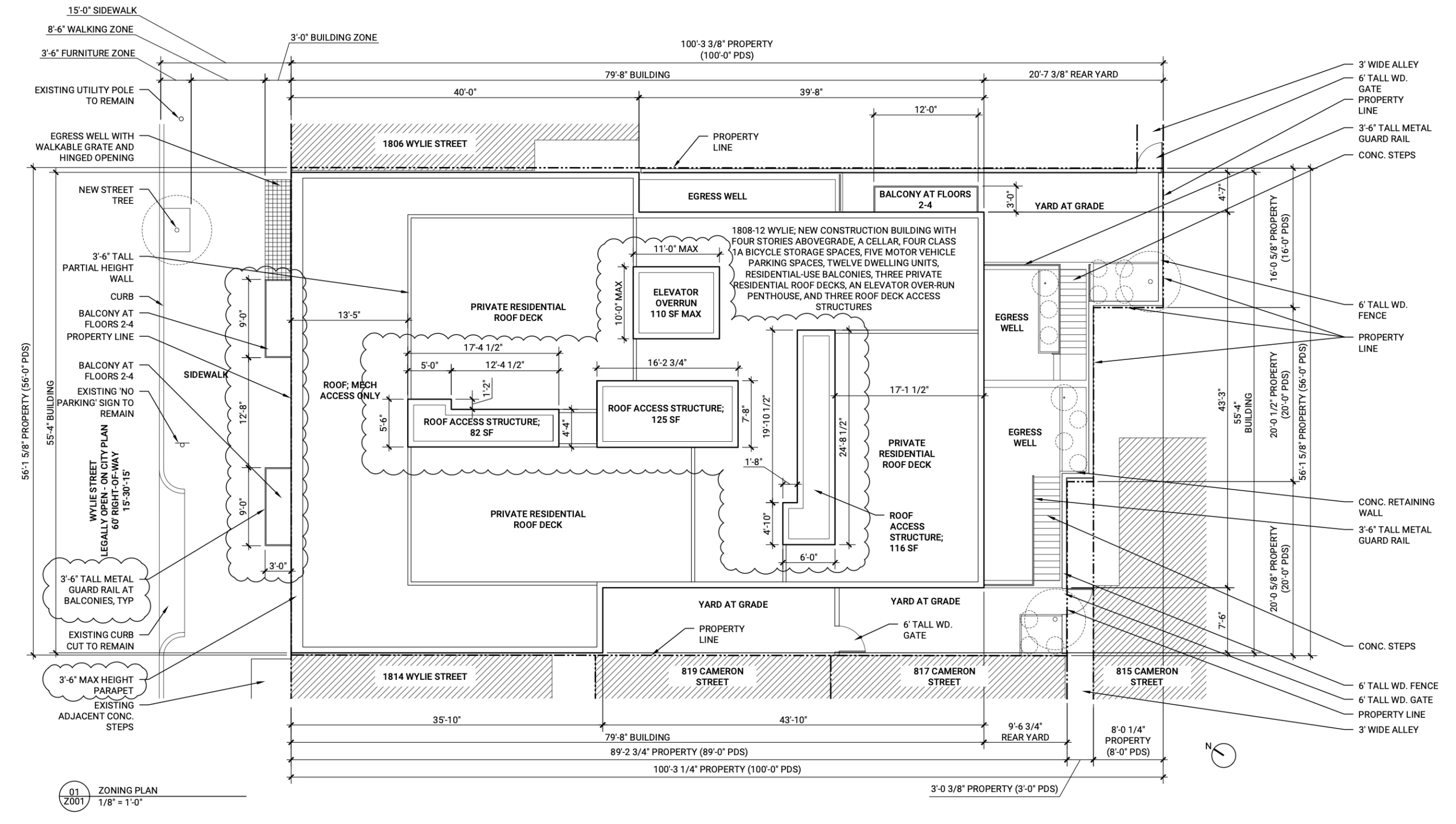
1808 Wylie Street Plan via Common Practice Design Studio
Zoning approval authorizes the project to be used as Multi-Family Household Living within an RM-1 zoning district. According to the approved scope of work, the development will contain twelve dwelling units and include five accessory garage parking spaces, one of which is designated as van-accessible. Four Class 1A bicycle parking spaces are also provided along an accessible route. Total construction area is listed at 18,450 square feet.
Zoning materials indicate the project consolidates three existing parcels into a single lot measuring approximately 5,247 square feet. The proposal exceeds the RM-1 base maximum of eleven dwelling units, introducing twelve units as a non-conforming condition. Height is also listed as non-conforming, with the building rising to 45 feet, above the district’s 38-foot maximum. Occupied area calculations show the project conforms to the 75 percent lot coverage.

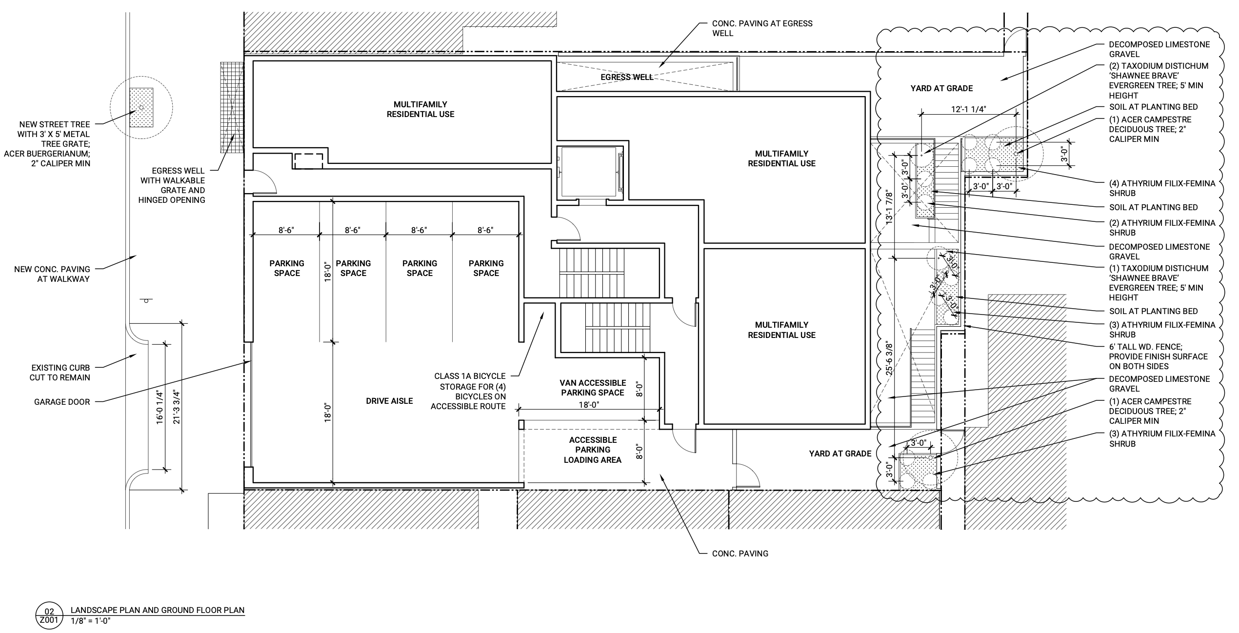
1808 Wylie Street Landscape Plan via Common Practice Design Studio
Plans show a ground-floor parking level accessed from Wylie Street, with residential units located above. The section drawings depict four stories above grade with a cellar below, balconies at Floors 2 through 4, and three private residential roof decks accessed via roof access structures. An elevator overrun penthouse is also indicated on the roof plan. Landscape plans show compliance with required street tree, buffer planting, and yard tree provisions, including one new street tree along Wylie Street.
A construction start date has not yet been announced.
Subscribe to YIMBY’s daily e-mail
![]()
Follow YIMBYgram for real-time photo updates
Like YIMBY on Facebook
Follow YIMBY’s Twitter for the latest in YIMBYnews






Great that the landscape designer displayed the location and species of each and every tree and shrub. There’s even a street tree — a trident maple, with its distinctive three lobed leaves and red/orange autumn color.