Permits Issued for Construction at 1808-12 Wylie Street in Francisville, North Philadelphia
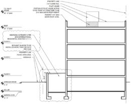
Permits have been issued for the construction of a new multi-family residential building at 1808-12 Wylie Street in the Francisville section of North Philadelphia. The project calls for the erection of an attached four-story structure with a cellar and multiple private roof decks. The project is designed by Common Practice Design Studio, with civil engineering by Ambric Technologies. The owner is listed as 1808 Wylie LLC, and Waybar Construction LLC is identified as the contractor of record.


