Permits have been issued for the construction of a four-story single-family residence at 159-63 Laurel Street in the Cohocksink neighborhood in Northern Liberties, North Philadelphia. The new structure will replace a paved surface lot situated at a wedge-shaped site at the junction of West Laurel Street and North Hancock Street. The development will span 3,008 square feet and will include a basement. The project team consists of Waybar Development as the owner (Martin Sizmur is also alternately listed as the owner in city records), Common Practice Design Studio as the architect, and Waybar Construction as the contractor.
Construction costs for the development, also known as 159 Laurel Street, are specified at $350,000, which equates to around $116 per proposed interior square foot. This total includes $290,000 reserved for general construction work, $10,000 for electrical work, $10,000 for mechanical work, $10,000 for plumbing work, and $30,000 for excavation work.

159-63 Laurel Street. Zoning table. Credit: Common Practice Design Studio via the City of Philadelphia

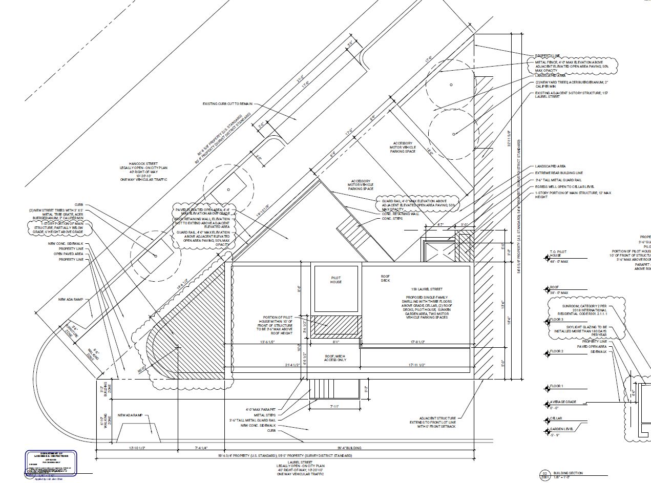
159-63 Laurel Street. Site plan. Credit: Common Practice Design Studio via the City of Philadelphia
The proposed building will be aligned with the Laurel Street portion of the lot and will measure 39 feet long and 18-and-a-half-feet wide. The main roof will rise 38 feet high, and the pilot house will bring the total structural height to a total of 48 feet. A single-story podium, enclosing a portion of the basement level and rising six feet above the sidewalk level, will span the site corner; a sunroof will cover the space. The northern portion of the site will accommodate a landscaped area, two new Acer buergerianum trees (also known as trident maple), and two surface parking spaces.

The Cohocksink neighborhood, coterminous with the northeast quadrant of Northern Liberties, derives its name from Cohocksink Creek, named by its indigenous Lenni Lenape Native American residents and translating as “pine lands.” The creek was placed into an underground culvert in the 1850s, where it continues to run in a meandering pattern beneath Bodine, Laurel, Hancock, Allen, and Canal streets, beyond which it joins the Delaware River just to the south of Waterfront Square. We hope to one day see the stream daylighted (aka re-exposed to the elements), where it would become a scenic natural centerpiece both for Cohocksink and the greater Northern Liberties neighborhood.
The new building will rise next to the neighborhood’s bustling commercial center, where numerous retail and entertainment establishments, clustered particularly around the Piazza mixed-use complex and the pedestrian promenade of Liberties Walk. Quieter forms of recreation may be found at Liberty Lands, a trapezoid-shaped public park situated two short blocks to the west of the proposed development, and along the Delaware River waterfront, a pedestrian promenade that runs along the river within a ten-minute walk to the southeast.
The project site sits approximately equidistant of the Spring Garden and the Front-Girard stations on the elevated Market-Frankford subway line, each sited within an approximately ten-minute walk to the south and to the north, respectively. The latter also sits adjacent to the G1 trolley, which runs east-west along Girard Avenue.
Subscribe to YIMBY’s daily e-mail
![]()
Follow YIMBYgram for real-time photo updates
Like YIMBY on Facebook
Follow YIMBY’s Twitter for the latest in YIMBYnews






Common Practice Design Studio has squandered the opportunity to create an architecturally unorthodox triangular home by the inclusion of two accessory surface parking spots.
I don’t know where one might “daylight” the stream…