Construction permits have been issued for a three-story, three-unit residential development at 2216 North Franklin Street in Hartranft, North Philadelphia, near Temple University. The proposed project will replace a vacant lot with an attached 2,294-square-feet building that will feature a basement and a roof deck. The project team consists of the Barrys Construction Group as the owner, Pomegranate LLC as the designer, and the SZM Group as the contractor.
Construction costs for the development are listed at $490,000, which includes $450,000 allocated to general construction and $40,000 for excavation work.

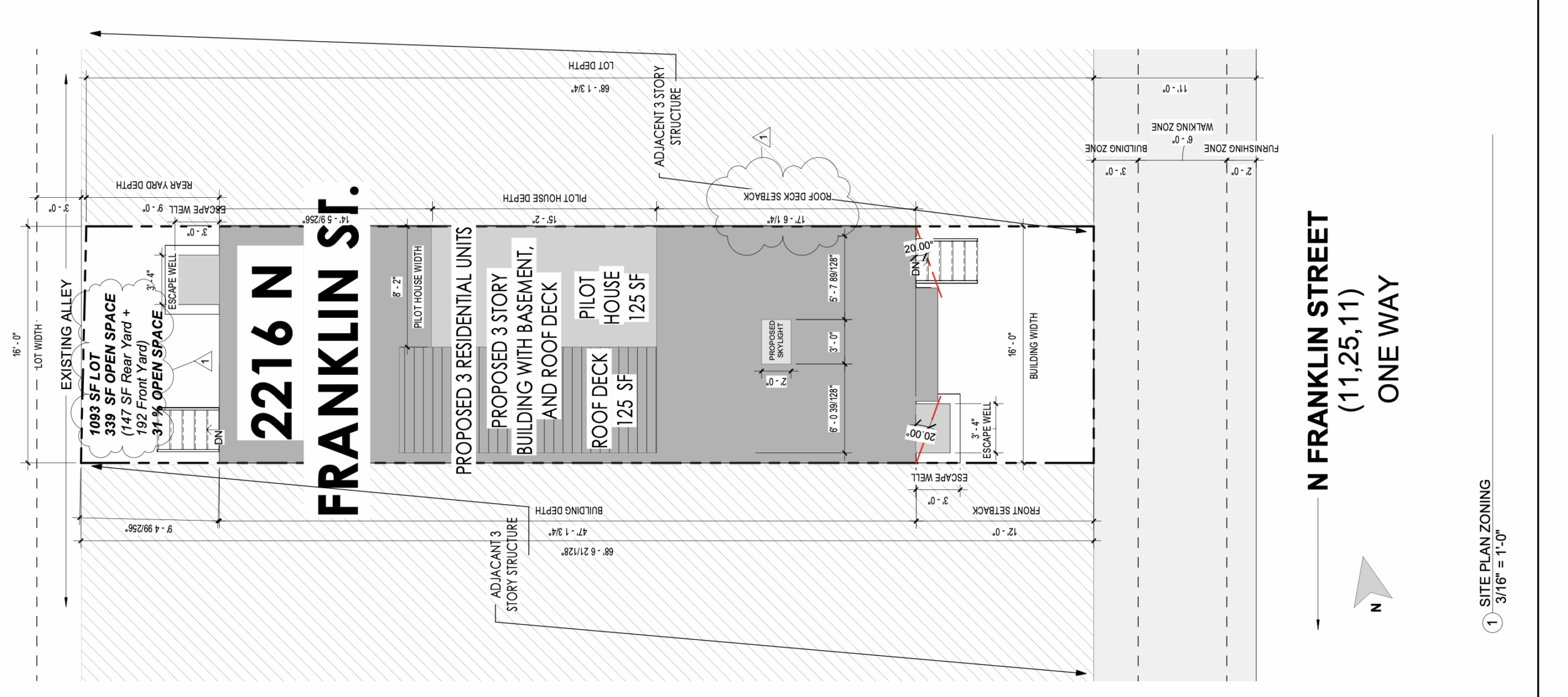
2216 North Franklin Street Plan via Pomegranate LLC
According to permit records, the development will be classified under Group R-2 residential occupancy. The project is being built as Type V-B construction. The total earth disturbance will account for 754 square feet. The project will rise to a height of around 37 feet, remaining below the 38-foot maximum permitted in the RM-1 zoning district. Plans show a lot width of 16 feet and a total lot area of 1,093 square feet, of which approximately 31 percent of the site will be reserved as open space. A rear yard roughly nine feet deep will be provided. The roof deck will be set back byy over 17 feet from the street line, exceeding minimum zoning requirements.

2216 North Franklin Street Rear Elevation via Pomegranate LLC
Architectural drawings depict a narrow rowhouse contextual with the nearby residential buildings context along North Franklin Street. The front elevation will feature a masonry-clad base with vertically stacked window openings above, with the upper levels articulated with plainer façade treatments. The roof deck will be accessed by a compact pilot house, which will be minimized in its visual impact from the public right-of-way.
With both zoning and construction approvals now in place, the development at 2216 North Franklin Street will make for a welcome transformation of a long-vacant parcel into residential use, adding modest density to the neighborhood.
Subscribe to YIMBY’s daily e-mail
Follow YIMBYgram for real-time photo updates
Like YIMBY on Facebook
Follow YIMBY’s Twitter for the latest in YIMBYnews






Be the first to comment on "Three-Unit Residential Building Planned at 2216 North Franklin Street in Hartranft, North Philadelphia"