Construction permits have been issued for a three-story single-family townhouse at 3043 Martha Street in Port Richmond. The building will replace a section of an existing parking lot sited on the southeast side of the block between Ann Street and East Clearfield Street. The structure will offer 1,421 square feet of interior space and will include a basement. The project team consists of BMK Properties as the owner, Marshall Sabatini Architecture as the designer, and Urban Renewal Builders as the contractor.
Permits list total construction costs at $180,000, which translates to around $127 per planned interior square foot. The figure includes $148,000 for general construction work, $7,000 for electrical work, $8,000 for mechanical work, $9,000 for plumbing work, and $8,000 for excavation work.

3043 Martha Street. Front building elevation. Credit: Marshall Sabatini Architecture via the City of Philadelphia

3043 Martha Street. Rear building elevation. Credit: Marshall Sabatini Architecture via the City of Philadelphia

3043 Martha Street. Zoning table and site diagram. Credit: Marshall Sabatini Architecture via the City of Philadelphia

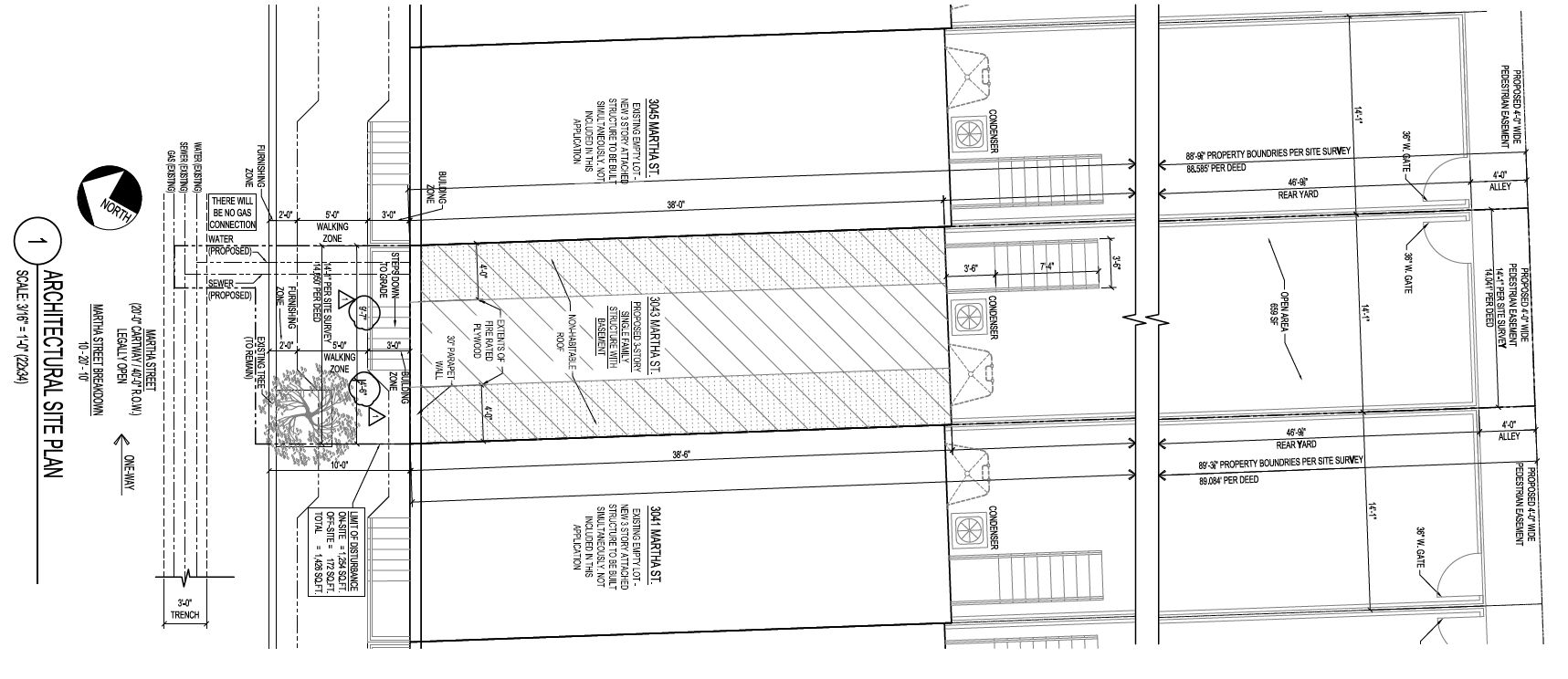
3043 Martha Street. Site plan. Credit: Marshall Sabatini Architecture via the City of Philadelphia

3043 Martha Street. Site conditions prior to redevelopment. Credit: Marshall Sabatini Architecture via the City of Philadelphia
The building’s plain brick exterior will be enhanced with classic touches such as a tall front stoop and brick ornament at the parapet, which will make for pleasant contextual nods to the neighborhood’s prevailing prewar rowhouse vernacular.
Route 5 and 54 buses run within the vicinity, with the former traversing Frankford Avenue, the neighborhood’s primary commercial thoroughfare, situated within a three-minute walk to the northwest.
An 11-nunite walk to the northwest will take future residents to Kensington Avenue, another major retail corridor, which runs adjacent to McPherson Square, a green space which holds the eponymous, Neoclassically-styled library. The avenue is serviced by the route 3 bus and the elevated Market-Frankford subway line (the Somerset station is situated within a 16-minute walk to the northwest of the planned development).
The Frances E. Willard Elementary School and Jules E. Mastbaum High School also sit within a short walk of the proposed building.

3043 Martha Street. Site conditions prior to redevelopment. Credit: Marshall Sabatini Architecture via the City of Philadelphia

3043 Martha Street. Site conditions prior to redevelopment. Credit: Marshall Sabatini Architecture via the City of Philadelphia
Subscribe to YIMBY’s daily e-mail
![]()
Follow YIMBYgram for real-time photo updates
Like YIMBY on Facebook
Follow YIMBY’s Twitter for the latest in YIMBYnews






Be the first to comment on "Permits Issued for Construction of Single-Family Rowhouse at 3043 Martha Street in Kensington"