Construction permits have been issued for a three-story single-family building proposed at 1018 West Arizona Street in Hartranft, North Philadelphia, just to the northeast of Temple University. The future rowhouse will rise from a presently vacant parcel sited on the south side of the block between North 10th and North 11th streets. The structure will span 2,352 square feet and will feature a basement and a roof deck. The development team consists of T&I Development as the owner, KCA Design Associates as the architect, and Elegance Group as the contractor.
Total construction costs are specified at $177,300, which works out to around $75 per interior square foot. The figure allocates $115,000 for general construction work, $6,800 for electrical work, $7,500 for mechanical work, $23,000 for plumbing work, and $25,000 for excavation work.

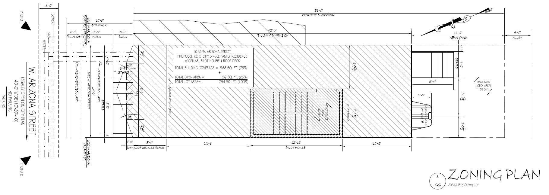
1018 West Arizona Street. Zoning map. Credit: KCA Design Associates via the City of Philadelphia

1018 West Arizona Street. Zoning table. Credit: KCA Design Associates via the City of Philadelphia
The proposed structure will measure 14 feet wide and 42 feet long, backed by a square-shaped, 14-foot-deep rear yard, resulting in a structural footprint spanning 75 percent of the property. The building will rise 36 feet to the main roof, 40 feet to the top of the parapet, and 46 feet to the top of the roof deck access bulkhead. The ground level will sit four feet above the sidewalk, and ceiling heights will measure ten feet at the first and third floors and, in a curious departure, just nine feet at the second story.
The primary facade will be wrought in traditional running course brick, with a band of soldier course brick demarcating the top of the base as a nuanced design accent; the brick exterior will make for a welcome contextual nod to the surrounding prewar rowhouse vernacular. An eight-and-a-half-foot-wide, one-foot-deep bay bump will cantilever above the stoop entry at the second and third floors. The rear elevation will be clad in horizontal siding.

1018 West Arizona Street. Site plan. Credit: KCA Design Associates via the City of Philadelphia
Although classified as an attached structure, as the building will extend to either of the side lot lines, the building will be freestanding at the moment of completion, as adjacent properties on either side currently sit vacant. The project will rise at the periphery of the whimsical compound of the Village of Arts and Humanities, as demarcated by undulating, folk art-influenced crenellated low fences and totem pole-styled decorations scattered throughout the surrounding properties. The Village is a notable local arts and community revitalization organization, notable for its distinctive exterior art style and cultural programs.
Route 23 and 39 buses run within the immediate vicinity. The Susquehanna-Dauphin station on the Broad Street subway line and the North Broad Street regional rail station may be accessed via a ten- to 12-minute walk to the southwest and to the northwest, respectively. The Temple University campus is situated within a ten-to 15-minute walk to the southwest.
Subscribe to YIMBY’s daily e-mail
![]()
Follow YIMBYgram for real-time photo updates
Like YIMBY on Facebook
Follow YIMBY’s Twitter for the latest in YIMBYnews






Thank you Vitali for mentioning The Village of Arts and Humanities. The Village was founded in 1986 by Lily Yeh, artist, Chinese immigrant, and tenured professor at the Pennsylvania Academy of Fine Arts. The organization has renovated dozens of urban lots and empty buildings with murals, mosaics, and gardens. Currently, it is an established community asset of 15 art parks and 13 program buildings that include media labs, dance and photography studios, a sound recording booth, and a quarter-acre urban farm.