Construction permits have been issued for a three-story, three-unit residential building at 1927 West Diamond Street in North Philadelphia West. The project, located on near West Diamond Street between North Uber and North 20th streets, will replace an empty parcel just steps from the West Diamond corridor. The new building will span a total of 2,967 square feet of new construction. The property is owned by Callahan Ward Temple VII LLC, with design led by Interface Studio Architects.
Permits list general construction costs as $550,000 and excavation costs at $50,000, bringing the total construction value to $600,000.

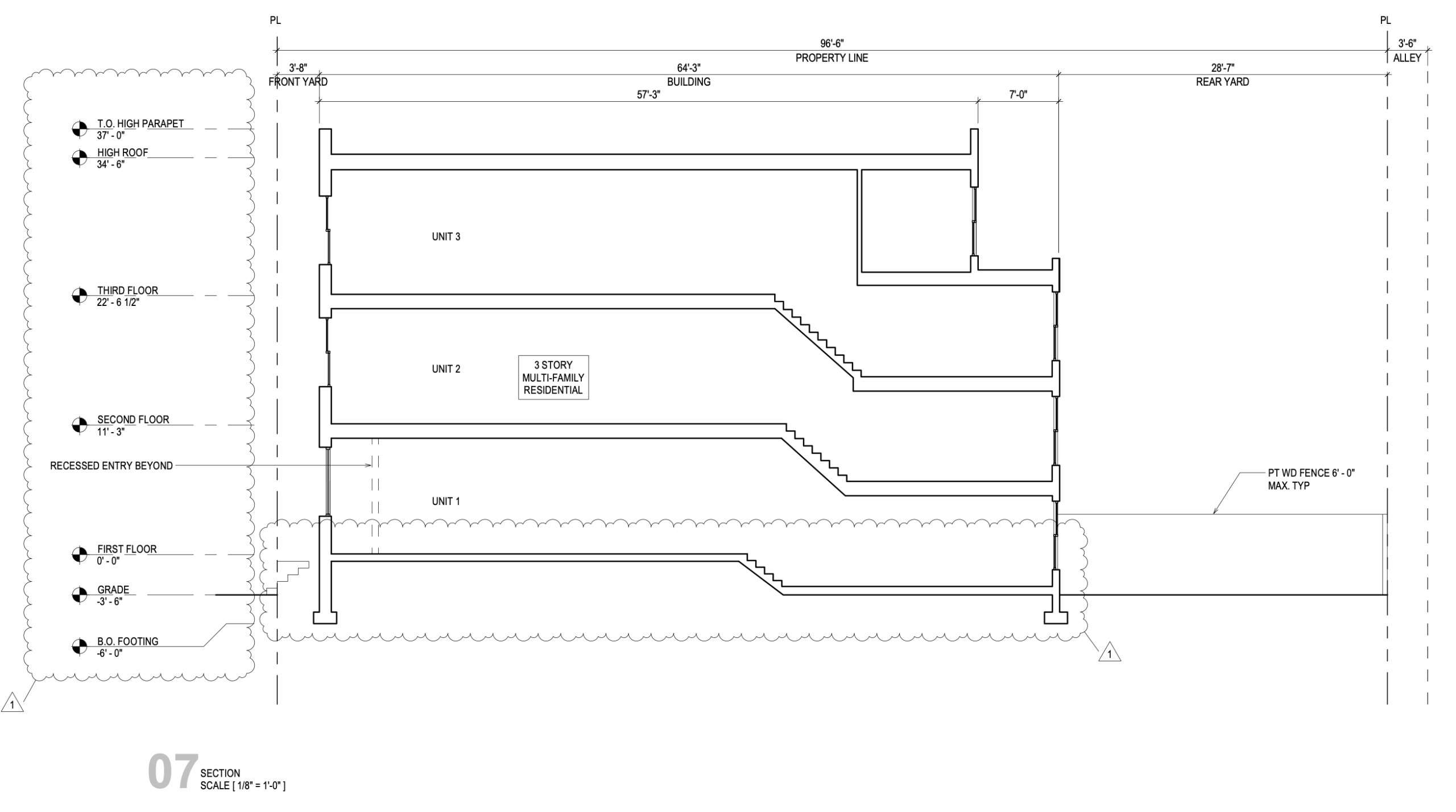
1927 Diamond Street Plan via Interface Studio Architects
The proposal calls for a three-story structure with an interior mezzanine, with one dwelling unit per floor. Zoning documents confirm the site lies within the RM-1 residential district. The 17-foot-wide lot spans 1,641 square feet, of which the structure will occupy 1,032 square feet (62.9%), well below the district’s 75 percent maximum. The building will rise 38 feet high. The development provides a three-foot-eight-inch front setback, a 29-foot-deep rear yard, and 548 square feet of rear yard open area, meeting and exceeding all open-space requirements.

1927 Diamond Street Section via Interface Studio Architects
Architectural drawings show a brick-clad façade with a recessed ground-floor entry accessed from the West Diamond Street sidewalk. The rear elevation incorporates stepped massing and a deep yard that opens to an alley at the back of the site.
The estimated construction timeline has not been revealed yet.
Subscribe to YIMBY’s daily e-mail
![]()
Follow YIMBYgram for real-time photo updates
Like YIMBY on Facebook
Follow YIMBY’s Twitter for the latest in YIMBYnews






The north side of the 1900 block of West Diamond St. must have been an architectural treasure. Check out Google Maps July 2017 to view five (of the original ten) then remaining, highly ornamented, splendiferous structures. Unfortunately two of the five have recently been demolished, leaving only three.
Craig: There are some older photos and maps online. The row, as built, was very symmetrical. The house on the west end of the block (at 1939 West Diamond) was more or less a mirror image of 1921 West Diamond. 1921 W Diamond had bay windows on its east elevation which projected over the sidewalk along Uber. Those bays have been removed, but otherwise 1921 W Diamond remains a fairly close match to the design of 1939 W Diamond, reversed.
1937 W Diamond mirrored 1923.
1935 mirrored 1925.
1933 mirrored 1927.
1931 and 1929 W Diamond were the center mirrored pair, and their façades were similar to the façades of 1939 and 1921, with bays projecting above the sidewalk along Diamond Street.
1937-35-33 and 1927-25-23 had recessed open front porches facing Diamond.
1939 and 1921 W Diamond had rectangular plans (with projecting bay windows). The intervening eight houses had L-shaped plans to allow for some side windows. All ten houses had bay windows facing their rear yards to the north. Of the eight houses with L-shaped plans, the oddball seems to have been 1925 W Diamond, with two east-facing bays in the narrow side yard.
The row appears on a map published in the late 1800s. All ten houses are shown on a fire insurance map published in 1918. Looking north, the original pattern of façades was something like this:
U A A A M M A A A U
And with entries indicated by quotation marks, something like this pattern:
U”A A”A M”M A”A A”U
By the 1990s, three of the original ten houses (at 1931 and 1927 and 1925 W Diamond) were gone:
U”A A”A _’M _ _ A”U
By the early 200Os, two more houses (at 1933 and 1929 W Diamond) were demolished, leaving the east side party wall of 1935 W Diamond exposed to the elements. That exposed east wall was subsequently painted as an enormous trompe l’oeil mural facing the five vacant lots between 1935 and 1923 W Diamond:
U”A A’_ _ _ _ _ A”U
In 2018, a demolition permit was issued for 1935 W Diamond. Bye-bye, mural! And hello again to a symmetrical (although 60% vacant) block:
U”A _ _ _ _ _ _ A”U
In 2024, a demolition permit was issued for 1937 W Diamond:
U’_ _ _ _ _ _ _ A”U
The new three-unit building at 1927 W Diamond will leave six vacant lots:
U’_ _ _ _ _’T _ A”U
I was able to find a photo of the block from 1996, but nothing before then. On PhillyHistory.org, there’s a photo from a snowy day in January 1954, looking west on Diamond from 19th Street. The fancy façades west of Uber are in the background, but with no distinguishable details. The 1954 photo shows some mature street trees along the north side of Diamond Street.
That’s quite a detailed historical account Paul. Thank you,