Permits have been issued for the construction of a new residential development at 2722 North 12th Street in Glenwood, North Philadelphia. The project proposes the construction of a three-story attached building with a cellar, introducing three dwelling units on a rowhouse parcel along the corridor. The property is located within a predominantly residential stretch of North 12th Street, characterized by attached structures and consistent lot widths. KCA Design Associates is responsible for the designs.
Construction costs are listed at $253,000, which includes $223,000 in general construction and $30,000 allocated for excavation.

2722 North 12th Street Plan via KCA Design Associates
Permit records indicate that the structure will be constructed as a Type V-B wood-frame building, totaling 4,352 square feet of construction area. The layout includes a basement level and three above-grade floors, all designated under R-2 residential occupancy. The approved scope also includes a second-floor rear deck, along with a roof deck accessed via a roof deck access structure positioned above the third floor.
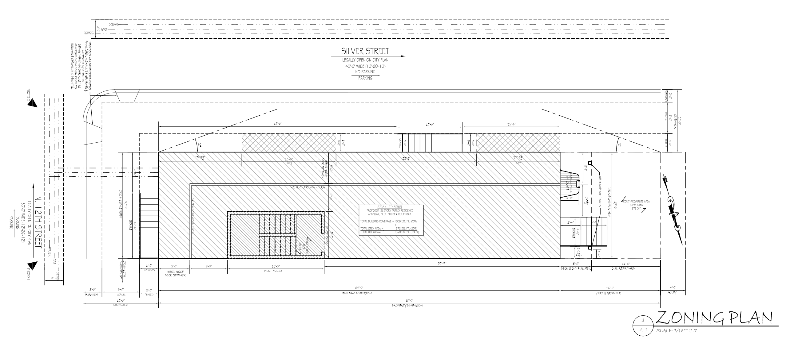
Zoning documentation confirms that the site is located within an RM-1 district, where multi-family residential use is permitted by right. The lot measures 17 feet in width and 1,360 square feet in area. The proposal provides 1,088 square feet of building coverage, corresponding to approximately 75 percent of the lot, while maintaining 272 square feet of open space, meeting the 20 percent minimum requirement for a corner condition. A rear yard setback of 11 feet is proposed, exceeding the minimum zoning requirement of 9 feet or 10 percent of lot depth. The building height is indicated at approximately 34 feet 3 inches, remaining below the 38-foot maximum allowed under zoning regulations.

2722 North 12th Street Location Map via KCA Design Associates
Architectural plans depict a contemporary rowhouse composition with a primary front façade defined by a raised entry accessed via an exterior stair and a regularized vertical window arrangement. The front elevation incorporates a masonry exterior, and the side elevation introduces additional façade articulation with varied cladding panels and recessed sections. The rear elevation features horizontal siding and integrates the second-floor deck, with door and window openings aligned vertically across floors. A roof deck access structure is visible above the main roofline.
A zoning permit for the project was issued in December 2025, followed by a building permit issued in April 2026. The zoning approval authorizes the construction of an attached structure with a roof deck and roof deck access structure for multi-family residential use . No zoning variances are referenced in the provided materials, indicating that the development proceeds in compliance with by-right zoning provisions.
Subscribe to YIMBY’s daily e-mail
![]()
Follow YIMBYgram for real-time photo updates
Like YIMBY on Facebook
Follow YIMBY’s Twitter for the latest in YIMBYnews






The blueprint for 2722 N. 12th St. is similar to that of 2342 N. Carlisle St., as described on the prior post, likely because KCA Design Associates is the architect of both.