A zoning permit has been issued for the construction of a new residential building at 227 East Sharpnack Street in the Germantown section of Philadelphia. The project site is a vacant lot located mid-block along East Sharpnack Street. Permit records identify the proposal as a single-family dwelling. Project team credits list Moto Designshop as the design professional, with Spruce Builders LLC serving as the contractor. Engineering coordination includes Ruggiero Plante Land Design.
The total construction cost is listed at $125,300, including $93,800 in general construction, $18,000 in plumbing, $7,200 in mechanical work, and $6,300 in electrical work.

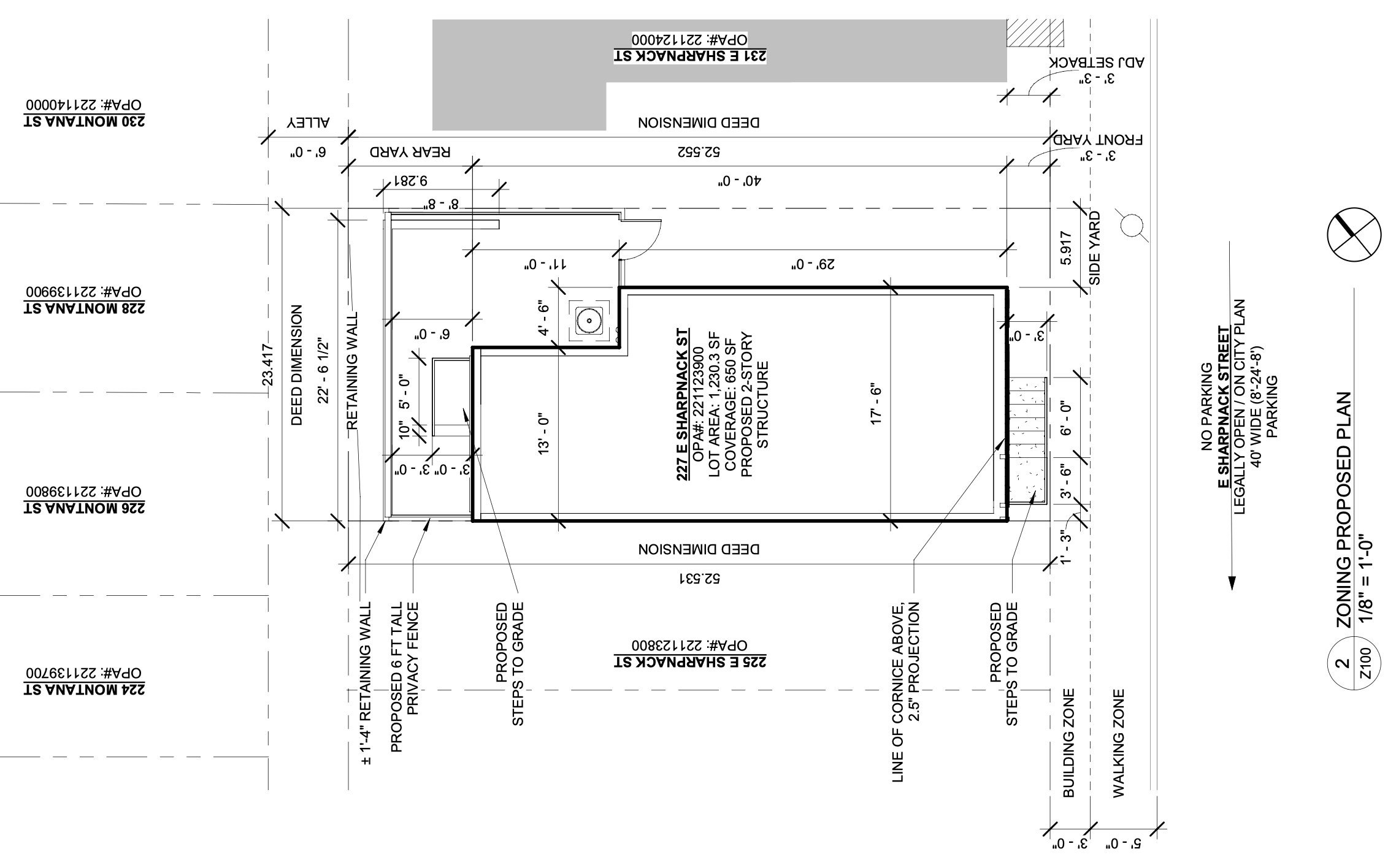
227 East Sharpnack Street Plan via Moto Designshop
The scope of work calls for the erection of a semi-detached structure rising two stories in height. The building is designed for single-family residential use and will be fully sprinklered in accordance with NFPA 13D standards. The total construction area is listed at 1,300 square feet, with site disturbance covering approximately 1,230 square feet.
Zoning drawings indicate the property falls within an RSA-5 residential district. The lot measures approximately 1,230.3 square feet, with a proposed building footprint of roughly 650 square feet, representing about 52.8 percent lot coverage. The plans show a front setback of approximately 3 feet 3 inches and a side yard setback of about 5 feet 9 inches. A rear yard depth of roughly 11 feet 3 inches is also indicated. The structure height is shown at approximately 25 feet 11 inches, below the district maximum of 38 feet.

227 East Sharpnack Street Location via Moto Designshop
Architectural drawings depict a straightforward front elevation clad in masonry, with a vertically oriented facade and minimal applied detailing. A small stoop with metal railings leads to the primary entrance, positioned slightly offset along the front elevation. Window openings are arranged in a simple stacked configuration across both floors. Subtle vertical elements, including shallow pilaster projections, provide limited articulation to the otherwise flat facade. The building massing remains compact and consistent with adjacent rowhouse forms along the block.
No construction timeline has been announced.
Subscribe to YIMBY’s daily e-mail
![]()
Follow YIMBYgram for real-time photo updates
Like YIMBY on Facebook
Follow YIMBY’s Twitter for the latest in YIMBYnews






Be the first to comment on "New Two-Story Single-Family Home Planned at 227 East Sharpnack Street in Germantown, Philadelphia"