Construction permits have been issued for a three-story single-family residence at 1400 East Oxford Street in Fishtown. The new building will replace a vacant lot situated at the western corner of the intersection of Belgrade Street and East Oxford Street. The planned building will span 2,400 square feet and will feature a basement and a roof deck. The development team consists of MDS Capital LLC as the owner, Here’s the Plan, LLC as the architect, and Enam Abazi as the contractor.
Construction costs are listed at $251,000, which works out to around $105 per proposed interior square foot. The figure includes $94,000 specified for general construction work, $12,000 for electrical work, $14,000 for mechanical work, and $21,000 for plumbing work.

1400 East Oxford Street. Site map. Credit: Here’s The Plan, LLC via the City of Philadelphia

1400 East Oxford Street. Site conditions prior to redevelopment. Looking north. Credit: Here’s The Plan, LLC via the City of Philadelphia

1400 East Oxford Street. Site conditions prior to redevelopment. Looking south. Credit: Here’s The Plan, LLC via the City of Philadelphia

1400 East Oxford Street. Site plan. Credit: Here’s The Plan, LLC via the City of Philadelphia
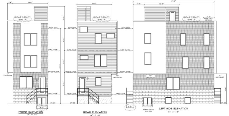
The proposed attached rowhouse will measure 14 feet wide and 34 feet high to the main roof and 44 feet to the top of the roof deck access bulkhead. A nine-and-a-half-foot-deep rear yard will open onto Belgrade Street. Floor-to-floor slab heights will measure ten feet.
The building’s front facade is designed in a rather common contemporary vernacular style, with a brick exterior on the primary facade, gently projecting bay bump at the upper stories, and a masonry-styled base, where a rather odd decision was made to extend the running bond pattern to the level of the first-story window rather than to the line of the first floor. The pattern continues on the wide Belgrade Street facade, where the design takes on a more contemporary manner where narrow rectangular windows are arranged in an offset pattern.
Curiously, the most interesting design element is reserved for the rear elevation, which faces the backyard yet is nevertheless prominently visible from the street due to the building’s corner location. Here, variously-styled windows are arranged in a decidedly asymmetrical, Modernist pattern upon an expanse of horizontal siding. In all, the building will make for a fitting addition both in terms of the neighborhood’s traditional prewar rowhouses as well as its more avant-garde contemporary architecture, which includes a four-story, 42-unit residential development relatively recently completed nearby at 1408-18 East Oxford Street.

1400 East Oxford Street. Plan detail for upper-level bay bump out. Credit: Here’s The Plan, LLC via the City of Philadelphia

1400 East Oxford Street. Aerial view prior to redevelopment. Credit: Here’s The Plan, LLC via the City of Philadelphia
Route 5 and 25 buses stop two short blocks to the west at Frankford Avenue, the neighborhood’s primary commercial thoroughfare. Palmer Park and Hetzell Playground both sit within an under-five-minute walk to the north and to the southeast, respectively, and Hancock Playground sits slightly further to the west. The Front-Girard Station on the Market-Frankford el is situated within a ten-minute walk to the southwest on Girard Avenue, another major retail corridor, as is the G1 trolley, which runs directly to Temple University and further west to West Philadelphia.

1400 East Oxford Street. Zoning table. Credit: Here’s The Plan, LLC via the City of Philadelphia
Subscribe to YIMBY’s daily e-mail
![]()
Follow YIMBYgram for real-time photo updates
Like YIMBY on Facebook
Follow YIMBY’s Twitter for the latest in YIMBYnews






Great location, only a block from all the shops and restaurants on Frankford Avenue.
Is this where that guy sells or used to sell hotdogs for some kind of charity?