Residential building permits have been issued for the construction of a three-story single-family residence at 2025 Abigail Street in Fishtown. The planned rowhouse will replace a vacant lot sited on the northeast side of the block between Martha Street and Trenton Avenue. The new building will feature 1,784 square feet of interior floor space and will include a basement and a roof deck. Permits list a development team consisting of 2025 Abigail Investments as the owner, E-Consulting LLC behind zoning permit documentation, and JC Excavation Services as the contractor.
Project construction costs are listed at $269,000, which works out to approximately $151 per proposed interior square foot. The total includes $200,000 for general construction work, $13,000 for electrical work, $13,000 for mechanical work, $13,000 for plumbing work, and $30,000 for excavation work.

2025 Abigail Street. Front building elevation. Credit: E Consulting LLC via the City of Philadelphia

2025 Abigail Street. Rear building elevation. Credit: E Consulting LLC via the City of Philadelphia

2025 Abigail Street. Side building elevation. Credit: E Consulting LLC via the City of Philadelphia

2025 Abigail Street. Side building elevation. Credit: E Consulting LLC via the City of Philadelphia
The new building will rise from narrow, alley-like Abigail Street, where the roadway measures just eight-and-a-half-feet wide, barely enough for a standard street vehicle to pass through, and sidewalks span only six feet and nine inches wide. Three-story buildings rising along such narrow passageways make for a distinctive urbanism that is rather unique to Philadelphia, at least as compared to most other cities in the United States.
The proposed structure will span 13 feet wide and 39 feet long, or 75 percent of the lot, and will be backed by a 13-foot-square rear yard. Although the building is classified as attached, it will be freestanding upon completion, as its northwest side will open onto a three-foot-wide alleyway, and the opposite, southeast side elevation will open onto a freestanding two-story garage next door.
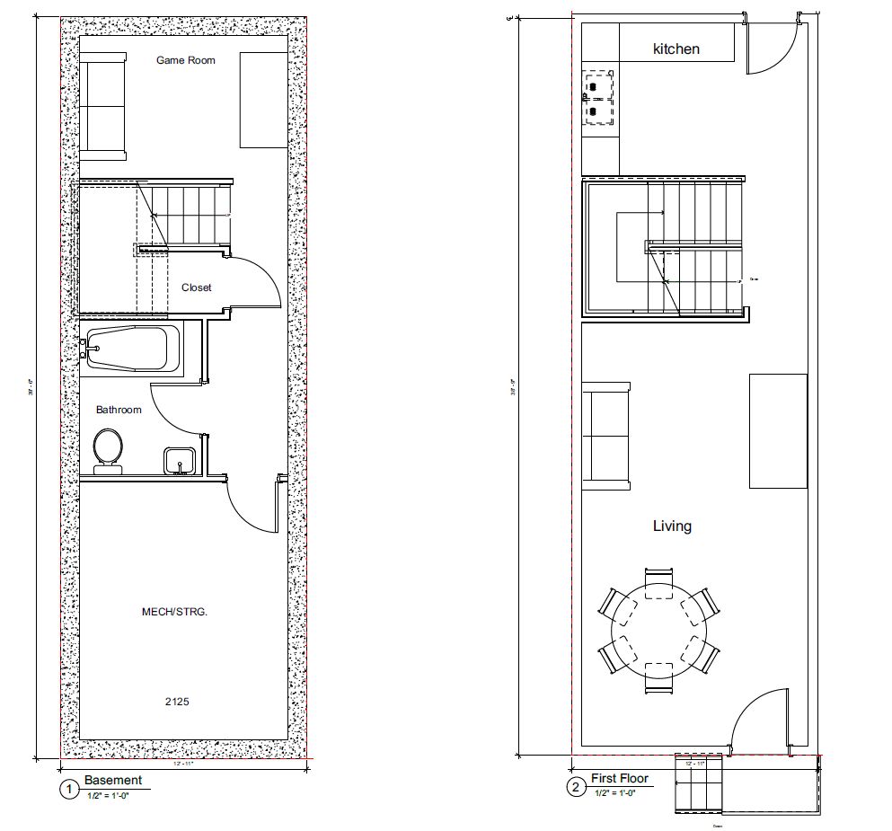
The building will rise 32 feet to the main roof and 42 feet to the top of the roof access pilot house. Floor-to-floor slab heights will measure approximately ten feet. Floor layouts show that the following interior arrangement: a game room, a restroom, and mechanical and storage space in the basement; a living room and a kitchen on the ground floor; two bedrooms and a bathroom on the second floor; and a bedroom, a bathroom, and a washer/dryer room on the third floor.

2025 Abigail Street. Floor plans. Credit: E Consulting LLC via the City of Philadelphia

2025 Abigail Street. Floor plans. Credit: E Consulting LLC via the City of Philadelphia
Route 3, 5, 25, and 89 buses service the surrounding area, and the Berks station on the Market-Frankford elevated subway line sits within a six-minute walk to the southwest. A number of small green spaces, the most notable of which is Norris Square Park, are situated within a ten-minute walk of the proposed building.

2025 Abigail Street. Zoning table. Credit: E Consulting LLC via the City of Philadelphia
Subscribe to YIMBY’s daily e-mail
![]()
Follow YIMBYgram for real-time photo updates
Like YIMBY on Facebook
Follow YIMBY’s Twitter for the latest in YIMBYnews






Be the first to comment on "Construction Permits Issued for Single-Family Rowhouse at 2025 Abigail Street in Fishtown"