Construction permits have been issued for a three-story single-family residential building at 28 East Pleasant Street in Mount Airy, Northwest Philadelphia. The proposed rowhouse will rise from a vacant property situated at the southeast side of the block between Germantown Avenue and Musgrave Street. The planned building will span 2,327 interior square feet and will feature a basement and a roof deck. Permits list Altus Development as the contractor.
Project construction costs are listed at $250,000, equating to approximately $93 per proposed buildable interior square foot. This total includes $180,000 for general construction work, $12,000 for electrical work, $12,000 for mechanical work, $11,000 for plumbing work, and $35,000 for excavation work.

28 East Pleasant Street. Site map via the Planning Department of the City of Philadelphia
The rowhouse will slot neatly into a vacant gap on an otherwise intact row of two-story prewar rowhouses. The gesture will be a boon to the pedestrian experience, although the blooming flower beds facing the sidewalk will be missed.
In a deferential gesture to the surrounding context, the building will feature a raised stoop and an enclosed porch. The third story will feature a steep mansard slope that will preserve the continuous block-long cornice line.

28 East Pleasant Street. Architectural zoning plan via the Planning Department of the City of Philadelphia

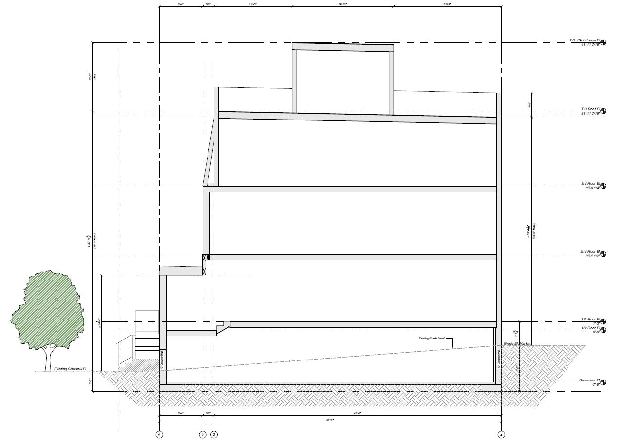
28 East Pleasant Street. Proposed building section via the Planning Department of the City of Philadelphia
The building will rise around 38 feet high to the main roof, which will hold a 354-square-foot deck, and 48 or so feet to the top of the roof access bulkhead. Floor-to-floor slab heights will measure approximately ten feet at the above-ground levels. The basement ceiling will span around eight feet in ehight. A 360-square-foot yard will sit behind the building.
Germantown Avenue, the neighborhood’s primary retail and dining thoroughfare, serviced by the route 23 bus, is situated half a block to the south of the proposed development. The route 18 bus runs along Chew Avenue a block and a half to the northeast.

28 East Pleasant Street. Zoning table via the Planning Department of the City of Philadelphia
Subscribe to YIMBY’s daily e-mail
![]()
Follow YIMBYgram for real-time photo updates
Like YIMBY on Facebook
Follow YIMBY’s Twitter for the latest in YIMBYnews






Be the first to comment on "Construction Permits Issued for Single-Family Rowhouse at 28 East Pleasant Street in Mount Airy, Northwest Philadelphia"