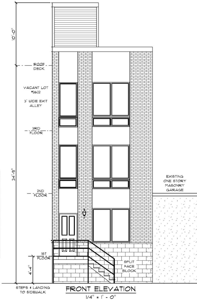
Permits have been issued for the construction of a three-story single-family residence at 2620 East Harold Street in the Olde Richmond neighborhood in Philadelphia’s River Wards district. The attached rowhouse will be constructed on the southwest side of the block between Almond Street and East Thompson Street. The new building will span 2,722 square feet of proposed interior space and will feature a roof deck. The project team includes Here’s the Plan, LLC as the architect and Qazim Kupa as the contractor.
Development construction costs are specified at $252,000, which calculates to roughly $93 per buildable interior square foot. This total includes $205,000 allocated for general construction, $12,000 for electrical work, $14,000 for mechanical work, and $21,000 for plumbing work.

2620 East Harold Street. Project map. Credit: Here’s The Plan, LLC via the City of Philadelphia

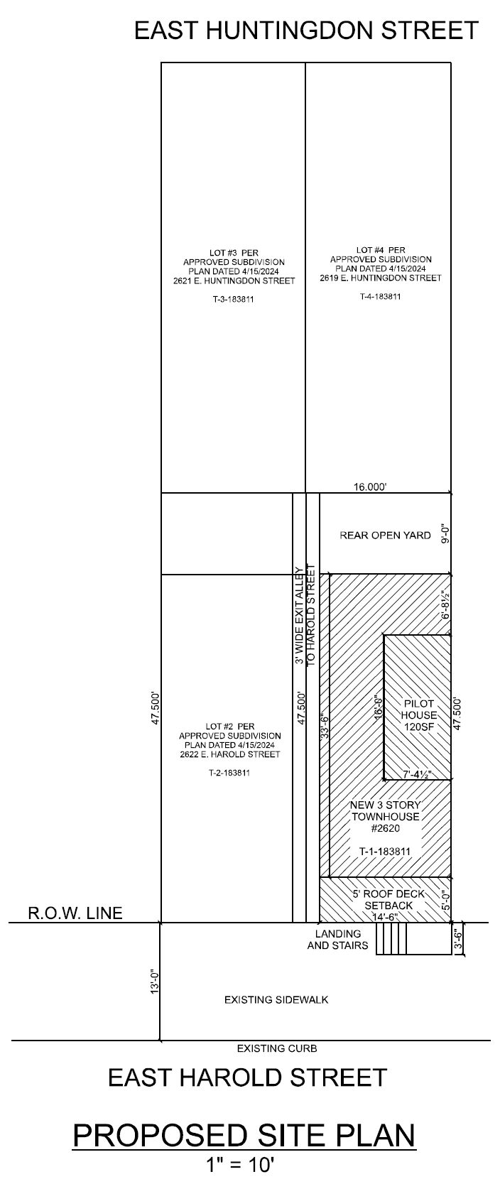
2620 East Harold Street. Site plan. Credit: Here’s The Plan, LLC via the City of Philadelphia

2620 East Harold Street. Site conditions prior to redevelopment. Credit: Here’s The Plan, LLC via the City of Philadelphia

2620 East Harold Street. Site conditions prior to redevelopment. Credit: Here’s The Plan, LLC via the City of Philadelphia
The development, proposed for a mid-block site upon exceptionally narrow, alley-like East Harold Street, will feature a vertically-styled exterior with split face block in running bond rising to the level of the first-floor windows (surprisingly so, rather than stopping more traditionally at the top of the building base), with brick at the above-ground floors and apparent paneling at transom spaces between, above, and below windows and the front entry. A lantern sconce above the front stoop will add a charming touch to the composition.
Route 39 and 89 buses run along nearby Aramingo Avenue, a major thoroughfare that runs three short blocks to the northwest of the proposal site, where Aramingo Square, a sizable green space, may also be found.

2620 East Harold Street. Site aerial prior to redevelopment. Credit: Here’s The Plan, LLC via the City of Philadelphia

2620 East Harold Street. Zoning table. Credit: Here’s The Plan, LLC via the City of Philadelphia
Subscribe to YIMBY’s daily e-mail
![]()
Follow YIMBYgram for real-time photo updates
Like YIMBY on Facebook
Follow YIMBY’s Twitter for the latest in YIMBYnews






Be the first to comment on "Permits Issued for Construction of Single-Family Dwelling at 2620 East Harold Street in Olde Richmond"