Permits have been issued for the construction of a three-story, two-family residential building at 1603 West Dauphin Street in North Philadelphia West near Temple University. The new building will fill a currently vacant property sited at the northern side of the block situated between North 16th Street and North Smedley Street. The proposed structure will span 3,200 square feet and will offer a basement and a roof deck. The project team is comprised of Philadelphia Developments LLC as the owner, Here’s the Plan, LLC as the architect, and Elegance Group LLC as the contractor.
Permits pin construction costs at a total of $300,000, translating to nearly $94 per proposed interior square foot. This sum is broken down into $255,000 allocated for general construction, $10,000 for electrical work, $10,000 for mechanical work, $10,000 for plumbing work, and $15,000 for excavation work.

1603 West Dauphin Street. Aerial view prior to redevelopment. Credit: Here’s The Plan, LLC via the City of Philadelphia

1603 West Dauphin Street. Site conditions prior to redevelopment. Credit: Here’s The Plan, LLC via the City of Philadelphia

1603 West Dauphin Street. Site conditions prior to redevelopment. Credit: Here’s The Plan, LLC via the City of Philadelphia
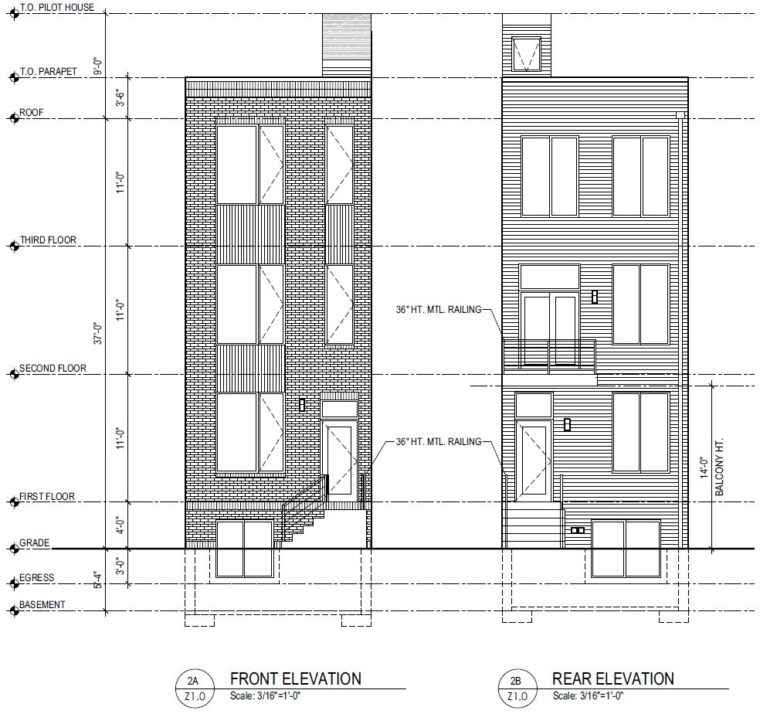
The proposed attached rowhouse will rise between two existing prewar rowhomes, just off the corner of Dauphin and North 16th streets. The new structure will measure 16 feet wide and 50 feet long, backed by a 19-and-a-half-foot-deep rear yard. The structure will rise without setbacks to its 40-and-a-half-foot-high parapet, which, at three-and-a-half-feet above the main roof, will enclose a spacious roof deck. The latter will be accessed via a pilot house, which will bring the structure’s total height to 46 feet. The ground floor will sit four feet above the sidewalk level, and floor-to-floor slab heights will measure 11 feet at the aboveground floors.
The street-facing facade will be clad in brick arranged in a traditional running-bond pattern, with two bands of rowlock course at the building foundation and at the top of the base. Vertical striping comprised of an unspecified material will run along window spandrels as well as above the main entrance, a second-story window sill, and above third-story windows. The rear facade will be clad in horizontal siding, where a second-story balcony will overlook the backyard. 36-inch-high metal railing will front the entry stoop and the second-story balcony.

1603 West Dauphin Street. Site plan. Credit: Here’s The Plan, LLC via the City of Philadelphia
1603 West Dauphin Street will make for a welcome addition to a lot that has sat empty since around 2010, when a dilapidated, abandoned prewar rowhouse that previously stood at the site was demolished (for visual reference, the rowhouse was styled in the same manner as its adjacent neighbors, particularly the better-preserved property next door at 1601 West Dauphin Street). Given its proximity to Temple University, it is likely that the new residences will be marketed to university students, although YIMBY has no confirmation of this supposition.
The Susquehanna-Dauphin station on the Broad Street subway line, situated at the northern end of the university campus, is situated nearby, accessible via a four-minute walk to the east along Dauphin. Route 2, 4, 16, and 39 buses also run within the vicinity. Glenwood Green Acres, Reyburn Park, and Fotterall Square all lie within a 15-minute walking distance, with the latter also situated next to the unique, fantastical artistic psychedelia of the open space and murals of the Village of Arts and Humanities, a cherished local arts and community revitalization organization.

1603 West Dauphin Street. Zoning table. Credit: Here’s The Plan, LLC via the City of Philadelphia
Subscribe to YIMBY’s daily e-mail
![]()
Follow YIMBYgram for real-time photo updates
Like YIMBY on Facebook
Follow YIMBY’s Twitter for the latest in YIMBYnews






With a project of 3,200 square feet, each apartment (averaging 1,600 square feet) might accommodate three or four bedrooms. Six to eight new residents is quite a jump in density in an area with a substantial number of vacant lots.