A new mixed-use development known as The Triangle Factory has been permitted at 2221 North Front Street in East Kensington, Philadelphia. The approved scope calls for new construction of a seven-story structure with a cellar, utilizing horizontal separations to create two distinct construction types. The basement, first, and second floors are identified as Type IA construction, while floors three through seven are identified as Type IIIA. G & M Efestos Contracting Inc. is listed as the contractor, and permit records list Ambit Architecture as the design professional.
General construction costs are estimated at $8,400,000.

2221 North Front Street First Zoning Plan via Ambit Architecture

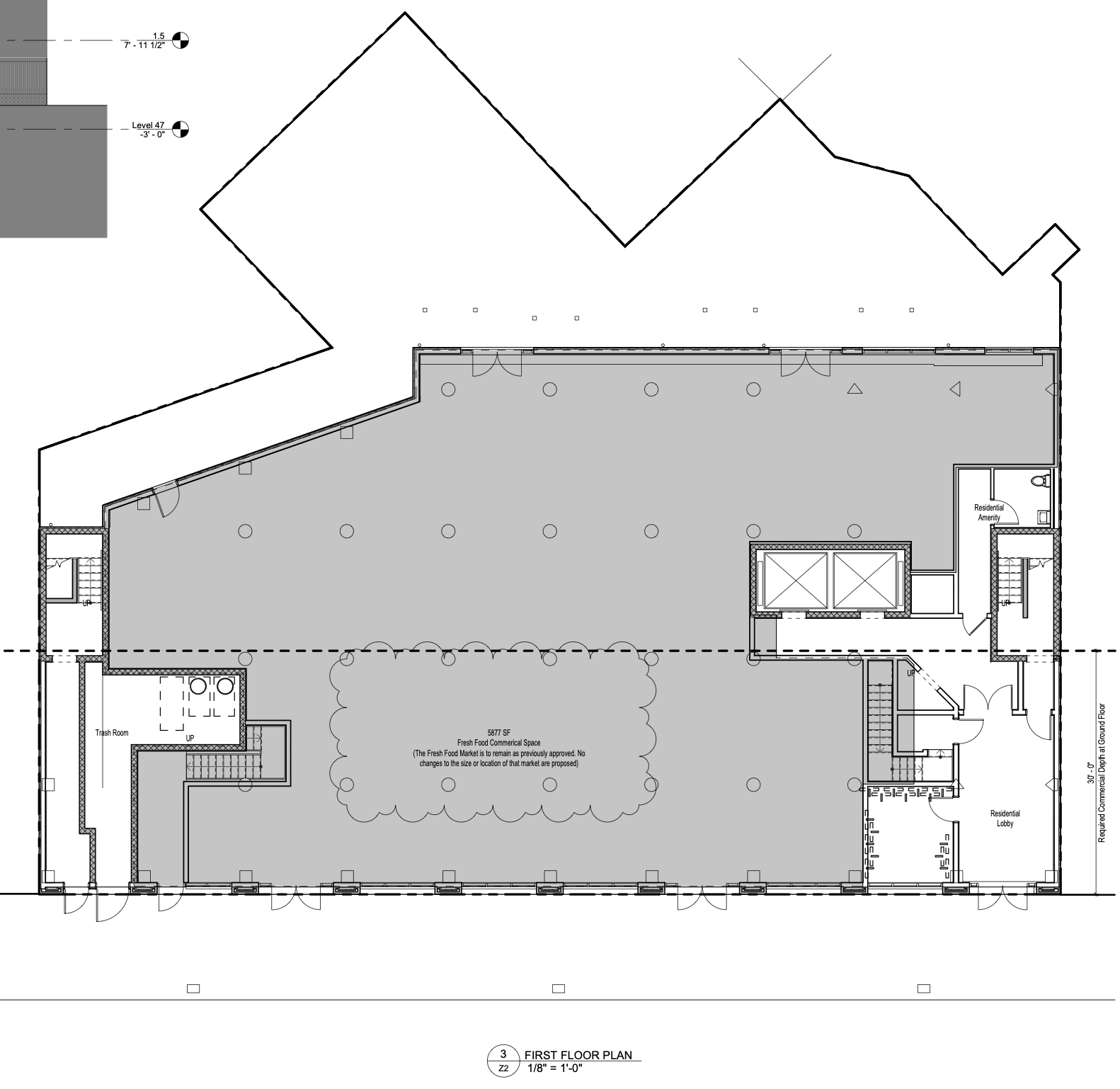
2221 North Front Street First Floor Plan via Ambit Architecture
The development is approved for 60 dwelling units above shell commercial space at the ground floor. The commercial component utilizes the Fresh Food Market bonus and maintains a minimum 5,877 square feet of fresh food retail space as previously approved, with the zoning set indicating no change to the size or location of that market. Residential levels extend from the second through seventh floors, with a typical floor area shown at approximately 7,738 square feet. Permit records list total construction area at 57,066 square feet and earth disturbance at 7,738 square feet.

2221 North Front Street First Elevation via Ambit Architecture
Zoning documentation identifies the property within a CMX-2.5 district. The consolidated lot is shown at approximately 10,646 square feet. The proposal advances from a base allowance of 39 dwelling units to 60 units through zoning bonus provisions tied to the project’s program.

2221 North Front Street 3D Drawing 2 via Ambit Architecture

2221 North Front Street 3D Drawing via Ambit Architecture
Elevation drawings depict a seven-story street façade organized around stacked window openings above a ground-floor commercial frontage and a residential entry. The roof is shown with rooftop enclosures and building equipment consistent with the approved plans, while the overall massing responds to an irregular site geometry shown in the zoning set.

2221 North Front Street View via Ambit Architecture
The commercial building permit was issued in February 2026. A construction timeline has not yet been announced.
Subscribe to YIMBY’s daily e-mail
![]()
Follow YIMBYgram for real-time photo updates
Like YIMBY on Facebook
Follow YIMBY’s Twitter for the latest in YIMBYnews






Type IA construction represents the highest level of fire-resistive, noncombustible construction, typically utilizing reinforced concrete or protected steel for high-rise buildings and large, dense developments. Recent projects (such as 2221 N. Front St.) have included Type IA for podium levels, with mixed-use structures sometimes using Type IA for lower levels (e.g., ground floor or parking) and other types above.
Type IIIA construction refers to “ordinary construction” with 1-hour fire-rated protected combustible interiors, commonly used for mid-rise, mixed-use, or residential buildings. Exterior bearing walls require at least 2-hour fire resistance, while interior structural elements, floors, and roofs must have at least 1-hour protection. Exterior materials are typically non-combustible masonry while interior framing is often fire retardant treated wood.
Type IIIA is distinct from Type IIIB, which does not require the 1-hour fire protection for internal elements.
Shame to have a big building but nothing on the roof besides AC units, the views from a roof deck would be amazing. The brick look cladding is nice, looks like it could blend in a bit which is nice, many new midrise buildings in this town lack any personality they made add some bright pops of color here and there and call it a day while having zero visual interest in any other way or any visual connection to their surroundings. This is not exciting to look at, it does not have much personality at all, but at least it does not try to fake it and end up sticking out like a sore thumb by looking like something that should have a chain hotel’s logo on the side of it out by the airport, as boring as this may look, at least I would not expect to see this next to I95 by the airport.
What is the roof height (not including the four flagpoles)?
John Thomas
Maybe I missed it but did not see how many off street parking spots they will be available. If they go to 60 units then they need at least 90 parking spots just for tenants. Even with triple glassed windows will hear L trains 19 hours everyday.