Permits have been issued for the construction of a three-story single-family rowhouse at 1020 West Arizona Street several blocks to the northeast of Temple University in the Hartranft neighborhood in North Philadelphia East. The property is currently comprised of a vacant lot situated on the south side of the block between North 10th and North 11th streets. The new building will span 2,352 square feet of interior space and will offer a cellar and a roof deck. The project team consists of T&I Development as the owner, KCA Design Associates as the architect, and Elegance Group as the contractor.
Total construction costs are indicated at $177,300, which translates to approximately $75 per interior square foot. This sum includes $115,000 for general construction work, $6,800 for electrical work, $7,500 for mechanical work, $23,000 for plumbing work, and $25,000 for excavation work.

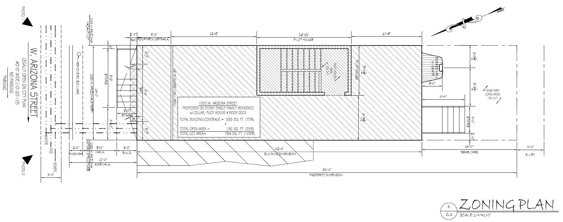
1020 West Arizona Street. Zoning map. Credit: KCA Design Associates via the City of Philadelphia
YIMBY recently covered a sister project at 1018 West Arizona Street, which will rise next door. Like its future neighbor, the proposed building will span 14 feet wide and 42 feet long, resulting in a structural footprint covering 75 percent of the lot. A square, 14-by-14-foot yard will sit in the rear. The structure will rise 36 feet to the main roof, 40 feet to the top of the building parapet, and 46 feet to the pinnacle of the pilot house, which will be used to access the roof deck. The ground level will sit four feet above the sidewalk. Ceiling heights will measure ten feet at the first and third floors and nine feet at the second story.
Running course brick, with a band of soldier course brick demarcating the top of the base as a design accent, will cover the primary facade. The brick exterior will pleasantly harmonize with the surrounding prewar rowhouses, adding a touch of classic Philadelphia flair to an otherwise contemporary structure. An eight-and-a-half-foot-wide, one-foot-deep bay bump at the second and third floors will cantilever above the front stoop. Horizontal siding will cover the rear elevation.

1020 West Arizona Street. Site plan. Credit: KCA Design Associates via the City of Philadelphia
At the moment, adjacent properties on either side currently sit vacant, so although classified as an attached structure, the building will be freestanding at the moment of completion, unless the sister project planned next door at 1018 West Arizona Street rises first. The two buildings will rise at the periphery of the distinctive, uniquely styled “campus” of the Village of Arts and Humanities, as clearly marked by undulating, folk art-influenced crenellated low fences and ersatz “totem pole” pillars posted across the surrounding lots. The Village is a distinguished local arts and community revitalization organization, notable for its distinctive exterior art style and cultural programs.
The surrounding blocks are serviced by the route 23 and 39 buses, and the Susquehanna-Dauphin station on the Broad Street subway line and the North Broad Street regional rail station may be accessed via a ten- to 12-minute walk to the southwest and to the northwest, respectively. A 15-minute walk to the southwest would bring future residents to the Temple University campus.

1020 West Arizona Street. Zoning table. Credit: KCA Design Associates via the City of Philadelphia
Subscribe to YIMBY’s daily e-mail
![]()
Follow YIMBYgram for real-time photo updates
Like YIMBY on Facebook
Follow YIMBY’s Twitter for the latest in YIMBYnews






Be the first to comment on "Permits Issued for Single-Family Development at 1020 West Arizona Street in Hartranft, North Philadelphia East"