Permits have been issued for the construction of a new residential building at 5619 Heiskell Street in the Germantown neighborhood of Northwest Philadelphia. The project calls for the erection of a two-story attached structure for use as a single-family dwelling on a currently vacant parcel. Spruce Builders LLC is listed as the contractor for the project. The design is attributed to Moto Designshop. The property is owned by Civetta Property Group.
Permit records indicate a reported total construction cost of $125,300, including electrical, mechanical, plumbing, and general construction work.

5619 Heiskell Street via Moto Designshop
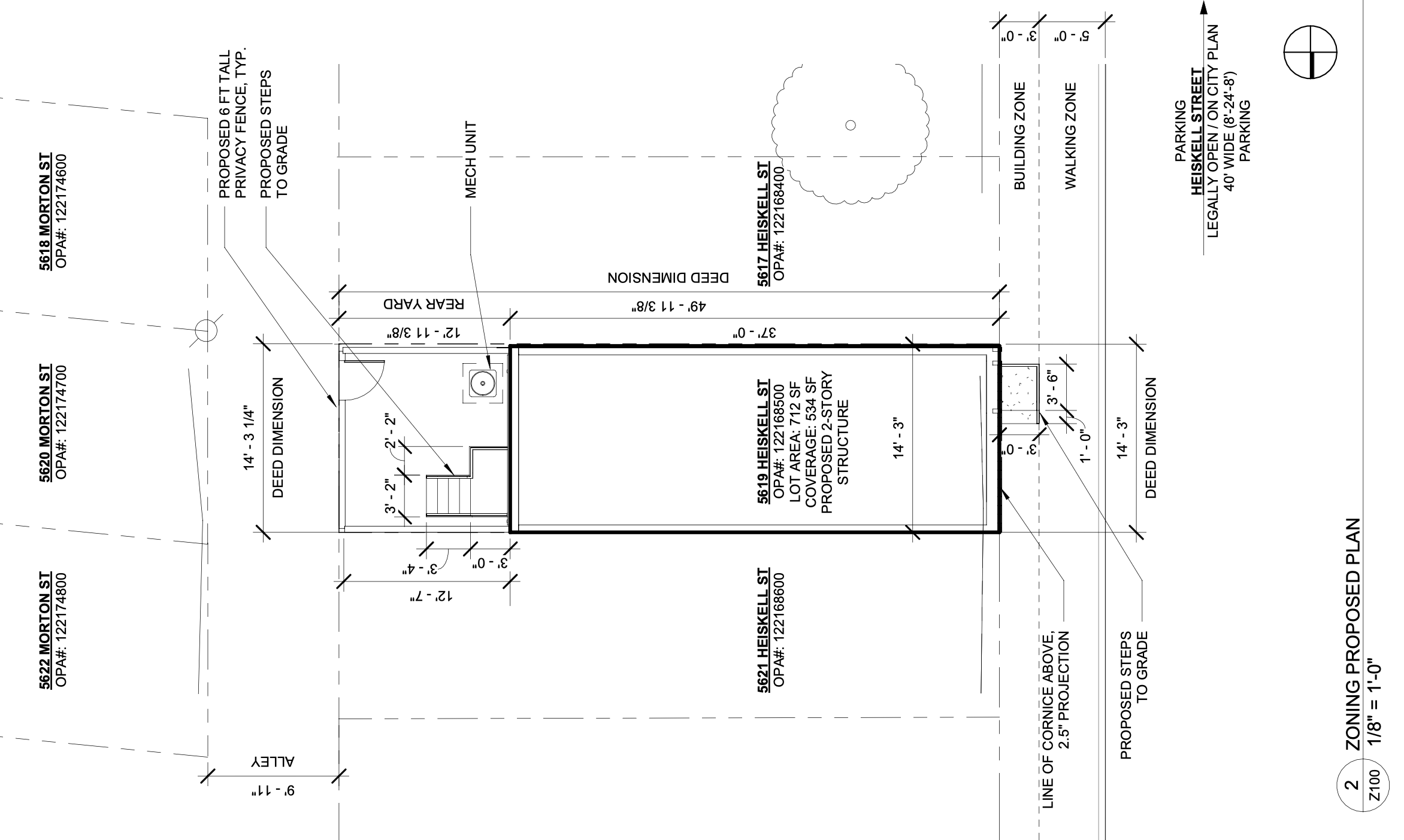
The development site spans approximately 712 square feet and is located within the RSA-5 zoning district, which permits attached single-family residential construction. The zoning permit authorizes the erection of a two-story structure on the existing vacant lot. The plans indicate a proposed building height of approximately 23 feet 6 inches, well below the district’s 38-foot maximum height limit.

5619 Heiskell Street Site Map via Moto Designshop
Architectural zoning plans show a building footprint of approximately 534 square feet, resulting in roughly 75 percent lot coverage. The design includes a rear yard measuring approximately 12 feet 11 inches at the back of the parcel. The structure will rise two stories above grade and feature a brick façade with vertically arranged window openings and a raised entry accessed by front steps and railings.

5619 Heiskell Street Plan via Moto Designshop
Permit documentation authorizes approximately 1,036 square feet of new construction area, with each floor containing about 518 square feet. The building will be classified as R-3 residential occupancy and constructed as a Type V-B combustible unprotected structure according to permit records.
With the zoning permit issued in December 2025 and the building permit approved, the proposed single-family residence at 5619 Heiskell Street is cleared to proceed in accordance with the approved plans.
Subscribe to YIMBY’s daily e-mail
![]()
Follow YIMBYgram for real-time photo updates
Like YIMBY on Facebook
Follow YIMBY’s Twitter for the latest in YIMBYnews






I appreciate that it isn’t a three story with a pilot house!
My chief concerns would be the local topography and the risk of flooding in the Wingohocking Creek drainage basin.
Agree with Susan. On a block of two story homes, a two floor home is appropriate.