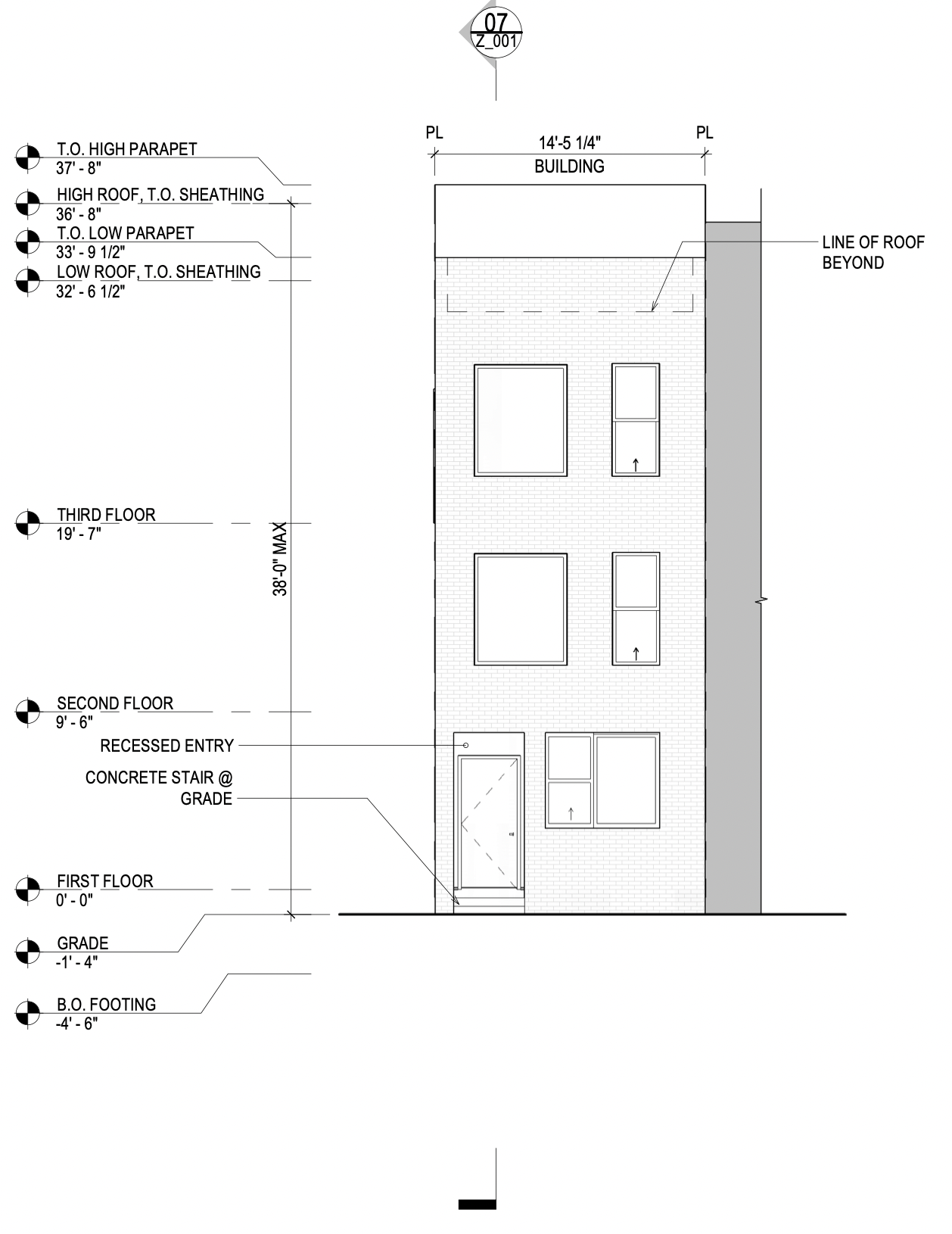
Permits have been issued for the construction of a five-unit multi-family building at 1814 North 18th Street in Cecil B. Moore, North Philadelphia. Designed by Gnome Architects, the new building will rise four stories tall and will feature a roof deck. GRIT Construction will serve as the contractor. Construction costs are listed at $945,000.

Aerial view of 1814 North 18th Street. Credit: Google.
The new building will replace an existing row house that stands two stories tall, has a brick foundation, and bland gray stucco above. A gabled roof is its only notable design feature. The home is part of a row that arrived after the neighborhood’s postwar decline, with a rather suburban design. Needless to say, this tactic of building was not in keeping with the city’s established architectural tradition, and has left scars throughout the cityscape as a result.
Luckily, more natural-looking infill has been arriving to the area en masse, and is organically closing the gaps formed through the numerous demolitions that took place throughout large swaths of North Philadelphia. The height increase that will be brought with the new building, as well as the sizable density increase (a property occupied by one residential unit soon to be occupied by five) will be a positive move toward increasing population sizes in the area surrounding Temple University.
No completion date is known for the project at this time, though construction may be finished by 2022 or 2023.
Subscribe to YIMBY’s daily e-mail
Follow YIMBYgram for real-time photo updates
Like YIMBY on Facebook
Follow YIMBY’s Twitter for the latest in YIMBYnews






About a half-mile walk from the Cecil B Moore station of the Broad Street Line.
Unfortunately, there is no direct door-to-bus service available to the property.
A four story building that’s actually three stories plus a basement is a rather tacky way of advertising additional height.
How’s the cellular signal out there?
Is the neighborhood safe?
Since there are no parking garages anywhere nearby, the backyard is filled with parking (a rather upsetting development compared to Northeast Philly (which is arguably the best location in the city without compromise)).
I will admit that the proximity to the Broad Street Line is a very attractive extra, even if it is a hike during a thunderstorm or a wintery ice and snowstorm.
Good luck, I’ll see you around.
I still can’t decide if you’re a real person. I’ve never seen a real person talk like that. It’s a mystery.
You’re obviously the neighborhood troll, typically posting under a different name (but in your case, just some random letters of the English alphabet).