Permits have been issued for the construction of a three-story, three-unit multi-family residential building at 2326 North 16th Street in North Philadelphia West. The property sits on a block between Dauphin and York streets, within a neighborhood seeing steady infill development. Total construction area will measure 4,240 square feet. T&I Development LLC is listed as the owner, with KCA Design Associates LLC as the design firm and Elegance Group LLC as the contractor.
Construction costs are listed at $316,500, which includes $276,500 in general construction and $40,000 for excavation.

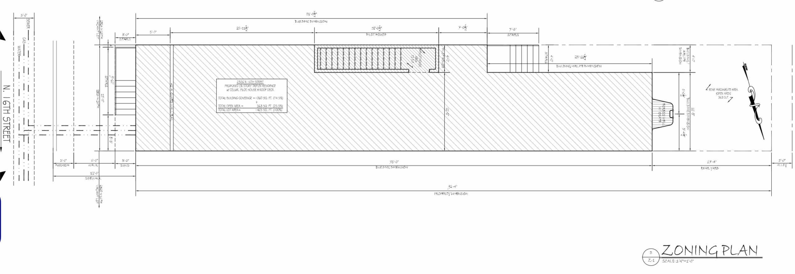
2326 North 16th Street Plan via KCA Design Associates LLC
The development will consist of an attached structure with a roof deck and pilot house, built as a three-unit residential building. The structure will feature Type V-B wood framing and will be fully sprinklered under NFPA 13R standards.
Zoning approval was granted in September 2025, allowing the erection of a new attached residential building with a roof deck and access structure. The site is zoned RM-1 (Residential Multi-Family). The 1,423-square-foot parcel supports the proposed three dwelling units, which cover 74-and-a-half percent of the lot, leaving 363 square feet as open area. The structure will rise to 35 feet to the main roof, four feet below the 38-foot maximum height allowed.
Architectural drawings depict a contemporary three-story rowhouse with a brick façade at the front elevation and horizontal siding at the rear. The plans also show a cellar level, front entry stoop, and a roof deck accessed via a modest pilot house, providing private outdoor space for residents.
The project at 2326 North 16th Street exemplifies Philadelphia’s incremental infill strategy that strengthens density and neighborhood renewal. The estimated construction timeline has not bee revealed yet.
Subscribe to YIMBY’s daily e-mail
![]()
Follow YIMBYgram for real-time photo updates
Like YIMBY on Facebook
Follow YIMBY’s Twitter for the latest in YIMBYnews






Although this particular block of North Philadelphia West has seen zero infill development (indeed, due to demolition, there are fewer structures on the block now as compared with 2008), there has been something better — rehabilitation.
At least eleven residences have been restored to their former handsome state — 2318, 2323, 2325, 2327, 2338, 2341, 2343, 2345, 2347, 2349, and 2351 N. 16th St. And look better than 90% of what is built today.