Permits have been issued for a three-story, three-unit residential building at 2334 North 16th Street in North Philadelphia West. The development will rise on the block situated between West Dauphin Street and West York Street, replacing a vacant grassy lot adjacent to existing rowhouses. The project will span 4,212 square feet. Design work is handled by KCA Design Associates. Elegance Group LLC serves as the general contractor.
Total construction costs are listed at $316,500, which includes $40,000 for excavation work.

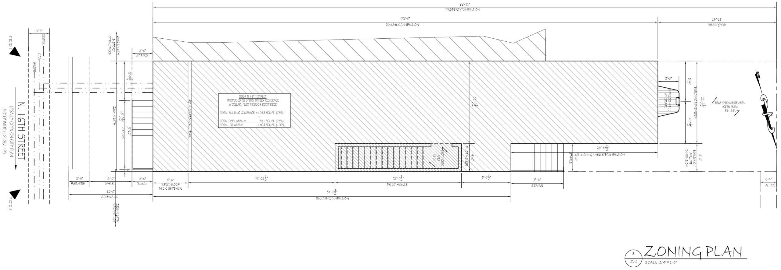
2334 North 16th Street Plan via KCA Design Associates
The structure will feature a cellar and a private roof deck with a pilot house and will be fully sprinklered in accordance with NFPA 13D standards. The building will be used as a triplex (three-family dwelling).
Architectural drawings depict a narrow, traditional infill rowhouse with a brick façade at the front elevation and horizontal siding at the rear. The design includes large double-hung windows, a raised front stoop, and a clean, flat roofline topped by the pilot house. The structure will occupy approximately 75 percent of the 1,404-square-foot lot, leaving 351 square feet (25 percent) as open rear yard space, consistent with RM-1 zoning standards. At roughly 35 feet tall, the building will stay within the district’s 38-foot height limit. The rear yard will measure just under 17 feet in depth, and the project will maintain a zero-foot front setback, aligning with the established street wall along North 16th Street.
The site is zoned RM-1 (Residential Multi-Family) and lies within a predominantly low- to mid-density residential area near Temple University. The estimated construction timeline has not been revealed yet.
Subscribe to YIMBY’s daily e-mail
![]()
Follow YIMBYgram for real-time photo updates
Like YIMBY on Facebook
Follow YIMBY’s Twitter for the latest in YIMBYnews






2334 N. 16th St. is nearly identical (although a mirror image) to 2326 N. 16th St. as described in YIMBY’s November 1, 2025 post. The architectural firm and general contractor are the same. The three floors, three units, roof deck, cellar, front and rear facade materiel, window size and placement, height, and construction cost are all alike. Square footage, both lot and building, are similar.
North Philadelphia West needs many more residents and retail to regain its former vibrancy. This is a start.
I agree, but wouldn’t it be nice if someone came up with something original rather than the typical 3-story house with the utilities on the face of the building and a pilot house?? Doesn’t anyone have any imagination??