City permits have been issued for the construction of a three-story single-family building at 6115 Osceola Street in East Germantown, Northwest Philadelphia. The structure, labeled as Unit 10 within the 12-building townhouse complex master plan, will be constructed upon a vacant lot sited on the northeast side of the block between Herman Street and East Tulpehocken Street. The townhouse will span 2,498 square feet and will include a basement, a roof deck, and a single outdoor parking space by the back alley. The project team includes KJO Architecture as the designer and BF Capital Developers as the contractor.
Permits specify a construction cost of $286,862, or approximately $115 per proposed interior square foot, of which $222,696 is allocated for general construction work, $10,000 for electrical work, $10,000 for mechanical work, $15,000 for plumbing work, and $29,166 for excavation work.

6115 Osceola Street. Building rendering. Credit: KJO Architecture via the City of Philadelphia

6115 Osceola Street. Building rendering. Credit: KJO Architecture via the City of Philadelphia

6115 Osceola Street. Building rendering. Credit: KJO Architecture via the City of Philadelphia

6115 Osceola Street. Project map. Credit: Google Maps

6115 Osceola Street. Site plan. Credit: KJO Architecture via the City of Philadelphia

6115 Osceola Street, Unit 10. Site plan. Credit: KJO Architecture via the City of Philadelphia

6115 Osceola Street. Site plan legend. Credit: KJO Architecture via the City of Philadelphia
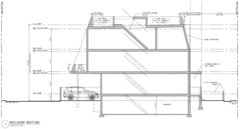
Like the rest of the townhouse ensemble, the attached building will sit at a two-foot stagger in relation to its neighbors, lending a dynamic rhythm to the overall composition. The structure’s footprint will measure 16 feet wide and 51 feet long. The building will rise 34 feet to the top of the main roof and 37-and-a-half feet to the top of the parapet.
The first floor will sit at an elevation of three feet above the ground plane. Ceiling heights will span nine feet at the above-ground floors and eight feet in the basement.

6115 Osceola Street. Aerial view prior to redevelopment. Credit: Google Maps

6115 Osceola Street. Site view prior to redevelopment. Looking northeast. May 2025. Credit: Google Street View via Google Maps
The structure will be styled as a contemporary interpretation of Germantown’s traditional prewar housing stock. Small front yard will sit in front of five-foot-deep covered porches. The bichromatic color scheme will consist of white vertical siding at the upper floors and the mansard roof, while dark gray accents will be used at the ground-level brick, porch awning, and peaked gable roof lining.
The ground floor will recede into the structure at the rear elevation, creating space for a partially covered rear deck and a single-car parking space, accessed via a shared mid-block drive aisle. The floors above will be cantilevered at a slight slant ascending toward the roof.
Several public green spaces are available within a 15-minute walking radius, the largest among which is the Awbury Arboretum, situated within a 12-minute walk to the northeast. The Washington Lane regional rail station sits by the arboretum, within a 16-minute walk to the northeast of the proposed development. Route 23 and 81 buses service the vicinity, with the former running along Germantown Avenue, the neighborhood’s primary commercial thoroughfare, which extends within a five-minute walk to the southwest.

6115 Osceola Street. Zoning table. Credit: KJO Architecture via the City of Philadelphia
Subscribe to YIMBY’s daily e-mail
![]()
Follow YIMBYgram for real-time photo updates
Like YIMBY on Facebook
Follow YIMBY’s Twitter for the latest in YIMBYnews






Be the first to comment on "Residential Building Permits Issued for Townhouse at 6115 Osceola Street Unit 10 in Northwest Philadelphia"