Residential building permits have been issued for the construction of a three-story two-family residential building at 861 North 15th Street in the Fairmount neighborhood of lower North Philadelphia. The new structure will rise from the east side of thee block between Ogden Street and Poplar Street. The development will span 2,079 interior square feet and will offer features such as a cellar and a roof deck. The development team consists of the V&V Holdings as the owner, Fusa Designs as the architect, and V&V Investment Inc. (doing business as Vardgas Oganisean) as the contractor.
Construction costs for the rowhouse structure are specified at $200,000, which calculates into around $96 per proposed interior square foot, of which $133,000 is allocated for general construction work, $10,000 for electrical work, $10,000 for mechanical work, $10,000 for plumbing work, and $37,000 for excavation work.

861 North 15th Street. Site map. Credit: Fusa Designs LLC via the City of Philadelphia

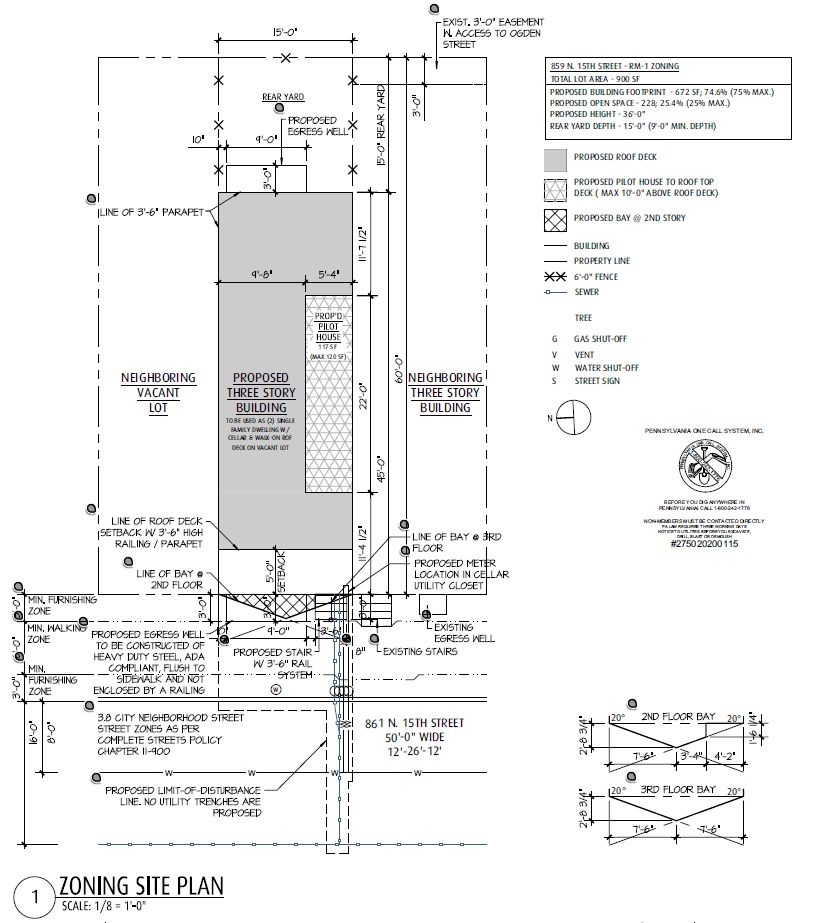
861 North 15th Street. Site plan. Credit: Fusa Designs LLC via the City of Philadelphia

861 North 15th Street. Building section. Credit: Fusa Designs LLC via the City of Philadelphia
The proposed structure will measure 15 feet wide and 45 feet long (48 feet if including the upper-floors street-facing cantilever). A 15-foot-square yard will sit behind the building. The total height will reach 36 feet to the main roof, 39-and-a-half feet to the top of the parapet, and up to 46 feet to the top of the pilot house, which will be used to access the roof deck.
Given the structure’s elevation, which will match that of adjacent building, the deck promises to offer reasonably open views of the skylines of nearby Temple University, which sits within an approximately 15-minute walk to the northeast, and that of the slightly more distant Center City, situated within a 20-minute walk to the south (if using Vine Street as the neighborhood’s traditional, long-established boundary).

Second Pilgrim Baptist Church at 854-60 North 15th Street. Looking southwest. May 2025. Credit: Google Street View via Google Maps

Second Pilgrim Baptist Church at 854-60 North 15th Street. Looking west. May 2025. Credit: Google Street View via Google Maps
The building is the latest addition to a rapidly developing part of the city, where multi-family buildings line blocks that sat largely vacant as recently as 15 years ago. While we are are happy to see redevelopment of this centrally-sited, transit-proximate area (the Fairmount Station on the Broad Street subway line sits within a five-minute walk to the southeast), we are equally glad to see the enduring presence of the Second Pilgrim Baptist Church, an impressive prewar edifice situated across the street at 854-60 North 15th Street. The building, clad in rusticated stone and centered upon a distinctive, flat-topped belfry, serves as a distinctive landmark in a rapidly-changing neighborhood. Since it moved into the present building in 1945, the congregation continues to provide the local community with various social and cultural services to this day.

861 North 15th Street. Site conditions prior to redevelopment. Credit: Fusa Designs LLC via the City of Philadelphia

861 North 15th Street. Site conditions prior to redevelopment. Credit: Fusa Designs LLC via the City of Philadelphia

861 North 15th Street. Site conditions prior to redevelopment. Credit: Fusa Designs LLC via the City of Philadelphia

861 North 15th Street. Looking northeast. May 2025. Credit: Google Maps
The lot at 861 North 15th Street had sat vacant for years, until it was fenced off around 2020 or 2001, along with two adjacent prewar rowhouses at 857 and 859 North 15th Street that stand to the south. Since that time, a new building foundation has been completed at 861 North 15th Street, while the two rowhouses were renovated and converted into a single residential structure.
A notable feature of the renovation is its preservation of a musically-themed mural that graces the building’s northern wall and overlooks the site of the latest proposal. The artwork is a tribute to The Dixie Hummingbirds, an influential music group that stayed active for an astounding period of nearly a century (from 1928 to the present day) and influenced musicians and groups such as James Brown, Stevie Wonder, and The Temptations. While the new building will block the mural from view, we hope that either the development team or another third party (perhaps one associated with the nearby Temple University) would reproduce the soon-to-be-obstructed mural at another nearby location.

861 North 15th Street (left). Site conditions prior to redevelopment. Looking southeast. May 2025. Credit: Google Street View via Google Maps

861 North 15th Street (left), with the Second Pilgrim Baptist Church on the right. Site conditions prior to redevelopment. Looking south. May 2025. Credit: Google Street View via Google Maps
Subscribe to YIMBY’s daily e-mail
Follow YIMBYgram for real-time photo updates
Like YIMBY on Facebook
Follow YIMBY’s Twitter for the latest in YIMBYnews






Be the first to comment on "Permits Issued for Construction of Two-Family Residence at 861 North 15th Street in Fairmount, North Philadelphia"